+17 fotó
Hirdetéskód: 8964651
Referenciaszám: M323317-5196510
Feltöltve: ma
Budapest VIII. kerület eladó téglalakás 4 szobás: 99 millió Ft
99 millió Ft
876 106 Ft/m²
113 m²
4 szoba
Eladó Lakás, Budapest 8. ker.
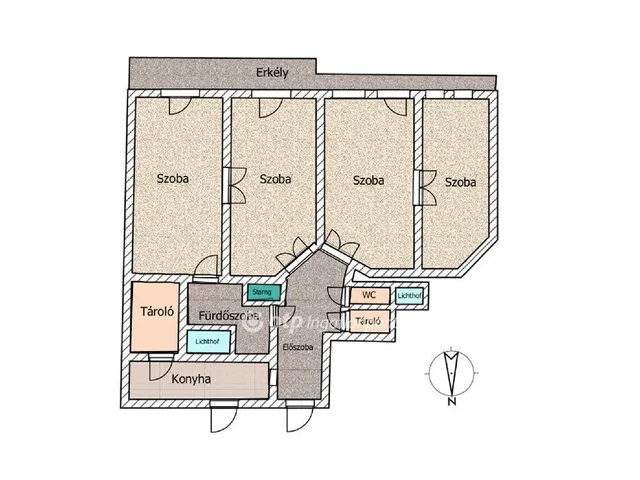
Budapest VIII. kerületében, a Baross utcában kínálunk megvételre egy 113 m2-es, felújítandó, 4 szobás polgári lakást, amely kiváló befektetési lehetőséget rejt magában.
Az ingatlan 1. emeleten található egy liftes, 5 emeletes, 70 lakásos társasházban.
A lakáshoz tartozik egy 13 m2-es erkély, amely három szobából is megközelíthető, így különleges hangulatot és sok természetes fényt biztosít.
A lakás két külön bejárattal rendelkezik, ezért kiválóan alkalmas két lakás kialakítására, ami befektetők számára kifejezetten kedvező lehet.
Műszaki jellemzők: tégla falazat, gázfűtés- gázkonvektorokkal. Vízmelegítés bojlerrel. Külön víz-, villany- és gázóra.
A lakás felújítandó állapotú, így új tulajdonosa saját elképzelései szerint alakíthatja ki, akár két különálló lakásként hasznosítva.
Válasszon kínálatunkból, és számíthat az OTP Ingatlanpont szakmai támogatására a teljes vételi folyamat során az adásvételi szerződéstől a hitelügyintézésen keresztül egészen a kulcsrakész átadásig.
Bővebb információért vagy megtekintés egyeztetéséhez keressen bizalommal!
Referencia szám: M323317-ZE
Tulajdonságok
1920
H
Vedd fel a kapcsolatot a hirdetővel
Tímár Bendegúz OTPip - Budapest I. kerület Fő utca 7 - OTP Ingatlanpont Iroda Az iroda összes hirdetése
+36 30 717 0
Hitelkalkulátor
Második évtől
426 051 Ft A 13. hónaptól
7,99%
Végig fix Futamidő: 20 év Banki visszahívás
Az OTP Bank munkatársai a neked megfelelő napszakban veszik fel veled a kapcsolatot.Hitelfelvétel esetén akár egy héttel rövidebb lehet az ügyintézés.
Ez az ingatlan a nálunk meglévő adatok alapján azonnali értékbecslésre alkalmas lehet.
A becslés a hirdető által megadott adatokon alapul. A jelen tájékoztatás nem minősül ajánlattételnek és nem teljes körű, az egyes feltételek a hitelbírálat eredményétől függően változhatnak. Kérjük, a részletekről tájékozódj az OTP Bank fiókjaiban vagy az OTP Bank honlapján közzétett vonatkozó Üzletszabályzatokból és Hirdetményekből.
Vedd fel a kapcsolatot a hirdetővel
Tímár Bendegúz OTPip - Budapest I. kerület Fő utca 7 - OTP Ingatlanpont Iroda Az iroda összes hirdetése
+36 30 717 0
Vedd fel a kapcsolatot a hirdetővel
Tímár Bendegúz OTPip - Budapest I. kerület Fő utca 7 - OTP Ingatlanpont Iroda Az iroda összes hirdetése
+36 30 717 0
UI_KIT.CHARACTER_COUNTER__COMPONENT.ACTUAL_CHARACTER__SR_ONLY UI_KIT.CHARACTER_COUNTER__COMPONENT.MAXIMUM_CHARACTER__SR_ONLY
Hasonló eladó ingatlanok Budapest VIII. kerületben
Frissítve: 3 napja
4
105 M Ft 1 315 790 Ft/m²
Eladó lakás, Budapest VIII. kerület

Frissítve: 3 napja
4
95,75 M Ft 1 337 291 Ft/m²
Eladó lakás, Budapest VIII. kerület

Frissítve: ma
8
91,77 M Ft 1 292 518 Ft/m²
Eladó lakás, Budapest VIII. kerület


Fedezd fel a
hasonló lakásokat!Még további lakások Budapest VIII. kerületben 99 M Ft körüli értékben
Tovább a hirdetésekhez Frissítve: 3 napja
11
101 M Ft 1 683 333 Ft/m²
Eladó lakás, Budapest VIII. kerület

Frissítve: 3 napja
19
99 M Ft 1 269 231 Ft/m²
Eladó lakás, Budapest VIII. kerület, Lujza utca

Frissítve: 3 napja
11
105 M Ft 1 693 548 Ft/m²
Eladó lakás, Budapest VIII. kerület

