+11 fotó
Hirdetéskód: 8913961
Referenciaszám: M323628-5164654
Feltöltve: ma
Budapest X. kerület eladó téglalakás 1 szobás: 37,7 millió Ft
37,7 millió Ft
1 300 000 Ft/m²
29 m²
1 szoba
földszint
Eladó Lakás, Budapest 10. ker.
Eladó 29 m2-es földszinti lakás a X. kerületben, az Üllői út közelében!
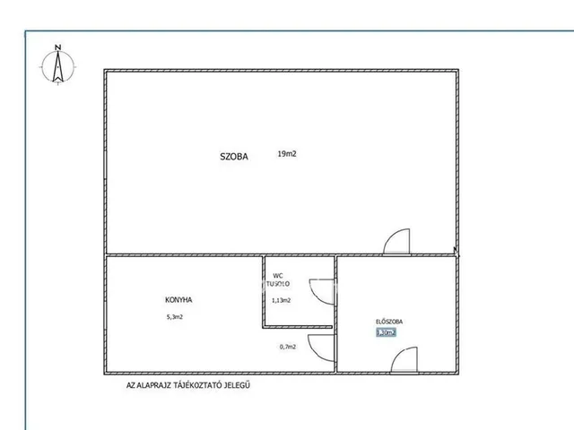
Budapest X. kerületében, az Üllői út közelében eladó egy 29 m2-es, 1 szoba + konyhás, tusolós-WC-s, földszinti lakás,tárolóval.
Főbb jellemzők:
29 m2 alapterület
1 szoba + külön konyha
Tusoló + WC
Földszinti elhelyezkedés
Műanyag nyílászárók, biztonsági ráccsal
Gázkonvektoros fűtés
Alacsony rezsiköltség
Frissen tisztasági festett állapot
A lakás praktikus elrendezésű, fenntartási költsége kedvező, így első lakásnak vagy befektetésnek is kiváló választás.
Közlekedés és környék:
A környék közlekedése kiváló, az Üllői út közelségének köszönhetően több busz- és villamosjárat könnyen elérhető, a belváros gyorsan megközelíthető. A közelben Shop Mark, boltok, szolgáltatások, gyógyszertár, iskola is megtalálható.
Központi elhelyezkedés, mégis élhető környezet!
Tulajdonságok
Téglalakás
Átlagos
Gáz (konvektor)
1970
Nem adta meg a hirdető
Vedd fel a kapcsolatot a hirdetővel
Terjék Nikolett Erzsébet OTPip - Dunaharaszti Bocskai utca 10 - OTP Ingatlanpont Iroda Az iroda összes hirdetése
+36 70 941 9
Hitelkalkulátor
Második évtől
162 244 Ft A 13. hónaptól
7,99%
Végig fix Futamidő: 20 év Banki visszahívás
Az OTP Bank munkatársai a neked megfelelő napszakban veszik fel veled a kapcsolatot.Hitelfelvétel esetén akár egy héttel rövidebb lehet az ügyintézés.
Ez az ingatlan a nálunk meglévő adatok alapján azonnali értékbecslésre alkalmas lehet.
A becslés a hirdető által megadott adatokon alapul. A jelen tájékoztatás nem minősül ajánlattételnek és nem teljes körű, az egyes feltételek a hitelbírálat eredményétől függően változhatnak. Kérjük, a részletekről tájékozódj az OTP Bank fiókjaiban vagy az OTP Bank honlapján közzétett vonatkozó Üzletszabályzatokból és Hirdetményekből.
Vedd fel a kapcsolatot a hirdetővel
Terjék Nikolett Erzsébet OTPip - Dunaharaszti Bocskai utca 10 - OTP Ingatlanpont Iroda Az iroda összes hirdetése
+36 70 941 9
Vedd fel a kapcsolatot a hirdetővel
Terjék Nikolett Erzsébet OTPip - Dunaharaszti Bocskai utca 10 - OTP Ingatlanpont Iroda Az iroda összes hirdetése
+36 70 941 9
UI_KIT.CHARACTER_COUNTER__COMPONENT.ACTUAL_CHARACTER__SR_ONLY UI_KIT.CHARACTER_COUNTER__COMPONENT.MAXIMUM_CHARACTER__SR_ONLY
Hasonló eladó ingatlanok Budapest X. kerületben
Feltöltve: 5 hónapja
1
35,9 M Ft 1 282 143 Ft/m²
Eladó lakás, Budapest X. kerület
Frissítve: ma
10
39,9 M Ft 814 286 Ft/m²
Eladó lakás, Budapest X. kerület

Feltöltve: ma
10
39,9 M Ft 814 286 Ft/m²
Eladó lakás, Budapest X. kerület


Fedezd fel a
hasonló lakásokat!Még további lakások Budapest X. kerületben 37,7 M Ft körüli értékben
Tovább a hirdetésekhez Frissítve: ma
10
39,9 M Ft 814 286 Ft/m²
Eladó lakás, Budapest X. kerület

Frissítve: 8 napja
10
39,9 M Ft 814 286 Ft/m²
Eladó lakás, Budapest X. kerület

Feltöltve: 15 napja
9
39,9 M Ft 997 500 Ft/m²
Eladó lakás, Budapest X. kerület


