+9 fotó
Hirdetéskód: 8841693
Referenciaszám: P4779-1-01-01-004
Feltöltve: 2 napja
Budapest XIII. kerület eladó téglalakás 2 szobás: 76,08 millió Ft
76,08 millió Ft
1 855 488 Ft/m²
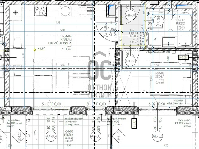
41 m²
2 szoba
1. emelet
ÚJ ÉPÍTÉSŰ MODERN LAKÁSOK A XIII. KERÜLETBEN
Projekt bemutatása
Projekt áttekintés
Kiváló befektetési és lakhatási lehetőség Budapesten, a XIII. kerület frekventált, de nyugodt részén.
Itt épül egy modern 31 lakásos, pince + földszint + 4 emelet kialakítású, elegáns, liftes társasház!
Műszaki szempontból is a legmodernebb megoldásokat alkalmazzák az építés során, hiszen hőszivattyús fűtés és melegvíz ellátása van a lakásoknak, amihez párosulnak a három rétegű ablakok, és a megfelelő homlokzati szigetelés. Ezáltal a lakások fenntartási költsége nagyon kedvező lesz!
A földszinti lakások egy része kertkapcsolattal rendelkezik, amely ideális választás lehet azoknak a vevőknek, akik kisállattal rendelkeznek vagy zöld környezetre vágynak
Kiemelt figyelmet érdemel a lakóépület legfelső, negyedik emelete, ahol az utcai és udvari homlokzati falak visszahúzása miatt:
Tágas, napfényes teraszok kerülnek kialakításra.
Penthouse jellegű lakások, melyek ideálisak a különleges hangulatot és kilátást keresők számára.
Lehetőség van garázs beálló hely vásárlására a mélygarázsban, illetve tároló vásárlására is.
Ha akezdeti szakaszban vásárol, akkor még lehetősége van a saját ízlése szerint kiválasztani a burkolatokat, ajtókat, szanitereket stb.
Elhelyezkedés
A Gyöngyösi utca kiváló infrastruktúrával rendelkezik, a közelben minden megtalálható, ami a kényelmes élethez szükséges (vásárlási lehetőségek, közlekedés, szolgáltatások).
Ne maradjon le! Válassza ki álmai otthonát még az építkezés kezdeti szakaszában!
További információkért keressen minket bizalommal!
Tulajdonságok
Téglalakás
Új építésű
Hőszivattyú
2027
8,4 m²
Nem adta meg a hirdető
Vedd fel a kapcsolatot a hirdetővel
+36 70 435 2
Hitelkalkulátor
Második évtől
327 392 Ft A 13. hónaptól
7,99% 8,49%
Végig fix Futamidő: 20 év Banki visszahívás
Az OTP Bank munkatársai a neked megfelelő napszakban veszik fel veled a kapcsolatot.Hitelfelvétel esetén akár egy héttel rövidebb lehet az ügyintézés.
Ez az ingatlan a nálunk meglévő adatok alapján azonnali értékbecslésre alkalmas lehet.
A becslés a hirdető által megadott adatokon alapul. A jelen tájékoztatás nem minősül ajánlattételnek és nem teljes körű, az egyes feltételek a hitelbírálat eredményétől függően változhatnak. Kérjük, a részletekről tájékozódj az OTP Bank fiókjaiban vagy az OTP Bank honlapján közzétett vonatkozó Üzletszabályzatokból és Hirdetményekből.
Vedd fel a kapcsolatot a hirdetővel
+36 70 435 2
Vedd fel a kapcsolatot a hirdetővel
+36 70 435 2
UI_KIT.CHARACTER_COUNTER__COMPONENT.REMAINING_SPACE__SR_ONLYUI_KIT.CHARACTER_COUNTER__COMPONENT.MAXIMUM_CHARACTER__SR_ONLY
Hasonló eladó ingatlanok Angyalföld városrészben
Frissítve: 6 napja
20
Jasmine
73,15 M Ft 1 590 217 Ft/m²
Eladó lakás, Budapest XIII. kerület, Angyalföld

Frissítve: 12 napja
15
82,5 M Ft 1 650 000 Ft/m²
Eladó lakás, Budapest XIII. kerület, Angyalföld

Frissítve: 4 hónapja
1
76 M Ft 1 727 273 Ft/m²
Eladó lakás, Budapest XIII. kerület, Angyalföld, Zsinór

Fedezd fel a
hasonló lakásokat!Még további lakások Budapest XIII. kerület, Angyalföld városrészben 76,08 M Ft körüli értékben
Tovább a hirdetésekhez Frissítve: 2 napja
1
81,23 M Ft 1 599 999 Ft/m²
Eladó lakás, Budapest XIII. kerület, Angyalföld

Frissítve: 6 hónapja
20
79,9 M Ft 1 079 730 Ft/m²
Eladó lakás, Budapest XIII. kerület, Angyalföld, Tatai utca
Frissítve: 10 hónapja
1
74,9 M Ft 1 269 492 Ft/m²
Eladó lakás, Budapest XIII. kerület, Angyalföld
