+17 fotó
Hirdetéskód: 8859695
Referenciaszám: M318425-5129931
Feltöltve: ma
Budapest XIII. kerület eladó téglalakás 3+1 fél szobás: 116 millió Ft
116 millió Ft
1 000 000 Ft/m²
116 m²
3+1 fél szoba
3. emelet
Eladó Lakás, Budapest 13. ker.
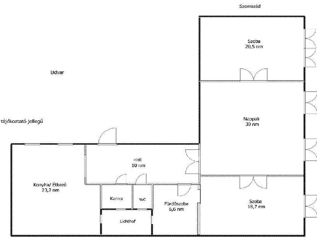
Budapest szívében, mégis csendes utcában eladó egy 116 nm-es, világos, jó állapotú polgári lakás kivételes elhelyezkedéssel és átalakítási lehetőségekkel!
Budapest központjában, a Westend City Center és a Nyugati pályaudvar közvetlen szomszédságában, ugyanakkor egy kellemesen csendes mellékutcában kínáljuk megvételre ezt a tágas, napfényes, 3 + 1 félszobás polgári lakást. Jelenleg 3 szoba + nagy, étkezővel egybenyitott konyha elrendezésű, jó állapotú ingatlan.
A lakás igazi ritkaság a piacon: méretéből adódóan könnyedén 2, akár 3 különálló lakásra is osztható, és a kialakítás lehetővé teszi egy új, külön bejárat megnyitását is ez komoly értéknövelő és befektetési lehetőség. SzMSz nem tiltja a rövid távú lakáskiadást se.
Műszaki háttér és állapot: a lakásban és a társasházban megtörtént a teljes cső- és elektromos hálózat cseréje; folyamatosan karbantartott, kulturált ház; a tető felújítása nemrég lezárult; lift jelenleg nincs; a lakáshoz saját, száraz pincei tároló tartozik
A lakás 1/1 tulajdonosé, per- és tehermentes, néhány hónapon belül rugalmasan költözhető.
A különleges elhelyezkedés és a nagy alapterület miatt tökéletes választás kiadásra, befektetésnek vagy annak a családnak, aki a belváros pezsgése mellett szeretné élvezni egy klasszikus polgári otthon eleganciáját és a mellékutca nyugalmát.
A környéken az ehhez hasonló, nagy alapterületű polgári lakások értéke folyamatosan emelkedik, így hosszú távon is biztos befektetést jelent.
Tulajdonságok
Téglalakás
Jó állapotú
Gázkazán
1900
Nem adta meg a hirdető
Vedd fel a kapcsolatot a hirdetővel
Nándori Ágnes OTPip - Budapest IX. kerület Üllői út 21 - OTP Ingatlanpont Iroda Az iroda összes hirdetése
+36 70 421 8
Hitelkalkulátor
Második évtől
499 211 Ft A 13. hónaptól
7,99%
Végig fix Futamidő: 20 év Banki visszahívás
Az OTP Bank munkatársai a neked megfelelő napszakban veszik fel veled a kapcsolatot.Hitelfelvétel esetén akár egy héttel rövidebb lehet az ügyintézés.
Ez az ingatlan a nálunk meglévő adatok alapján azonnali értékbecslésre alkalmas lehet.
A becslés a hirdető által megadott adatokon alapul. A jelen tájékoztatás nem minősül ajánlattételnek és nem teljes körű, az egyes feltételek a hitelbírálat eredményétől függően változhatnak. Kérjük, a részletekről tájékozódj az OTP Bank fiókjaiban vagy az OTP Bank honlapján közzétett vonatkozó Üzletszabályzatokból és Hirdetményekből.
Vedd fel a kapcsolatot a hirdetővel
Nándori Ágnes OTPip - Budapest IX. kerület Üllői út 21 - OTP Ingatlanpont Iroda Az iroda összes hirdetése
+36 70 421 8
Vedd fel a kapcsolatot a hirdetővel
Nándori Ágnes OTPip - Budapest IX. kerület Üllői út 21 - OTP Ingatlanpont Iroda Az iroda összes hirdetése
+36 70 421 8
UI_KIT.CHARACTER_COUNTER__COMPONENT.REMAINING_SPACE__SR_ONLYUI_KIT.CHARACTER_COUNTER__COMPONENT.MAXIMUM_CHARACTER__SR_ONLY
Hasonló eladó ingatlanok Angyalföld városrészben
Frissítve: ma
6
126 M Ft 1 431 818 Ft/m²
Eladó lakás, Budapest XIII. kerület, Angyalföld

Frissítve: 1 napja
7
104,9 M Ft 1 873 214 Ft/m²
Eladó lakás, Budapest XIII. kerület, Angyalföld

Frissítve: ma
4
115,9 M Ft 1 609 722 Ft/m²
Eladó lakás, Budapest XIII. kerület, Angyalföld


Fedezd fel a
hasonló lakásokat!Még további lakások Budapest XIII. kerület, Angyalföld városrészben 116 M Ft körüli értékben
Tovább a hirdetésekhez Frissítve: ma
6
112,2 M Ft 1 558 333 Ft/m²
Eladó lakás, Budapest XIII. kerület, Angyalföld

Frissítve: 4 hónapja
12
Dévai 14
114,01 M Ft 2 192 529 Ft/m²
Eladó lakás, Budapest XIII. kerület, Angyalföld, Dévai utca
Frissítve: 4 hónapja
12
Dévai 14
104,8 M Ft 2 015 394 Ft/m²
Eladó lakás, Budapest XIII. kerület, Angyalföld, Dévai utca

