Hirdetéskód: 8989705
Referenciaszám: LK089178-5214383
Feltöltve: ma
Budapest XIII. kerület eladó téglalakás 3 szobás: 131,75 millió Ft
131,75 millió Ft
1,55 millió Ft/m²
85 m²
3 szoba
1. emelet
Eladó lakás, Budapest 13. ker.
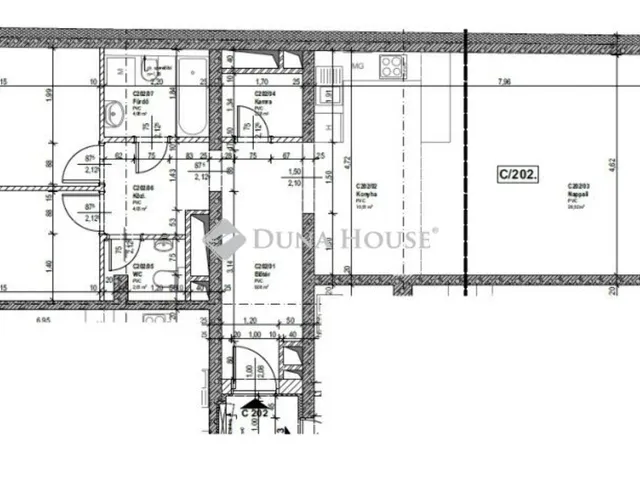
Kiváló lokáció, közkedvelt lakópark, modern, fiatalos lakások!Budapesten, a XIII. kerület Angyalföld városrészén, egy 2021-ben épült, modern, liftes lakóparkban eladó egy 80 nm-es, 1. emeleti lakás 10 nm-es erkéllyel.A lakás amerikai konyhás nappalival, étkezővel és egy 2 hálószobával rendelkezik.A környék kiváló tömegközlekedési lehetőségekkel rendelkezik!A 14-es villamos, helyi autóbusz járatok, illetve akár az M3 metró megállója is csupán perc sétára található, így a belváros is könnyen megközelíthető.A lakáshoz teremgarázsban parkolóhely vásárolható vagy bérelhető.Találja meg nálunk leendő otthonát, aktuális befektetését!
Referencia szám: LK089178
Tulajdonságok
Téglalakás
Újszerű
Távfűtés egyedi méréssel
2021
C
Vedd fel a kapcsolatot a hirdetővel

+36 20 394 3
Hitelkalkulátor
Második évtől
566 992 Ft A 13. hónaptól
7,99%
Végig fix Futamidő: 20 év Banki visszahívás
Az OTP Bank munkatársai a neked megfelelő napszakban veszik fel veled a kapcsolatot.Hitelfelvétel esetén akár egy héttel rövidebb lehet az ügyintézés.
Ez az ingatlan a nálunk meglévő adatok alapján azonnali értékbecslésre alkalmas lehet.
A becslés a hirdető által megadott adatokon alapul. A jelen tájékoztatás nem minősül ajánlattételnek és nem teljes körű, az egyes feltételek a hitelbírálat eredményétől függően változhatnak. Kérjük, a részletekről tájékozódj az OTP Bank fiókjaiban vagy az OTP Bank honlapján közzétett vonatkozó Üzletszabályzatokból és Hirdetményekből.
Vedd fel a kapcsolatot a hirdetővel

+36 20 394 3
Vedd fel a kapcsolatot a hirdetővel

+36 20 394 3
UI_KIT.CHARACTER_COUNTER__COMPONENT.ACTUAL_CHARACTER__SR_ONLY UI_KIT.CHARACTER_COUNTER__COMPONENT.MAXIMUM_CHARACTER__SR_ONLY
Hasonló eladó ingatlanok Angyalföld városrészben
Frissítve: ma
11
119,81 millió Ft 2 millió Ft/m²
Eladó lakás, Budapest XIII. kerület, Angyalföld
Frissítve: 22 napja
20
Jasmine
141,4 millió Ft 1,55 millió Ft/m²
Eladó lakás, Budapest XIII. kerület, Angyalföld

Frissítve: ma
6
126 millió Ft 1,43 millió Ft/m²
Eladó lakás, Budapest XIII. kerület, Angyalföld


Fedezd fel a
hasonló lakásokat!Még további lakások Budapest XIII. kerület, Angyalföld városrészben 131,75 M Ft körüli értékben
Tovább a hirdetésekhez Frissítve: ma
6
119,2 millió Ft 1,66 millió Ft/m²
Eladó lakás, Budapest XIII. kerület, Angyalföld

Frissítve: 22 napja
20
Jasmine
135,67 millió Ft 1,47 millió Ft/m²
Eladó lakás, Budapest XIII. kerület, Angyalföld

Feltöltve: 1 éve
1
135 millió Ft 1,42 millió Ft/m²
Eladó lakás, Budapest XIII. kerület, Angyalföld
