+17 fotó
Hirdetéskód: 8939442
Referenciaszám: M323890-5180902
Feltöltve: ma
Budapest XIII. kerület eladó téglalakás 3 szobás: 105 millió Ft
105 millió Ft
905 172 Ft/m²
116 m²
3 szoba
Eladó Lakás, Budapest 13. ker.
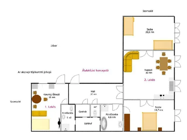
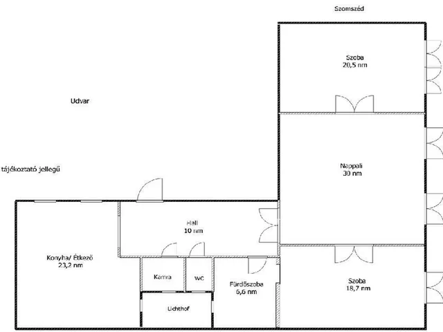
***Budapest szívében, ÚJLIPÓTVÁROSBAN, mégis CSENDES utcában eladó egy 116 nm-es, VILÁGOS, JÓ állapotú POLGÁRI lakás kivételes elhelyezkedéssel és ÁTALAKÍTÁSI lehetőségekkel!***
Budapest központjában, a WESTEND CITY CENTER és a NYUGATI pályaudvar közvetlen szomszédságában, ugyanakkor egy kellemesen CSENDES mellékutcában kínáljuk megvételre ezt a TÁGAS, napfényes, hall + 3 szobás POLGÁRI lakást.
Jelenleg 3 szoba + nagy, étkezővel egybenyitott konyha elrendezésű, JÓ állapotú ingatlan.
A lakás igazi ritkaság a piacon: méretéből adódóan könnyedén 2, akár 3 különálló lakásra is OSZTHATÓ, és a kialakítás lehetővé teszi egy új, külön bejárat megnyitását is ez komoly értéknövelő és befektetési lehetőség.
Az SzMSz nem tiltja a rövid távú lakáskiadást sem.
Műszaki háttér és állapot: a lakásban és a társasházban megtörtént a teljes cső- és elektromos hálózat cseréje; FOLYAMATOSAN KARBANTARTOTT, kulturált ház; a tető felújítása nemrég lezárult; lift jelenleg nincs; a lakáshoz saját, száraz pincei TÁROLÓ tartozik.
A lakás 1/1 tulajdonosé, per- és tehermentes, néhány hónapon belül rugalmasan költözhető.
A különleges elhelyezkedés és a nagy alapterület miatt tökéletes választás kiadásra, befektetésnek vagy annak a családnak, aki a belváros pezsgése mellett szeretné élvezni egy klasszikus polgári otthon eleganciáját és a mellékutca nyugalmát.
A környéken az ehhez hasonló, nagy alapterületű polgári lakások értéke folyamatosan emelkedik, így hosszú távon is biztos befektetést jelent.
Ha ingatlan vásárlásával egy ÉRTÉKÁLLÓ BEFEKTETÉST is szeretne egyben, akkor ez egy remek lehetőség az ön számára.
Az OTP Ingatlanpont, mint egyetlen közvetlen banki hátterű ingatlanközvetítő társaság teljes körű ügyintézéssel és kedvezményes pénzügyi konstrukciókkal áll ügyfelei rendelkezésére!
VIP-szolgáltatást nyújtunk az OTP-hiteltermékek ügyintézésében.
Jogi és pénzügyi segítséget nyújtanak szakértőink, hogy az adásvétel folyamata gördülékeny legyen.
Ha felkeltette érdeklődését az ingatlan, kérem, hívjon bizalommal akar hétvégén is!
Tulajdonságok
1900
Nem adta meg a hirdető
Vedd fel a kapcsolatot a hirdetővel
Kiss Ildikó Mária OTPip - Budapest II. kerület Szépvölgyi út 2 - OTP Ingatlanpont Iroda Az iroda összes hirdetése
+36 30 950 8
Hitelkalkulátor
Második évtől
451 872 Ft A 13. hónaptól
7,99%
Végig fix Futamidő: 20 év Banki visszahívás
Az OTP Bank munkatársai a neked megfelelő napszakban veszik fel veled a kapcsolatot.Hitelfelvétel esetén akár egy héttel rövidebb lehet az ügyintézés.
Ez az ingatlan a nálunk meglévő adatok alapján azonnali értékbecslésre alkalmas lehet.
A becslés a hirdető által megadott adatokon alapul. A jelen tájékoztatás nem minősül ajánlattételnek és nem teljes körű, az egyes feltételek a hitelbírálat eredményétől függően változhatnak. Kérjük, a részletekről tájékozódj az OTP Bank fiókjaiban vagy az OTP Bank honlapján közzétett vonatkozó Üzletszabályzatokból és Hirdetményekből.
Vedd fel a kapcsolatot a hirdetővel
Kiss Ildikó Mária OTPip - Budapest II. kerület Szépvölgyi út 2 - OTP Ingatlanpont Iroda Az iroda összes hirdetése
+36 30 950 8
Vedd fel a kapcsolatot a hirdetővel
Kiss Ildikó Mária OTPip - Budapest II. kerület Szépvölgyi út 2 - OTP Ingatlanpont Iroda Az iroda összes hirdetése
+36 30 950 8
UI_KIT.CHARACTER_COUNTER__COMPONENT.ACTUAL_CHARACTER__SR_ONLY UI_KIT.CHARACTER_COUNTER__COMPONENT.MAXIMUM_CHARACTER__SR_ONLY
Hasonló eladó ingatlanok Újlipótváros városrészben
Frissítve: 4 hónapja
20
99,9 M Ft 1 218 293 Ft/m²
Eladó lakás, Budapest XIII. kerület, Újlipótváros, Kresz Géza
Frissítve: ma
16
99 M Ft 1 650 000 Ft/m²
Eladó lakás, Budapest XIII. kerület, Újlipótváros

Frissítve: ma
11
99 M Ft 1 650 000 Ft/m²
Eladó lakás, Budapest XIII. kerület, Újlipótváros


Fedezd fel a
hasonló lakásokat!Még további lakások Budapest XIII. kerület, Újlipótváros városrészben 105 M Ft körüli értékben
Tovább a hirdetésekhez Feltöltve: 1 éve
1
103,6 M Ft 1 546 269 Ft/m²
Eladó lakás, Budapest XIII. kerület, Újlipótváros
Feltöltve: 1 éve
11
109,9 M Ft 1 640 299 Ft/m²
Eladó lakás, Budapest XIII. kerület, Újlipótváros

Frissítve: 1 éve
20
105 M Ft 2 234 043 Ft/m²
Eladó lakás, Budapest XIII. kerület, Újlipótváros, Csanády utca


