+17 fotó
Hirdetéskód: 8940243
Referenciaszám: M323890-5181504
Feltöltve: ma
Budapest XIII. kerület eladó téglalakás 3 szobás: 105 millió Ft
105 millió Ft
905 172 Ft/m²
116 m²
3 szoba
3. emelet
Eladó Lakás, Budapest 13. ker.
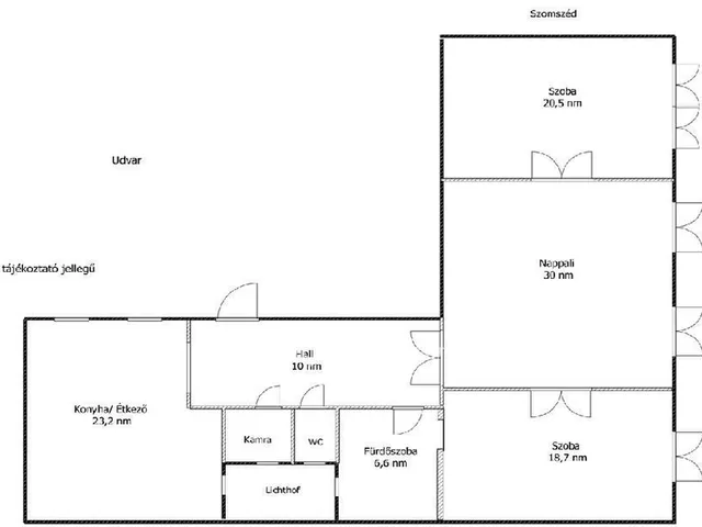
Budapest szívében, mégis csendes utcában eladó egy 116 nm-es, világos, jó állapotú polgári lakás kivételes elhelyezkedéssel és átalakítási lehetőségekkel!
Budapest központjában, a Westend City Center és a Nyugati pályaudvar közvetlen szomszédságában, ugyanakkor egy kellemesen csendes mellékutcában kínáljuk megvételre ezt a tágas, napfényes, 3 + 1 félszobás polgári lakást.
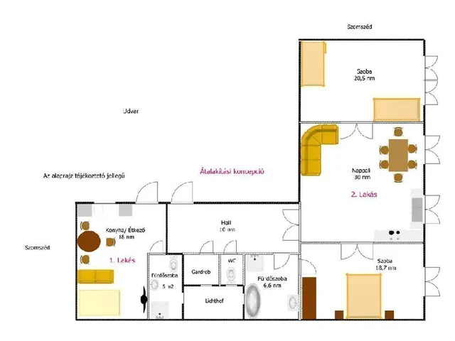
Jelenleg 3 szoba + nagy, étkezővel egybenyitott konyha elrendezésű, jó állapotú ingatlan. A lakás igazi ritkaság a piacon: méretéből adódóan könnyedén 2, akár 3 különálló lakásra is osztható, és a kialakítás lehetővé teszi egy új, külön bejárat megnyitását is ez komoly értéknövelő és befektetési lehetőség.
SzMSz nem tiltja a rövid távú lakáskiadást se. Műszaki háttér és állapot: a lakásban és a társasházban megtörtént a teljes cső- és elektromos hálózat cseréje; folyamatosan karbantartott, kulturált ház; a tető felújítása nemrég lezárult; lift jelenleg nincs; a lakáshoz saját, száraz pincei tároló tartozik.
A lakás 1/1 tulajdonosé, per- és tehermentes, néhány hónapon belül rugalmasan költözhető. A különleges elhelyezkedés és a nagy alapterület miatt tökéletes választás kiadásra, befektetésnek vagy annak a családnak, aki a belváros pezsgése mellett szeretné élvezni egy klasszikus polgári otthon eleganciáját és a mellékutca nyugalmát.
A környéken az ehhez hasonló, nagy alapterületű polgári lakások értéke folyamatosan emelkedik, így hosszú távon is biztos befektetést jelent.
Amennyiben felkeltette érdeklődését a hirdetés, keressen bizalommal a hét bármely napján!
Referenciaszám: M323890
Tulajdonságok
Téglalakás
Jó állapotú
Gázkazán
1900
Nem adta meg a hirdető
Vedd fel a kapcsolatot a hirdetővel
Bödör Dóra OTPip - Budapest IX. kerület Üllői út 21 - OTP Ingatlanpont Iroda Az iroda összes hirdetése
+36 30 357 0
Hitelkalkulátor
Második évtől
451 872 Ft A 13. hónaptól
7,99%
Végig fix Futamidő: 20 év Banki visszahívás
Az OTP Bank munkatársai a neked megfelelő napszakban veszik fel veled a kapcsolatot.Hitelfelvétel esetén akár egy héttel rövidebb lehet az ügyintézés.
Ez az ingatlan a nálunk meglévő adatok alapján azonnali értékbecslésre alkalmas lehet.
A becslés a hirdető által megadott adatokon alapul. A jelen tájékoztatás nem minősül ajánlattételnek és nem teljes körű, az egyes feltételek a hitelbírálat eredményétől függően változhatnak. Kérjük, a részletekről tájékozódj az OTP Bank fiókjaiban vagy az OTP Bank honlapján közzétett vonatkozó Üzletszabályzatokból és Hirdetményekből.
Vedd fel a kapcsolatot a hirdetővel
Bödör Dóra OTPip - Budapest IX. kerület Üllői út 21 - OTP Ingatlanpont Iroda Az iroda összes hirdetése
+36 30 357 0
Vedd fel a kapcsolatot a hirdetővel
Bödör Dóra OTPip - Budapest IX. kerület Üllői út 21 - OTP Ingatlanpont Iroda Az iroda összes hirdetése
+36 30 357 0
UI_KIT.CHARACTER_COUNTER__COMPONENT.ACTUAL_CHARACTER__SR_ONLY UI_KIT.CHARACTER_COUNTER__COMPONENT.MAXIMUM_CHARACTER__SR_ONLY
Hasonló eladó ingatlanok Újlipótváros városrészben
Frissítve: 27 napja
13
103,9 M Ft 1 117 204 Ft/m²
Eladó lakás, Budapest XIII. kerület, Újlipótváros
Feltöltve: 1 hónapja
17
109,9 M Ft 1 831 667 Ft/m²
Eladó lakás, Budapest XIII. kerület, Újlipótváros
Frissítve: 3 napja
12
99,9 M Ft 1 248 750 Ft/m²
Eladó lakás, Budapest XIII. kerület, Újlipótváros


Fedezd fel a
hasonló lakásokat!Még további lakások Budapest XIII. kerület, Újlipótváros városrészben 105 M Ft körüli értékben
Tovább a hirdetésekhez Frissítve: ma
19
99,9 M Ft 1 427 143 Ft/m²
Eladó lakás, Budapest XIII. kerület, Újlipótváros, Balzac utca 28-32
Feltöltve: 1 éve
11
109,9 M Ft 1 640 299 Ft/m²
Eladó lakás, Budapest XIII. kerület, Újlipótváros

Frissítve: 4 hónapja
16
99 M Ft 1 414 286 Ft/m²
Eladó lakás, Budapest XIII. kerület, Újlipótváros, Balzac

