

+18 fotó
Hirdetéskód: 8715128
Referenciaszám: M306250-5041135
Frissítve: 11 napja
Budapest XIII. kerület eladó téglalakás 4 szobás: 199 millió Ft
199 millió Ft
2 186 813 Ft/m²
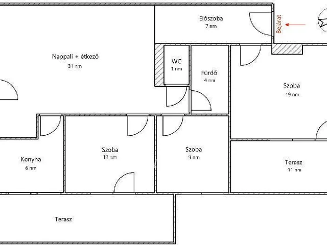
91 m²
4 szoba
Eladó Lakás, Budapest 13. ker.
Penthouse életérzés Angyalföldön!
Képzeld el: reggeli kávédat a 40 nm-es teraszon kortyolgatod, miközben a környék, és a Budai hegyek panorámája terül el előtted, a gyerekek pedig biztonságban játszanak a ház saját játszóterén a parkosított udvarban. Ez nem álom, ez lehet a mindennapod ebben a sosem lakott, 91 nm + 51 nm terasszal rendelkező luxuslakásban.
Miért pont ez a lakás? Miért pont most?M306250
Ez a 4 szobás penthouse jellegű otthon pont ilyen. Sosem lakott benne senki, úgyhogy Te lehetsz az első, aki berendezi, aki megtölti élettel ezeket a napfényes tereket.
A tágas terek és az óriási ablakok miatt sosem fogod szűknek érezni a helyet. A padlófűtés télen melegen tartja, a légkondi minden szobában nyáron hűsít. A minőségi márvány díszítések és a beépített konyha már megvan - csak a család receptjeit kell hozzátenni.
A két terasz két különböző hangulatot ad: a nagy a családi összejövetelekhez, a kisebb az intim estékhez. Nincs falszomszéd, nincs zaj felülről - csak a béke és a panoráma.
Befektetésként is briliáns döntés!
Angyalföld éppen most válik Budapest újabb aranyháromszögévé. A környező fejlesztések már most emelik az ingatlanértékeket, és Ön még az emelkedés előtt szállhat be. A lakás elrendezése miatt akár két külön lakóegységgé is alakítható - tökéletes megoldás két generációs családoknak, vagy befektetőknek, akik dupla bérleti díjra számíthatnak.
A két kötelezően megvásárolandó teremgarázsbeálló (8 M Ft/db) és a három db tároló (9,7 M Ft) tovább növelik az ingatlan értékét és a befektetés megtérülését.
A közlekedés kiváló: 3 perc sétára van 8 különböző busz- és villamosjárat. Spar, Tesco, Aldi, Lidl, iskolák, orvosi rendelők - minden azonnali elérésű.
Referencia szám: M306250
Tulajdonságok
2018
Nem adta meg a hirdető
Vedd fel a kapcsolatot a hirdetővel
Farkasné Hernádi Ágnes OTPip - Budapest I. kerület Zsolt utca 6 - OTP Ingatlanpont Iroda Az iroda összes hirdetése
+36 30 871 5
Hitelkalkulátor
Második évtől
856 405 Ft A 13. hónaptól
7,99%
Végig fix Futamidő: 20 év Banki visszahívás
Az OTP Bank munkatársai a neked megfelelő napszakban veszik fel veled a kapcsolatot.Hitelfelvétel esetén akár egy héttel rövidebb lehet az ügyintézés.
Ez az ingatlan a nálunk meglévő adatok alapján azonnali értékbecslésre alkalmas lehet.
A becslés a hirdető által megadott adatokon alapul. A jelen tájékoztatás nem minősül ajánlattételnek és nem teljes körű, az egyes feltételek a hitelbírálat eredményétől függően változhatnak. Kérjük, a részletekről tájékozódj az OTP Bank fiókjaiban vagy az OTP Bank honlapján közzétett vonatkozó Üzletszabályzatokból és Hirdetményekből.
Vedd fel a kapcsolatot a hirdetővel
Farkasné Hernádi Ágnes OTPip - Budapest I. kerület Zsolt utca 6 - OTP Ingatlanpont Iroda Az iroda összes hirdetése
+36 30 871 5
Vedd fel a kapcsolatot a hirdetővel
Farkasné Hernádi Ágnes OTPip - Budapest I. kerület Zsolt utca 6 - OTP Ingatlanpont Iroda Az iroda összes hirdetése
+36 30 871 5
UI_KIT.CHARACTER_COUNTER__COMPONENT.REMAINING_SPACE__SR_ONLYUI_KIT.CHARACTER_COUNTER__COMPONENT.MAXIMUM_CHARACTER__SR_ONLY
Hasonló eladó ingatlanok Budapest XIII. kerületben
Frissítve: 12 napja

14
199 M Ft 1 463 235 Ft/m²
Eladó lakás, Budapest XIII. kerület, Katona József utca

Frissítve: 5 napja

20
186 M Ft 2 137 931 Ft/m²
Eladó lakás, Budapest XIII. kerület, Sólyatér utca

Frissítve: 12 napja

7
Új építésű energiatakarékos otthonok, a Rendőrpalota szomszédságában, 13.kerületben
214,2 M Ft 214 200 000 Ft/m²
Eladó lakás, Budapest XIII. kerület


Fedezd fel a
hasonló lakásokat!Még további lakások Budapest XIII. kerületben 199 M Ft körüli értékben
Tovább a hirdetésekhez Frissítve: 12 napja

20
195 M Ft 2 565 789 Ft/m²
Eladó lakás, Budapest XIII. kerület, Danubius utca

Frissítve: 1 napja

12
195 M Ft 2 565 789 Ft/m²
Eladó lakás, Budapest XIII. kerület
Frissítve: 10 hónapja

13
Duna Terasz Vista
210,07 M Ft 2 165 670 Ft/m²
Eladó lakás, Budapest XIII. kerület, Cserhalom utca 4.

Töltsd fel hirdetésed ingyenesen!
Egyszerű