

+16 fotó
Hirdetéskód: 8753628
Referenciaszám: LK047906-5065259
Feltöltve: 5 napja
Budapest XIII. kerület eladó téglalakás 2 szobás: 86,5 millió Ft
86,5 millió Ft
1 840 426 Ft/m²
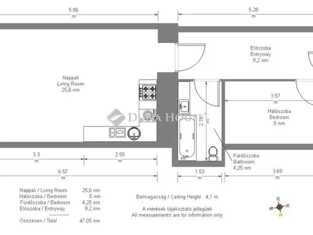
47 m²
2 szoba
1. emelet
Eladó lakás, Budapest 13. ker.
Kivételes lehetőség Újlipótváros szívében – a Vígszínház közvetlen szomszédságában!
Eladásra kínálok egy 47 m²-es, nappali + hálószobás, teljeskörűen és magas minőségben felújított lakást Budapest egyik legkedveltebb városrészében, a XIII. kerületben, közvetlenül a Vígszínház mellett. Az ingatlan egy rendezett, kulturált társasház első emeletén helyezkedik el, kiváló adottságokkal és kivételes lokációval.
A lakás teljes felújításon esett át, amely során prémium anyagokat és modern technológiákat használtak fel. A konyha gépesített és beépített, az ablakokra motoros redőnyök kerültek, a szobákban pedig minőségi faparketta teszi otthonossá a tereket. A fűtésről és hűtésről inverteres klíma gondoskodik, a biztonságot pedig egy beépített riasztórendszer garantálja.
A lakás világos és barátságos hangulatú, nagy belmagasságának köszönhetően tágas érzetet kelt. Elhelyezkedése miatt ideális választás lehet saját otthonnak, de befektetésnek is tökéletes – az ingatlan airbnb-re bejáratott, így akár azonnal hozamot termelhet új tulajdonosának.
A környék infrastruktúrája páratlan: néhány perc sétára található a Margitsziget, a Duna-part, valamint számtalan kávézó, étterem és bolt. A Nyugati pályaudvar, a 4-6-os villamos, a Lehel téri metró és több buszjárat is könnyen elérhető, így a közlekedés rendkívül kényelmes.
Ez a lakás igazi gyöngyszem azoknak, akik a belvárosi életstílust szeretnék élvezni, mégis egy igényes, modern otthont keresnek.
Ne maradjon le róla! Hívjon bizalommal, és egyeztessünk időpontot a megtekintésre – garantáltan szerelem lesz első látásra!
Tulajdonságok
Téglalakás
Felújított
Elektromos
1883
Nem adta meg a hirdető
Vedd fel a kapcsolatot a hirdetővel
+36 1 690 18
Hitelkalkulátor
Második évtől
372 257 Ft A 13. hónaptól
7,99%
Végig fix Futamidő: 20 év Banki visszahívás
Az OTP Bank munkatársai a neked megfelelő napszakban veszik fel veled a kapcsolatot.Hitelfelvétel esetén akár egy héttel rövidebb lehet az ügyintézés.
Ez az ingatlan a nálunk meglévő adatok alapján azonnali értékbecslésre alkalmas lehet.
A becslés a hirdető által megadott adatokon alapul. A jelen tájékoztatás nem minősül ajánlattételnek és nem teljes körű, az egyes feltételek a hitelbírálat eredményétől függően változhatnak. Kérjük, a részletekről tájékozódj az OTP Bank fiókjaiban vagy az OTP Bank honlapján közzétett vonatkozó Üzletszabályzatokból és Hirdetményekből.
Vedd fel a kapcsolatot a hirdetővel
+36 1 690 18
Vedd fel a kapcsolatot a hirdetővel
+36 1 690 18
UI_KIT.CHARACTER_COUNTER__COMPONENT.REMAINING_SPACE__SR_ONLYUI_KIT.CHARACTER_COUNTER__COMPONENT.MAXIMUM_CHARACTER__SR_ONLY
Hasonló eladó ingatlanok Budapest XIII. kerületben
Frissítve: ma

17
94,1 M Ft 990 526 Ft/m²
Eladó lakás, Budapest XIII. kerület, Mosoly utca

Frissítve: 6 hónapja

5
River Life
94,58 M Ft 1 477 813 Ft/m²
Eladó lakás, Budapest XIII. kerület, Népfürdő utca 47.
Frissítve: 6 hónapja

5
River Life
78,15 M Ft 1 817 442 Ft/m²
Eladó lakás, Budapest XIII. kerület, Népfürdő utca 47.

Fedezd fel a
hasonló lakásokat!Még további lakások Budapest XIII. kerületben 86,5 M Ft körüli értékben
Tovább a hirdetésekhez Frissítve: 1 hónapja

6
Kamilla Club House By Astora
89,37 M Ft 1 624 909 Ft/m²
Eladó lakás, Budapest XIII. kerület, Jász utca 48
Frissítve: 1 hónapja

11
Terracotta Clubhouse
85,27 M Ft 1 639 808 Ft/m²
Eladó lakás, Budapest XIII. kerület, Jász utca 56
Frissítve: 1 hónapja

10
Terracotta Clubhouse
89,09 M Ft 1 649 815 Ft/m²
Eladó lakás, Budapest XIII. kerület, Jász utca 56

Töltsd fel hirdetésed ingyenesen!
Egyszerű