+6 fotó
Zenga
Premier
Hirdetéskód: 8864087
Referenciaszám: 391989
Feltöltve: 1 napja
Budapest XIII. kerület eladó téglalakás 1 szobás: 53,99 millió Ft
53,99 millió Ft
1 384 359 Ft/m²
39 m²
1 szoba
2. emelet

Friss hirdetések, amiket nem találsz meg más ingatlankereső portálon.
Fedezd fel elsőként a Zenga Premier címkés eladó ingatlanokat! További részletek A Duna House, OTP Ingatlanpont, Otthon Centrum és további hálózatok új, kizárólagos hirdetéseinek nagy részét a zenga.hu és koltozzbe.hu ingatlankeresőn láthatod legelőször, és a feltöltéstől két hétig nem érhetők el más ingatlankeresőn!
Eladó téglalakás Budapest, XIII. kerület, 39nm, 53.990.000Ft - Zsilip utca
Eladó felújítandó téglaépítésű lakás Budapest 13. kerületében a Zsilip utcában.
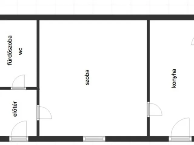
A lakás a társasház 2. emeletén található, 39 m² alapterülettel. Megközelítése függő folyosóról történik, két külön bejáraton keresztül. Az egyik bejáraton egy előszobába érkezünk, ahonnan külön nyílik a szoba, valamint a fürdőszoba WC- vel. A konyha megközelíthető a szobán keresztül, illetve a másik bejárati ajtón át is. A konyhából egy praktikus kis kamra nyílik.
A fűtést gázkonvektor biztosítja, a melegvíz ellátásról a gázkazán gondoskodik.
A lakásból a kilátás parkosított, csendes belső udvarra néző, ahol Hatalmas fa, kiülésre alkalmas padok és gondozott kert várja a lakókat.
Ideális választás lehet befektetőknek, vagy azok számára akik csendes , zöldkertes, urbanisztikus környezetben szeretnének élni. Az infrastruktúra és a közlekedés kiváló az M3 metró néhány perc alatt elérhető.
ID:391989 ...TOVÁBBI, TÖBBEZRES INGATLAN KÍNÁLAT: www.gdn-ingatlan.hu - GDN azonosító: 391989
Tulajdonságok
Téglalakás
Felújítandó
Gáz (konvektor)
1950
Nem adta meg a hirdető
Vedd fel a kapcsolatot a hirdetővel
+36 30 894 4
Hitelkalkulátor
Második évtől
232 348 Ft A 13. hónaptól
7,99%
Végig fix Futamidő: 20 év Banki visszahívás
Az OTP Bank munkatársai a neked megfelelő napszakban veszik fel veled a kapcsolatot.Hitelfelvétel esetén akár egy héttel rövidebb lehet az ügyintézés.
Ez az ingatlan a nálunk meglévő adatok alapján azonnali értékbecslésre alkalmas lehet.
A becslés a hirdető által megadott adatokon alapul. A jelen tájékoztatás nem minősül ajánlattételnek és nem teljes körű, az egyes feltételek a hitelbírálat eredményétől függően változhatnak. Kérjük, a részletekről tájékozódj az OTP Bank fiókjaiban vagy az OTP Bank honlapján közzétett vonatkozó Üzletszabályzatokból és Hirdetményekből.
Vedd fel a kapcsolatot a hirdetővel
+36 30 894 4
Vedd fel a kapcsolatot a hirdetővel
+36 30 894 4
UI_KIT.CHARACTER_COUNTER__COMPONENT.REMAINING_SPACE__SR_ONLYUI_KIT.CHARACTER_COUNTER__COMPONENT.MAXIMUM_CHARACTER__SR_ONLY
Hasonló eladó ingatlanok Budapest XIII. kerületben
Feltöltve: 1 éve
1
57 M Ft 1 140 000 Ft/m²
Eladó lakás, Budapest XIII. kerület
Frissítve: 6 napja
7
52 M Ft 945 455 Ft/m²
Eladó lakás, Budapest XIII. kerület, Mosoly utca

Frissítve: ma
7
52 M Ft 945 455 Ft/m²
Eladó lakás, Budapest XIII. kerület


Fedezd fel a
hasonló lakásokat!Még további lakások Budapest XIII. kerületben 53,99 M Ft körüli értékben
Tovább a hirdetésekhez Frissítve: 9 hónapja
5
River Life
59,09 M Ft 1 906 129 Ft/m²
Eladó lakás, Budapest XIII. kerület, Népfürdő utca 47.
Frissítve: 6 napja
20
50 M Ft 1 724 138 Ft/m²
Eladó lakás, Budapest XIII. kerület

Frissítve: 22 napja
20
50 M Ft 1 724 138 Ft/m²
Eladó lakás, Budapest XIII. kerület


