+17 fotó
Hirdetéskód: 8921453
Referenciaszám: 393407
Feltöltve: ma
Budapest XIII. kerület eladó téglalakás 3 szobás: 99,9 millió Ft
99,9 millió Ft
1 665 000 Ft/m²
60 m²
3 szoba
2. emelet
Eladó téglalakás Budapest, XIII. kerület, 60nm, 99.900.000Ft - Szegedi út
ÚJSZERŰ, 3 SZOBÁS LAKÁS NAGY TERASSZAL A SZEGEDI ÚTON !
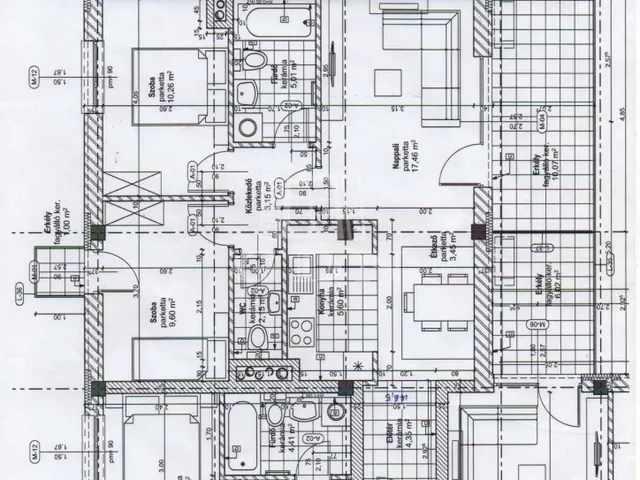
Eladó egy 2021-ben épült, 60 m²-es, 3 szobás, 2. emeleti lakás a Szegedi úton, rendezett, modern társasházban.
Az épület tiszta, gondozott, zárt belső udvarral és játszótérrel rendelkezik, valamint akadálymentesített és nagy méretű lifttel felszerelt, így minden korosztály számára kényelmes.
A lakás főbb jellemzői
világos amerikai konyhás nappali
2 külön nyíló szoba
beépített, gépesített konyha (sütő, főzőlap, mosogatógép)
klímaberendezés
elektromos alumínium redőnyök és szúnyoghálók
tágas, 10 m²-es terasz
fürdőszoba káddal
külön WC
A lakás modern, fiatalos állapotú, gyakorlatilag azonnal költözhető minimális ráfordítással.
Parkolás
Igény esetén fedett gépkocsibeálló is megvásárolható, melynek ára: 8 millió Ft.
Költözés
A lakás várhatóan júliusban költözhető.
A jelenlegi tulajdonos visszabérléssel vagy árengedménnyel rugalmasan megoldja a költözési időszakot, megegyezés szerint. ...TOVÁBBI, TÖBBEZRES INGATLAN KÍNÁLAT: www.gdn-ingatlan.hu - GDN azonosító: 393407
Tulajdonságok
Téglalakás
Újszerű
Házközponti fűtés egyedi méréssel
2021
10 m²
Nem adta meg a hirdető
Vedd fel a kapcsolatot a hirdetővel
+36 70 270 1
Hitelkalkulátor
Második évtől
429 924 Ft A 13. hónaptól
7,99%
Végig fix Futamidő: 20 év Banki visszahívás
Az OTP Bank munkatársai a neked megfelelő napszakban veszik fel veled a kapcsolatot.Hitelfelvétel esetén akár egy héttel rövidebb lehet az ügyintézés.
Ez az ingatlan a nálunk meglévő adatok alapján azonnali értékbecslésre alkalmas lehet.
A becslés a hirdető által megadott adatokon alapul. A jelen tájékoztatás nem minősül ajánlattételnek és nem teljes körű, az egyes feltételek a hitelbírálat eredményétől függően változhatnak. Kérjük, a részletekről tájékozódj az OTP Bank fiókjaiban vagy az OTP Bank honlapján közzétett vonatkozó Üzletszabályzatokból és Hirdetményekből.
Vedd fel a kapcsolatot a hirdetővel
+36 70 270 1
Vedd fel a kapcsolatot a hirdetővel
+36 70 270 1
UI_KIT.CHARACTER_COUNTER__COMPONENT.ACTUAL_CHARACTER__SR_ONLY UI_KIT.CHARACTER_COUNTER__COMPONENT.MAXIMUM_CHARACTER__SR_ONLY
Hasonló eladó ingatlanok Budapest XIII. kerületben
Frissítve: 12 napja
7
104,03 M Ft 1 529 853 Ft/m²
Eladó lakás, Budapest XIII. kerület

Frissítve: 1 hónapja
15
Metropol13 4. ütem
109,8 M Ft 1 527 191 Ft/m²
Eladó lakás, Budapest XIII. kerület
Frissítve: 13 napja
20
105 M Ft 2 234 043 Ft/m²
Eladó lakás, Budapest XIII. kerület


Fedezd fel a
hasonló lakásokat!Még további lakások Budapest XIII. kerületben 99,9 M Ft körüli értékben
Tovább a hirdetésekhez Frissítve: 14 napja
5
Cosmo Residence
99,2 M Ft 2 361 905 Ft/m²
Eladó lakás, Budapest XIII. kerület

Frissítve: 14 napja
5
Cosmo Residence
108,9 M Ft 2 792 308 Ft/m²
Eladó lakás, Budapest XIII. kerület

Frissítve: 9 hónapja
7
Waterside Residence
91,18 M Ft 1 982 174 Ft/m²
Eladó lakás, Budapest XIII. kerület, Danubius u. 7.

