+6 fotó
Hirdetéskód: 8980856
Referenciaszám: M327548
Feltöltve: ma
Budapest XIV. kerület eladó téglalakás 3 szobás: 139,9 millió Ft
139,9 millió Ft
1,73 millió Ft/m² *
* A m² árat a hirdető adta meg.
67 m²
3 szoba
1. emelet
Leírás
NAPFÉNYES LUXUS ÉS HATALMAS TERASZ ZUGLÓ SZÍVÉBEN!
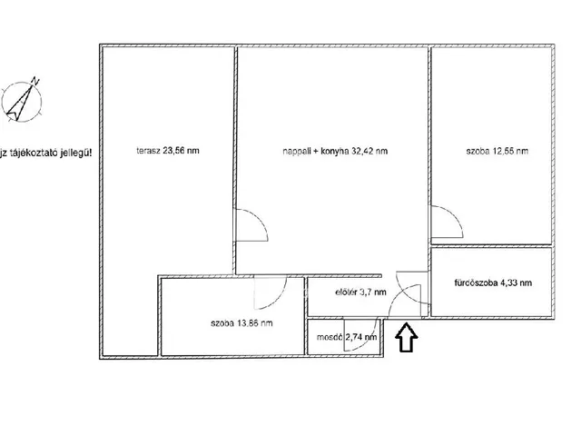
Eladásra kínálunk egy 2018-ban épült, 70 nm-es, 3 szobás téglalakást az első tulajdonostól Zugló, Alsórákos egyik legkedveltebb részén. Ez az ingatlan nem csupán egy lakás, hanem egy életérzés: a modern építészeti megoldások, a tágas terek és a lenyűgöző, 23 nm-es délnyugati fekvésű terasz kombinációja teszi egyedülállóvá a piacon.
A XIV. kerület, Alsórákos egyik legkeresettebb része. Kiváló közlekedés (trolik, buszok pár percre), sétatávolságra boltok, iskolák, óvodák és kikapcsolódási lehetőségek. Minden elérhető, amire a mindennapi életben szükség van, mégis zöldebb, élhetőbb környezetben.
FŐBB JELLEMZŐK:
Alapterület: 70 nm lakótér + 23 nm terasz.
Elosztás: Amerikai konyhás nappali + 2 külön nyíló hálószoba (ideális családoknak vagy home office-hoz).
Állapot: Fiatal, 2018-as építésű társasház, kifogástalan állapot.
Kényelem: Légkondicionált helyiségek, akadálymentesített épület, modern lift.
Fényviszonyok: Délnyugati tájolásának köszönhetően a lakás egész nap úszik a természetes fényben.
Kilátás: Csendes, belső udvari nézet, amely garantálja a nyugalmat a városi nyüzsgés közepette is.
A lakás 2018-as átadását követően 2021-ben minden konstrukciós hibát kijavított a kivitelező, így a lakás kifogástalan állapotban várja az új tulajdonosát, semmihez nem kellett hozzányúlni köszönhetően a gondos tulajdonosoknak.
Az eladási ár részét képezik a beépített bútorok a konyhában, az előszobában, mosdóban, fürdőszobában, valamint az egyik hálószobában található nagyméretű gardrób szekrény is. Minden egyéb mozdítható bútorzat külön megbeszélés tárgya.
Az ingatlanhoz OPCIONÁLISAN megvásárolható egy kényelmes hely a teremgarázsban is, így a parkolás sosem lesz probléma, illetve egy tároló is szükség esetén.
A teraszon holland pázsit szolgálja a lakók kényelmét, az ablakokon szúnyogháló található, ha már elege lett túl sok napfényből a teraszon egy motoros napernyő is lett beépítve, hogy hűs árnyékot nyújtson az ott tartózkodóknak.
KINEK AJÁNLJUK?
Fiatal pároknak/családoknak: Aki modern, biztonságos és igényes otthont keresnek.
A terasz szerelmeseinek: Akiknek fontos a saját kültéri birodalom, ahol kávézhatnak, kertészkedhetnek vagy barátokat fogadhatnak.
NE MARADJON LE RÓLA!
Ez az ingatlan ritka kincs a zuglói piacon. Jöjjön el, nézze meg személyesen, és szeressen bele a tágas terasz adta szabadságba!
Az OTP Ingatlanpont teljes körű ügyintézéssel áll az eladók és a vevők rendelkezésére. A kínálatunkból választott ingatlan finanszírozásához kedvezményes hitelkonstrukciót kínálunk. Az adásvételi szerződés megkötéséhez igény szerint megbízható ügyvédi közreműködést biztosítunk, és segítséget nyújtunk az adásvételhez kapcsolódó ügyek intézéséhez is.
Tulajdonságok
Téglalakás
Újszerű
Házközponti fűtés egyedi méréssel
2018
23,6 m²
Nem adta meg a hirdető
Vedd fel a kapcsolatot a hirdetővel

Varga László Pál
Budapest XV. Kerület Szentmihályi út 131 - OTP Ingatlanpont Iroda
Az iroda összes hirdetése +36 20 283 3
Hitelkalkulátor
Második évtől
602 066 Ft A 13. hónaptól
7,99%
Végig fix Futamidő: 20 év Banki visszahívás
Az OTP Bank munkatársai a neked megfelelő napszakban veszik fel veled a kapcsolatot.Hitelfelvétel esetén akár egy héttel rövidebb lehet az ügyintézés.
Ez az ingatlan a nálunk meglévő adatok alapján azonnali értékbecslésre alkalmas lehet.
A becslés a hirdető által megadott adatokon alapul. A jelen tájékoztatás nem minősül ajánlattételnek és nem teljes körű, az egyes feltételek a hitelbírálat eredményétől függően változhatnak. Kérjük, a részletekről tájékozódj az OTP Bank fiókjaiban vagy az OTP Bank honlapján közzétett vonatkozó Üzletszabályzatokból és Hirdetményekből.
Vedd fel a kapcsolatot a hirdetővel

Varga László Pál
Budapest XV. Kerület Szentmihályi út 131 - OTP Ingatlanpont Iroda
Az iroda összes hirdetése +36 20 283 3
Vedd fel a kapcsolatot a hirdetővel

Varga László Pál
Budapest XV. Kerület Szentmihályi út 131 - OTP Ingatlanpont Iroda
Az iroda összes hirdetése +36 20 283 3
UI_KIT.CHARACTER_COUNTER__COMPONENT.ACTUAL_CHARACTER__SR_ONLY UI_KIT.CHARACTER_COUNTER__COMPONENT.MAXIMUM_CHARACTER__SR_ONLY
Hasonló eladó ingatlanok Alsórákos városrészben
Frissítve: 6 napja
20
129,49 millió Ft 1,06 millió Ft/m²
Eladó lakás, Budapest XIV. kerület, Alsórákos, Gödöllői utca
Frissítve: ma
8
129 millió Ft 1,82 millió Ft/m²
Eladó lakás, Budapest XIV. kerület, Alsórákos

Frissítve: 9 napja
9
129 millió Ft 2,19 millió Ft/m²
Eladó lakás, Budapest XIV. kerület, Alsórákos


Fedezd fel a
hasonló lakásokat!Még további lakások Budapest XIV. kerület, Alsórákos városrészben 139,9 M Ft körüli értékben
Tovább a hirdetésekhez Frissítve: 9 napja
16
130,5 millió Ft 1,84 millió Ft/m²
Eladó lakás, Budapest XIV. kerület, Alsórákos

Frissítve: 15 napja
14
128 millió Ft 2,46 millió Ft/m²
Eladó lakás, Budapest XIV. kerület, Alsórákos
Frissítve: 3 hónapja
20
129,5 millió Ft 1,62 millió Ft/m²
Eladó lakás, Budapest XIV. kerület, Alsórákos
