

+3 fotó
Hirdetéskód: 8733004
Referenciaszám: PR050693/LK/23095-5048923
Feltöltve: 1 napja
Budapest XIV. kerület eladó téglalakás 4 szobás: 170,22 millió Ft
170,22 millió Ft
1 590 802 Ft/m²
107 m²
4 szoba
Eladó lakás, Budapest 14. ker.
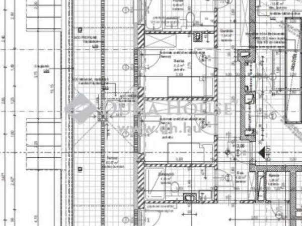
KISVÁROSIAS KÖRNYEZETBEN ÁLOM OTTHONOK.IGÉNYES építészeti megjelenés, ÉRTÉKÁLLÓ, UNIKÁLIS lakókörnyezetet biztosít.VÁRJUK az ÚJ tulajdonosokat.Budapest 14. kerületében, ZUGLÓ közkedvelt városrészében, egy csendes utcában 3155 nm-s telken, PRÉMIUM minőségben épül.A társasházban összesen 44 db változatos méretű, napfényes erkély vagy terasz kapcsolatos prémiumlakás kap helyet.A földszinttől a 3. emeletig a szinteken épületenként 5-5 lakás, míg a tetőszinten épületenként 2-2 db penthouse lakás létesül.A lakások nappali +1 vagy nappali+2 vagy nappali+3 szoba kialakítással választhatók.Az otthonok kényelméért épületenként 1-1 db személyfelvonót terveztek, melyek a közös -1. pinceszintet érintik.Az épületek alatt kialakított teremgarázs és a kerékpártartó lehetővé teszi a hangulatos kert szabad részeinek parkosítását és a földszinti lakások kertkapcsolatát.Opcionálisan parkolók 7 500 000.- Ft/db és a kerékpár tárolók 250 000.-Ft/db ártól elérhetők.A társasház főbb műszaki jellemzői: - környezetbarát és energiatakarékos, modern műszaki megoldásai az energiaköltségek csökkentését támogatják. - energetikai besorolása A - a fűtés, mennyezeti hűtés- és fűtés, a lakók tökéletes komfortérzetéhez járul hozzá. - a hőleadók, a mennyezetbe épített szabad szemmel nem látható hűtő-fűtő rendszerek - a költség elszámolás fogyasztás alapú hőmennyiség mérő és víz mellékmérő kiépítésével lesz megvalósítva. - a riasztó rendszer előkészítése, műanyag szerkezetű, hőszigetelt üvegezéssel nyílászárók, több ponton záródó biztonsági hőszigetelt bejárati ajtók nyitásérzékelővel kerülnek beépítésre.A beruházó cég portfóliójában számos referencia projekt megtalálható.A változatos méretű lakástípusok között MINDEN KOROSZTÁLY megtalálja álmai otthonát.Könnyített fizetési ütemezéssel vásárolhatók meg a lakások:- 2 millió Ft regisztrációs díj- szerződéskötéskor 20%, majd 3 hónap múlva +20%- használatbavételkor 60% Várható átadás: 2026. márciusKözlekedés: A város különböző pontja könnyen elérhető, számos busz, trolibusz, villamos és kerékpárutak közelsége valamint 10-15 percen belül elérhető a M2,M1 valamint Zugló - és a Keleti pályaudvar.Kulturális látnivalók, oktatási intézmények, szórakozási, sportolási, vásárlási lehetőségek gazdagítják a mindennapokat.If you are looking for a functional apartment or investment in the Pest area, please feel free to contact me.Egyeztessen időpontot, tapasztalja meg személyesen ebben a KIVÁLÓ környezetben épülő lakások előnyeit.Várom megkeresését..
Referencia szám: PR050693/LK/23095
Tulajdonságok
2026
Nem adta meg a hirdető
Vedd fel a kapcsolatot a hirdetővel
+36 28 814 7
Hitelkalkulátor
Második évtől
732 531 Ft A 13. hónaptól
7,99% 8,49%
Végig fix Futamidő: 20 év Banki visszahívás
Az OTP Bank munkatársai a neked megfelelő napszakban veszik fel veled a kapcsolatot.Hitelfelvétel esetén akár egy héttel rövidebb lehet az ügyintézés.
Ez az ingatlan a nálunk meglévő adatok alapján azonnali értékbecslésre alkalmas lehet.
A becslés a hirdető által megadott adatokon alapul. A jelen tájékoztatás nem minősül ajánlattételnek és nem teljes körű, az egyes feltételek a hitelbírálat eredményétől függően változhatnak. Kérjük, a részletekről tájékozódj az OTP Bank fiókjaiban vagy az OTP Bank honlapján közzétett vonatkozó Üzletszabályzatokból és Hirdetményekből.
Vedd fel a kapcsolatot a hirdetővel
+36 28 814 7
Vedd fel a kapcsolatot a hirdetővel
+36 28 814 7
UI_KIT.CHARACTER_COUNTER__COMPONENT.REMAINING_SPACE__SR_ONLYUI_KIT.CHARACTER_COUNTER__COMPONENT.MAXIMUM_CHARACTER__SR_ONLY
Hasonló eladó ingatlanok Budapest XIV. kerületben
Frissítve: 11 napja

19
185 M Ft 385 417 Ft/m²
Eladó lakás, Budapest XIV. kerület, Vezér utca

Frissítve: 11 napja

5
Silver 40
170,22 M Ft 1 549 953 Ft/m²
Eladó lakás, Budapest XIV. kerület

Frissítve: 11 napja

5
Silver 40
171,83 M Ft 1 549 953 Ft/m²
Eladó lakás, Budapest XIV. kerület


Fedezd fel a
hasonló lakásokat!Még további lakások Budapest XIV. kerületben 170,22 M Ft körüli értékben
Tovább a hirdetésekhez Frissítve: 4 napja

6
170,22 M Ft 2 182 254 Ft/m²
Eladó lakás, Budapest XIV. kerület

Frissítve: 17 napja

6
171,83 M Ft 2 175 036 Ft/m²
Eladó lakás, Budapest XIV. kerület

Feltöltve: 6 hónapja

1
159 M Ft 1 282 258 Ft/m²
Eladó lakás, Budapest XIV. kerület, Csömöri út 78

Töltsd fel hirdetésed ingyenesen!
Egyszerű