

+16 fotó
Hirdetéskód: 8741883
Referenciaszám: M283459-5059073
Feltöltve: 1 napja
Budapest XIV. kerület eladó téglalakás 2 szobás: 108 millió Ft
108 millió Ft
1 661 538 Ft/m²
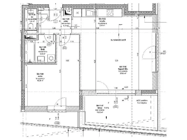
65 m²
2 szoba
1. emelet
Új építésű lakás Zuglóban!
AKÁR AZONNAL BIRTOKBA VEHETŐ ÚJ ÉPÍTÉSŰ LAKÁSOK ZUGLÓ SZÍVÉBEN!
Fedezze fel Zugló egyik legkedveltebb részén elhelyezkedő modern lakóparkunkat, ahol változatos méretű és beosztású lakások várják új tulajdonosaikat!
A lakópark egy két épületből álló épületegyüttes, amely öt lépcsőházzal, valamint 3-5 és 6 emeletes szárnyakkal rendelkezik.
A lakópark főbb jellemzői:
- Minden lakás kialakításánál nagy figyelmet fordítottak a napfényes és élhető elrendezésre. Minden lakáshoz tartozik terasz vagy loggia. Ezen felül az épületek felsőbb szinti lakásainak többségéhez nagyméretű teraszok, míg a földszinti lakásokhoz magánhasználatú kertrészek kapcsolódnak.
- A fűtési és hűtési energiát környezetbarát, levegős hőszivattyúrendszer biztosítja. A hőleadók mennyezetbe épített (szabad szemmel nem látható) hűtő-, fűtőrendszerek, melyekkel a helyiségek hőmérséklete egyedileg szabályozható, akár intelligens/okos hálózat részeként. A meleg víz előállításáról a központi gépészeti helyiségekben elhelyezett fali gázkazánok gondoskodnak.
- Egyéb kényelmi szempontokat is figyelembe véve a következő extrák kerültek kialakításra: beépített redőnyök elektromos előkészítése, belső díszkertek, kerékpártároló, elektromosautó-töltési lehetőség (külön kérés és felár ellenében), valamint okosotthon és kamerarendszer garantálja a biztonságot és a kényelmet.
- Teremgarázs és felszíni beálló biztosítja a kényelmes parkolást, ahol különböző méretű gépkocsibeállók közül választhat. A garázsszinteken emellett külön bejáratú tárolók vásárlása is lehetséges.
- Lakásainkhoz választható burkolatok és szaniterek tartoznak, így teljesen személyre szabhatja új otthonát.
Ne hagyja ki ezt a páratlan lehetőséget, hogy egy kiváló infrastruktúrával rendelkező, modern és biztonságos lakóparkban találja meg álmai otthonát!
Vegye fel velem a kapcsolatot és tekintse meg személyesen az eladó lakásokat Zugló legjobb részén - várom megtisztelő hívását! M283459
Tulajdonságok
Téglalakás
Új építésű
Geotermikus
2025
Nem adta meg a hirdető
Vedd fel a kapcsolatot a hirdetővel
Fábián Éva OTPip - Szigetszentmiklós Tököli út 19.B - OTP Ingatlanpont Iroda Az iroda összes hirdetése
+36 70 907 6
Hitelkalkulátor
Második évtől
464 783 Ft A 13. hónaptól
7,99% 8,49%
Végig fix Futamidő: 20 év Banki visszahívás
Az OTP Bank munkatársai a neked megfelelő napszakban veszik fel veled a kapcsolatot.Hitelfelvétel esetén akár egy héttel rövidebb lehet az ügyintézés.
Ez az ingatlan a nálunk meglévő adatok alapján azonnali értékbecslésre alkalmas lehet.
A becslés a hirdető által megadott adatokon alapul. A jelen tájékoztatás nem minősül ajánlattételnek és nem teljes körű, az egyes feltételek a hitelbírálat eredményétől függően változhatnak. Kérjük, a részletekről tájékozódj az OTP Bank fiókjaiban vagy az OTP Bank honlapján közzétett vonatkozó Üzletszabályzatokból és Hirdetményekből.
Vedd fel a kapcsolatot a hirdetővel
Fábián Éva OTPip - Szigetszentmiklós Tököli út 19.B - OTP Ingatlanpont Iroda Az iroda összes hirdetése
+36 70 907 6
Vedd fel a kapcsolatot a hirdetővel
Fábián Éva OTPip - Szigetszentmiklós Tököli út 19.B - OTP Ingatlanpont Iroda Az iroda összes hirdetése
+36 70 907 6
UI_KIT.CHARACTER_COUNTER__COMPONENT.REMAINING_SPACE__SR_ONLYUI_KIT.CHARACTER_COUNTER__COMPONENT.MAXIMUM_CHARACTER__SR_ONLY
Hasonló eladó ingatlanok Budapest XIV. kerületben
Frissítve: 2 napja

18
105,99 M Ft 1 581 940 Ft/m²
Eladó lakás, Budapest XIV. kerület
Frissítve: 18 napja
0
100 M Ft 303 030 Ft/m²
Eladó lakás, Budapest XIV. kerület, Kövér Lajos utca

Frissítve: 18 napja

20
Pillangó Projekt - Zugló
105,99 M Ft 1 517 612 Ft/m²
Eladó lakás, Budapest XIV. kerület, Bíbor utca


Fedezd fel a
hasonló lakásokat!Még további lakások Budapest XIV. kerületben 108 M Ft körüli értékben
Tovább a hirdetésekhez Frissítve: 18 napja

20
Pillangó Projekt - Zugló
105,99 M Ft 1 517 612 Ft/m²
Eladó lakás, Budapest XIV. kerület, Bíbor utca

Frissítve: 18 napja

20
Pillangó Projekt - Zugló
105,99 M Ft 1 517 612 Ft/m²
Eladó lakás, Budapest XIV. kerület, Bíbor utca

Frissítve: ma

18
99 M Ft
Eladó lakás, Budapest XIV. kerület, Kassai utca


Töltsd fel hirdetésed ingyenesen!
Egyszerű