+11 fotó
Hirdetéskód: 8819107
Referenciaszám: 390511
Feltöltve: 7 napja
Budapest XIV. kerület eladó téglalakás 3 szobás: 99,9 millió Ft
99,9 millió Ft
1 585 714 Ft/m²
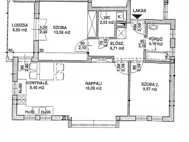
63 m²
3 szoba
2. emelet
Eladó téglalakás Budapest, XIV. kerület, 63nm, 99.900.000Ft - Modern, napfényes, energiatakarékos
Budapest XIV. kerületében, Alsórákoson megvételre kínáljuk ezt a 63 m² + 5,5 m² erkélyes, 3 szobás, modern és energiatakarékos lakást. Tökéletes választás akár családoknak, pároknak, vagy befektetőknek.
A LAKÁS, ami minden nap mosolyt csal az arcára!
•Átgondolt elosztás – külön nyíló szobák, ideális terekkel.
•Amerikai konyhás nappali: csodás, napfényes, tágas központja az otthonnak.
•Modern gépesített konyha: Gorenje főzőlap, Bosch sütő, mosogatógép, mosó–szárítógép
•Energiahatékony hőszivattyús padlófűtés H-tarifával → rezsicsökkentő álom!
•Klíma, redőny, szúnyogháló, prémium nyílászárók.
•Biztonságos otthon: kiépített riasztórendszer.
•Minőségi fürdőszoba, külön toilette
•Erkély, amely a nappaliból és a hálóból is elérhető – tökéletes reggeli kávéhoz, esti pihenéshez, home office szünethez.
A társasház:
• 2013-ban épült, modern 11 lakásos társasház (10 lakás + 1 üzlethelyiség).
• Rendezett, gondozott, kertész által karbantartott közös kert — ideális gyerekeknek, grillezéshez vagy csak relaxáláshoz.
• Zárt lépcsőház, mélygarázs és tárolók a pinceszinten — extra kényelem és biztonság.
Elhelyezkedés & infrastruktúra
• Szuper közlekedés: 80-as trolimegálló 30 méterre, 3-as és 62-es villamos ~200 méterre — pár perc alatt eljut a város szívébe, a belvárosba és a főbb csomópontokra.
• Bevásárlás, szolgáltatások: 5–10 perc autóval az Árkád Plaza, SUGÁR Üzletközpont, IKEA Örs vezér tere – mind elérhető közelségben.
• Oktatás / családbarát közeg: több bölcsőde, óvoda, iskola 500 m-en belül; közel a Metropolitan Egyetem is, mindössze 10 perc sétára.
Az ingatlanhoz tartozó csomag része egy mélygarázs-parkolóhely és egy 5 m²-es tároló is, amelyek külön értékesítési áron érhetők el.
Ezek ára 9+9MFt.
A lakás tehermentes és rövid időn belül költözhető. ...TOVÁBBI, TÖBBEZRES INGATLAN KÍNÁLAT: www.gdn-ingatlan.hu - GDN azonosító: 390511
Tulajdonságok
Téglalakás
Újszerű
Hőszivattyú
2013
5 m²
A
Vedd fel a kapcsolatot a hirdetővel
+36 70 409 1
Hitelkalkulátor
Második évtől
429 924 Ft A 13. hónaptól
7,99%
Végig fix Futamidő: 20 év Banki visszahívás
Az OTP Bank munkatársai a neked megfelelő napszakban veszik fel veled a kapcsolatot.Hitelfelvétel esetén akár egy héttel rövidebb lehet az ügyintézés.
Ez az ingatlan a nálunk meglévő adatok alapján azonnali értékbecslésre alkalmas lehet.
A becslés a hirdető által megadott adatokon alapul. A jelen tájékoztatás nem minősül ajánlattételnek és nem teljes körű, az egyes feltételek a hitelbírálat eredményétől függően változhatnak. Kérjük, a részletekről tájékozódj az OTP Bank fiókjaiban vagy az OTP Bank honlapján közzétett vonatkozó Üzletszabályzatokból és Hirdetményekből.
Vedd fel a kapcsolatot a hirdetővel
+36 70 409 1
Vedd fel a kapcsolatot a hirdetővel
+36 70 409 1
UI_KIT.CHARACTER_COUNTER__COMPONENT.REMAINING_SPACE__SR_ONLYUI_KIT.CHARACTER_COUNTER__COMPONENT.MAXIMUM_CHARACTER__SR_ONLY
Hasonló eladó ingatlanok Budapest XIV. kerületben
Frissítve: 23 napja
6
107 M Ft 1 725 806 Ft/m²
Eladó lakás, Budapest XIV. kerület

Frissítve: ma
14
105,99 M Ft 1 536 087 Ft/m²
Eladó lakás, Budapest XIV. kerület

Frissítve: ma
18
99 M Ft
Eladó lakás, Budapest XIV. kerület, Kassai utca


Fedezd fel a
hasonló lakásokat!Még további lakások Budapest XIV. kerületben 99,9 M Ft körüli értékben
Tovább a hirdetésekhez Frissítve: 18 napja
6
107 M Ft 1 528 571 Ft/m²
Eladó lakás, Budapest XIV. kerület

Frissítve: 27 napja
7
106,08 M Ft 1 828 966 Ft/m²
Eladó lakás, Budapest XIV. kerület

Frissítve: 21 napja
8
Fenntartható élet, modern otthonok Zuglóban
108 M Ft 1 653 652 Ft/m²
Eladó lakás, Budapest XIV. kerület


Töltsd fel hirdetésed ingyenesen!
Egyszerű
