+17 fotó
Hirdetéskód: 8933912
Referenciaszám: M324871-5176959
Feltöltve: ma
Budapest XIV. kerület eladó téglalakás 3+1 fél szobás: 124,9 millió Ft
124,9 millió Ft
1 212 621 Ft/m²
103 m²
3+1 fél szoba
földszint
Eladó Lakás, Budapest 14. ker.
Két ingatlan egy áráért! Kertkapcsolatos prémium otthon és külön apartman Istvánmező szívében!
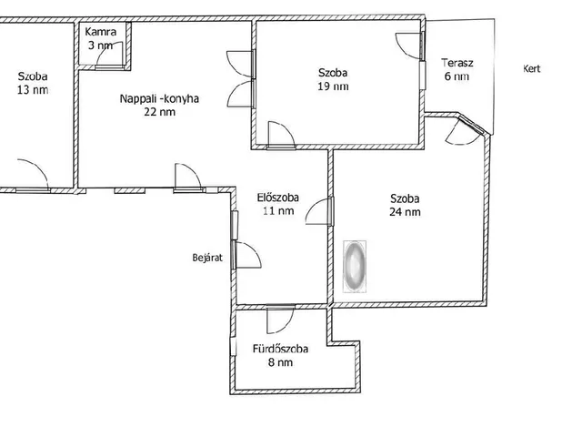
Eladásra kínálok a XIV. kerület egyik legkedveltebb részén, Istvánmezőn egy 103 nm-es, földszinti, teljes körűen és magas minőségben felújított ingatlant. A lakás különlegessége a rendkívül rugalmas kialakítás: az ingatlan egyik szobája saját bejárattal és önálló mérőórával rendelkezik, így gyakorlatilag két ingatlant kapunk egy áráért. Ez a rész ideális lehet különálló stúdióként, irodának vagy vendéglakrésznek, de a fő lakótérrel egybenyitva egy tágas, három hálószobás családi otthonként is tökéletesen funkcionál.
A belső terek 3,2 méteres belmagassága elegáns, levegős érzetet biztosít, a tágas amerikai konyhás nappali központi dísze pedig egy egyedileg beépített kandalló, amely ritka és hangulatos eleme a lakásnak. A szobákból közvetlen kijárás nyílik a 6 nm-es saját teraszra, amelyen keresztül a kertkapcsolat előnyeit is élvezhetjük a város szívében.
A felújítás során a legkorszerűbb műszaki megoldásokat alkalmazták. A lakás hő- és hangszigeteléséről háromrétegű nyílászárók és elektromos redőnyök gondoskodnak, a kellemes hőérzetet pedig egyedileg szabályozható gáz-cirkó fűtéssel ( hidegburkolat alatt padlófűtés) és klímaberendezés biztosítja. A biztonságról kiépített riasztórendszer gondoskodik, a tárolást pedig a lakáshoz tartozó saját pincehelyiség segíti.
A ház lakóközössége és maga a ház is rendezett, karbantartott.
A modern gépészetnek köszönhetően a fenntartási költségek rendkívül kedvezőek, a közös költség mindössze 24 000 Ft havonta. Ez az ingatlan kiváló választás mindazoknak, akik csendes, nívós környezetben keresnek azonnal költözhető, többcélú hasznosításra is alkalmas prémium otthont vagy értékálló befektetést.
Referencia szám: M324871
Tulajdonságok
Téglalakás
Jó állapotú
Gázkazán
1915
Nem adta meg a hirdető
Vedd fel a kapcsolatot a hirdetővel
Fodor Zoltán OTPip - Budapest XIII. kerület Pannónia utca 25 - OTP Ingatlanpont Iroda Az iroda összes hirdetése
+36 70 675 2
Hitelkalkulátor
Második évtől
537 513 Ft A 13. hónaptól
7,99%
Végig fix Futamidő: 20 év Banki visszahívás
Az OTP Bank munkatársai a neked megfelelő napszakban veszik fel veled a kapcsolatot.Hitelfelvétel esetén akár egy héttel rövidebb lehet az ügyintézés.
Ez az ingatlan a nálunk meglévő adatok alapján azonnali értékbecslésre alkalmas lehet.
A becslés a hirdető által megadott adatokon alapul. A jelen tájékoztatás nem minősül ajánlattételnek és nem teljes körű, az egyes feltételek a hitelbírálat eredményétől függően változhatnak. Kérjük, a részletekről tájékozódj az OTP Bank fiókjaiban vagy az OTP Bank honlapján közzétett vonatkozó Üzletszabályzatokból és Hirdetményekből.
Vedd fel a kapcsolatot a hirdetővel
Fodor Zoltán OTPip - Budapest XIII. kerület Pannónia utca 25 - OTP Ingatlanpont Iroda Az iroda összes hirdetése
+36 70 675 2
Vedd fel a kapcsolatot a hirdetővel
Fodor Zoltán OTPip - Budapest XIII. kerület Pannónia utca 25 - OTP Ingatlanpont Iroda Az iroda összes hirdetése
+36 70 675 2
UI_KIT.CHARACTER_COUNTER__COMPONENT.ACTUAL_CHARACTER__SR_ONLY UI_KIT.CHARACTER_COUNTER__COMPONENT.MAXIMUM_CHARACTER__SR_ONLY
Hasonló eladó ingatlanok Budapest XIV. kerületben
Frissítve: 26 napja
7
MODERN Új lakások Zuglóban
130,5 M Ft 1 592 046 Ft/m²
Eladó lakás, Budapest XIV. kerület

Frissítve: 4 napja
7
130,5 M Ft 1 500 000 Ft/m²
Eladó lakás, Budapest XIV. kerület

Frissítve: 22 napja
8
Fenntartható élet, modern otthonok Zuglóban
131 M Ft 131 000 000 Ft/m²
Eladó lakás, Budapest XIV. kerület


Fedezd fel a
hasonló lakásokat!Még további lakások Budapest XIV. kerületben 124,9 M Ft körüli értékben
Tovább a hirdetésekhez Frissítve: 1 éve
1
130 M Ft 650 000 Ft/m²
Eladó lakás, Budapest XIV. kerület
Frissítve: 26 napja
7
MODERN Új lakások Zuglóban
121,4 M Ft 1 615 221 Ft/m²
Eladó lakás, Budapest XIV. kerület

Frissítve: ma
12
119,6 M Ft 1 150 000 Ft/m²
Eladó lakás, Budapest XIV. kerület

