

+18 fotó
Hirdetéskód: 8562823
Referenciaszám: H499317-4912326
Frissítve: ma
Budapest XIX. kerület eladó téglalakás 3 szobás: 120 millió Ft
120 millió Ft
1 200 000 Ft/m²
100 m²
3 szoba
földszint
Eladó lakás Budapest 19. ker., Kertváros
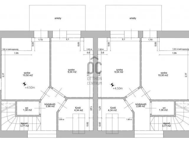
Megvételre kínálunk Kispest kertvárosában újépítésű belső kétszintes nettó 100 m2 -es lakást.
Az ingatlan magas minőségű alapanyagok felhasználásával, jó műszaki tartalommal épült.
Elosztása: amerikai konyhás nappali plusz három hálószoba, fürdőszoba WC-vel, külön WC, előszoba.
Műszaki jellemzők:
-Hőszivattyús hűtés-fűtés
- minden szoba klimatizált,
- padlófűtés
- elektromos alumínium redőnyök
- szúnyogháló
- videós kaputelefon
Várható átadás 2025 II negyedév.
Amennyiben olyan új ingatlant szeretne, ahol kis lakóközösség várja Önt, biztosíthatom, hogy az egyik legjobb választás a kerületben.
A közelében minden megtalálható, ami fontos a hétköznapokban.
A környék remek infrastruktúrával rendelkezik.
CSOK, Babaváró, Lakásfelújítás, Támogatott hitelek?
Irodánk minden állami támogatás és lakáshitel igény kapcsán DÍJMENTES és SZAKÉRTŐ segítséget nyújt!
Igény szerint ügyvédi hátteret is biztosítunk.
Bővebb információért keressen, várom!
Beck Zita +36 70 4545076
beck.zita@oc.hu
Referencia szám: H499317
Tulajdonságok
Téglalakás
Új építésű
Hőszivattyú
2025
Nem adta meg a hirdető
Vedd fel a kapcsolatot a hirdetővel
+36 70 388 5
Hitelkalkulátor
Második évtől
516 425 Ft A 13. hónaptól
7,99% 8,49%
Végig fix Futamidő: 20 év Banki visszahívás
Az OTP Bank munkatársai a neked megfelelő napszakban veszik fel veled a kapcsolatot.Hitelfelvétel esetén akár egy héttel rövidebb lehet az ügyintézés.
Ez az ingatlan a nálunk meglévő adatok alapján azonnali értékbecslésre alkalmas lehet.
A becslés a hirdető által megadott adatokon alapul. A jelen tájékoztatás nem minősül ajánlattételnek és nem teljes körű, az egyes feltételek a hitelbírálat eredményétől függően változhatnak. Kérjük, a részletekről tájékozódj az OTP Bank fiókjaiban vagy az OTP Bank honlapján közzétett vonatkozó Üzletszabályzatokból és Hirdetményekből.
Vedd fel a kapcsolatot a hirdetővel
+36 70 388 5
Vedd fel a kapcsolatot a hirdetővel
+36 70 388 5
UI_KIT.CHARACTER_COUNTER__COMPONENT.REMAINING_SPACE__SR_ONLYUI_KIT.CHARACTER_COUNTER__COMPONENT.MAXIMUM_CHARACTER__SR_ONLY
Hasonló eladó ingatlanok Kertváros városrészben
Frissítve: 14 napja

20
120 M Ft 1 200 000 Ft/m²
Eladó lakás, Budapest XIX. kerület, Kertváros, Vas Gereben utca

Frissítve: ma

20
120 M Ft 1 200 000 Ft/m²
Eladó lakás, Budapest XIX. kerület, Kertváros

Frissítve: ma

20
120 M Ft 1 200 000 Ft/m²
Eladó lakás, Budapest XIX. kerület, Kertváros


Fedezd fel a
hasonló lakásokat!Még további lakások Budapest XIX. kerületben 120 M Ft körüli értékben
Tovább a hirdetésekhez Frissítve: ma

20
120 M Ft 1 200 000 Ft/m²
Eladó lakás, Budapest XIX. kerület, Kertváros

Frissítve: 13 napja

20
124,78 M Ft 1 890 564 Ft/m²
Eladó lakás, Budapest XIX. kerület

Frissítve: 13 napja

20
108,34 M Ft 1 805 594 Ft/m²
Eladó lakás, Budapest XIX. kerület


Töltsd fel hirdetésed ingyenesen!
Egyszerű