+10 fotó
Hirdetéskód: 8899188
Referenciaszám: M322606-5155601
Feltöltve: ma
Budapest XIX. kerület eladó téglalakás 3 szobás: 86,9 millió Ft
86,9 millió Ft
1 046 988 Ft/m²
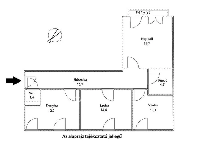
83 m²
3 szoba
1. emelet
Eladó Lakás, Budapest 19. ker.
Tágas terek, modern alapok 3 szobás újszerű lakás Kispest szívében!
Budapest XIX. kerületének egyik kedvelt, családbarát részén, a Báthory utca egyik 2007-ben épült, téglaépítésű lakóparkjában kínálunk megvételre egy 83 nm-es, három külön nyíló szobás lakást. Az ingatlan ideális választás mindazok számára, akik nem szeretnének kompromisszumot kötni a tágas élettér és a modern komfort között.
A lakás élhető, jól átgondolt elosztású: mindhárom szoba külön nyílik, így a család minden tagjának biztosított a saját, intim tér. Keleti-délkeleti fekvésének és nagyméretű ablakainak köszönhetően a lakás egész nap világos, napfényes, barátságos hangulatú. A 4 nm-es erkély kellemes helyszíne lehet a reggeli kávézásnak vagy az esti kikapcsolódásnak.
Az ingatlan tavaly tisztasági festésen esett át, minden szobában modern hűtő-fűtő klíma és szúnyogháló szolgálja a kényelmet. A fűtésről egyedi gázkazán gondoskodik, a meleg vizet villanybojler biztosítja. A közös költség 25.000 Ft, amely kedvező fenntartást tesz lehetővé.
A praktikumról és biztonságról is gondoskodtak: a zárt udvarban saját gépkocsibeálló tartozik a lakáshoz, amely a vételár részét képezi. Opcionálisan megvásárolható egy 6,5 nm-es, földszinti tároló is 3 millió forintért, amely ideális kerékpár, babakocsi vagy szezonális holmik elhelyezésére.
Az ingatlan tehermentes, első tulajdonostól eladó és azonnal költözhető. Finanszírozás szempontjából is kedvező választás, hiszen megfelel az Otthon Start hitel feltételeinek, így akár fix 3%-os kamatozású konstrukcióval is megvásárolható.
A lokáció kiváló: a KÖKI Terminál, a Shopmark és a Kispesti piac percek alatt elérhető. A metró villamossal mindössze néhány perc, így a belváros gyorsan megközelíthető, miközben a lakópark csendes, nyugodt környezetet biztosít.
Ha egy tágas, modern, azonnal költözhető otthont keres Kispesten, ezt a lakást érdemes személyesen is megtekinteni. Várom megkeresését a hét bármely napján!
Tulajdonságok
Téglalakás
Jó állapotú
Gázkazán
2007
Nem adta meg a hirdető
Vedd fel a kapcsolatot a hirdetővel
Dr. Jakus Péter OTPip - Budapest IX. kerület Üllői út 21 - OTP Ingatlanpont Iroda Az iroda összes hirdetése
+36 30 426 7
Hitelkalkulátor
Második évtől
373 978 Ft A 13. hónaptól
7,99%
Végig fix Futamidő: 20 év Banki visszahívás
Az OTP Bank munkatársai a neked megfelelő napszakban veszik fel veled a kapcsolatot.Hitelfelvétel esetén akár egy héttel rövidebb lehet az ügyintézés.
Ez az ingatlan a nálunk meglévő adatok alapján azonnali értékbecslésre alkalmas lehet.
A becslés a hirdető által megadott adatokon alapul. A jelen tájékoztatás nem minősül ajánlattételnek és nem teljes körű, az egyes feltételek a hitelbírálat eredményétől függően változhatnak. Kérjük, a részletekről tájékozódj az OTP Bank fiókjaiban vagy az OTP Bank honlapján közzétett vonatkozó Üzletszabályzatokból és Hirdetményekből.
Vedd fel a kapcsolatot a hirdetővel
Dr. Jakus Péter OTPip - Budapest IX. kerület Üllői út 21 - OTP Ingatlanpont Iroda Az iroda összes hirdetése
+36 30 426 7
Vedd fel a kapcsolatot a hirdetővel
Dr. Jakus Péter OTPip - Budapest IX. kerület Üllői út 21 - OTP Ingatlanpont Iroda Az iroda összes hirdetése
+36 30 426 7
UI_KIT.CHARACTER_COUNTER__COMPONENT.ACTUAL_CHARACTER__SR_ONLY UI_KIT.CHARACTER_COUNTER__COMPONENT.MAXIMUM_CHARACTER__SR_ONLY
Hasonló eladó ingatlanok Kispest városrészben
Frissítve: 3 napja
19
93,5 M Ft 963 918 Ft/m²
Eladó lakás, Budapest XIX. kerület, Kispest

Frissítve: ma
20
90 M Ft 1 232 877 Ft/m²
Eladó lakás, Budapest XIX. kerület, Kispest

Frissítve: ma
20
90 M Ft 1 232 877 Ft/m²
Eladó lakás, Budapest XIX. kerület, Kispest


Fedezd fel a
hasonló lakásokat!Még további lakások Budapest XIX. kerület, Kispest városrészben 86,9 M Ft körüli értékben
Tovább a hirdetésekhez Frissítve: 3 napja
20
90 M Ft 1 232 877 Ft/m²
Eladó lakás, Budapest XIX. kerület, Kispest

Frissítve: 3 napja
13
79,9 M Ft 878 022 Ft/m²
Eladó lakás, Budapest XIX. kerület, Kispest

Frissítve: ma
20
79,9 M Ft 1 065 333 Ft/m²
Eladó lakás, Budapest XIX. kerület, Kispest


