+6 fotó
Hirdetéskód: 8915412
Feltöltve: 2 napja
Budapest XIX. kerület eladó téglalakás 3 szobás: 89,9 millió Ft
89,9 millió Ft
1 498 333 Ft/m²
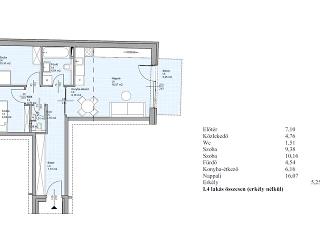
60 m²
3 szoba
1. emelet
Új építésű, nappali plusz 2 szobás, erkélyes lakás garázzsal eladó!
XIX. Kispesten, a Városház Tér vonzáskörzetében épülő projektben kínáljuk eladásra ezt az első emeleti, 59,68 m2-es, nappali plusz két hálószobás, hőszivattyúval és padlófűtéssel felszerelt, új építésű lakást, 2026 áprilisi költözéssel! A társasházban összesen 20 lakás került kialakításra. Minden lakáshoz tartozik saját teremgarázs is, melynek ára: 7,000,000,- forint.
Műszaki leírás a lakások belső kialakításáról.
Festés:
Diszperziós fehér festés
Nyílászárók:
Lakás bejárati ajtó:
1db műanyag biztonsági bejárati ajtó.
Belső nyílászárók:
Ajtók kilincsekkel MDF borítású dekorfóliás vagy erősített CPI fóliával ellátva
(kalkulált ár: 45.000 Ft)
Külső nyílászárók:
Német, műanyag profilú hőszigetelt ablakok, külső felület fehér színben, színazonos külső
párkánnyal, valamint erkélyajtók bukó-nyíló pánttal szerelve, illeszkedő
külső párkánnyal készre szerelve.
Az építési engedélyben szereplő méretekkel.
Általános meghatározás
Víz és fűtésszerelés:
padlófűtés kiépítése
nyomóvezeték: KPE, többrétegű műanyag csőből
lefolyó vezeték: PVC csőből
fűtéscsövezés: műanyag csővel + rézcsővel
vízcsövezés: műanyag csővel + rézcsővel
fűtés: Hőszivattyú-lakásonkénti hőmennyiségmérővel
meleg víz: Hőszivattyú - lakásonkénti vízórával
fürdőszobában: fürdőszobánként 1db elektromos törülközőszárítós radiátor
fürdőkád: 1db akril kád fehér színben, (kalk.ár: 55.000 Ft)
mosdó: 1db Alföldi vagy azzal megegyező (kalk.ár 25.000 Ft)
WC: 1-2 db beépített Geberit vagy azzal megegyező wc
kádtöltő csaptelep: egykaros krómozott kivitelben (kalk.ár: 19.500 Ft)
mosdó csaptelep: egykaros krómozott kivitelben (kalk.ár 19.500 Ft)
1 db mosógép kiállás a fürdőszobában vagy a konyhában elhelyezve
A lakásokban egyedi közműórák kerülnek elhelyezésre:
(hideg-meg víz 1-1 órával, elektromos áram villanyóra, fűtés hőmennyiségmérő) lakásonként önállóan
mérhetők
Elektromos szerelés:
elektromos teljesítmény: 1x 32A / lakás
elektromos hálózat kiépítése műanyag védőcsőben, vezetékekkel szerelve
A konyhában 1 db elektromos tűzhely kiállás 100x100-as kötődobozban
Prodax,Legrand vagy ezzel megegyező típusú elektromos szerelvények:
Konnektorok: Konyha: 4 db, Nappali: 4 db, szobánkként 2 db, közlekedőnkként 1 db,
fürdőszobánkként 2 db vízmentes.
Minden lámpatesthez 1 db kapcsoló
TV csatlakozás minden szobában és a nappaliban kiépítésre kerül
Épületszerkezet kialakítása:
Statikai Tervek szerint kerülnek kialakításra
Födémek: vasbeton
Teherhordó falazat: kitöltő falazású LEIER vagy Porotherm 30 N + vázkitöltéssel
Lakásokat elválasztó hangszigetelő falazat: Silka hang gátlóval
Válaszfalak: 10 cm vastagságú LEIER N+F téglából falazva
Külső homlokzat kialakítása:
Dryvit rendszer: 10 cm Nikecell, Dryvit háló ragasztása + fedőszínezés, kiviteli terv szerint
Terasz:
Az építési engedélyben feltüntetett méretű terasz kerül kialakításra.
Teraszok lekerítése korláttal került kivitelezésre
Lift:
Az épületben kiépítésre kerül.
Tereprendezés:
Tereprendezett terület kialakítása
Garázst minden lakáshoz megvásárolni kötelező!
Ügyvédi munkadíj: 0,9 % tartalmazza az előszerződés, végleges szerződés, társasházi alapító okirat díját. Az elírás és tévedés jogát fenntartjuk!
Tulajdonságok
Téglalakás
4
Új építésű
Hőszivattyú
2026
5,2 m²
Nem adta meg a hirdető
Nincs
15 000 Ft/hó
Vedd fel a kapcsolatot a hirdetővel
Nefelejcs Ingatlaniroda Az iroda összes hirdetése
+36 70 638 8
Hitelkalkulátor
Második évtől
386 889 Ft A 13. hónaptól
7,99% 8,49%
Végig fix Futamidő: 20 év Banki visszahívás
Az OTP Bank munkatársai a neked megfelelő napszakban veszik fel veled a kapcsolatot.Hitelfelvétel esetén akár egy héttel rövidebb lehet az ügyintézés.
Ez az ingatlan a nálunk meglévő adatok alapján azonnali értékbecslésre alkalmas lehet.
A becslés a hirdető által megadott adatokon alapul. A jelen tájékoztatás nem minősül ajánlattételnek és nem teljes körű, az egyes feltételek a hitelbírálat eredményétől függően változhatnak. Kérjük, a részletekről tájékozódj az OTP Bank fiókjaiban vagy az OTP Bank honlapján közzétett vonatkozó Üzletszabályzatokból és Hirdetményekből.
Vedd fel a kapcsolatot a hirdetővel
Nefelejcs Ingatlaniroda Az iroda összes hirdetése
+36 70 638 8
Vedd fel a kapcsolatot a hirdetővel
Nefelejcs Ingatlaniroda Az iroda összes hirdetése
+36 70 638 8
UI_KIT.CHARACTER_COUNTER__COMPONENT.ACTUAL_CHARACTER__SR_ONLY UI_KIT.CHARACTER_COUNTER__COMPONENT.MAXIMUM_CHARACTER__SR_ONLY
Hasonló eladó ingatlanok Kispest városrészben
Frissítve: 16 napja
19
93,5 M Ft 963 918 Ft/m²
Eladó lakás, Budapest XIX. kerület, Kispest

Frissítve: ma
20
90 M Ft 1 232 877 Ft/m²
Eladó lakás, Budapest XIX. kerület, Kispest

Frissítve: ma
20
90 M Ft 1 232 877 Ft/m²
Eladó lakás, Budapest XIX. kerület, Kispest


Fedezd fel a
hasonló lakásokat!Még további lakások Budapest XIX. kerület, Kispest városrészben 89,9 M Ft körüli értékben
Tovább a hirdetésekhez Frissítve: 16 napja
20
90 M Ft 1 232 877 Ft/m²
Eladó lakás, Budapest XIX. kerület, Kispest

Frissítve: 16 napja
13
85 M Ft 1 370 968 Ft/m²
Eladó lakás, Budapest XIX. kerület, Kispest

Frissítve: ma
13
85 M Ft 1 491 228 Ft/m²
Eladó lakás, Budapest XIX. kerület, Kispest

