+9 fotó
Hirdetéskód: 8930626
Referenciaszám: PR021988/LK/27295-5175044
Frissítve: ma
Budapest XIX. kerület eladó téglalakás 2 szobás: 76,9 millió Ft
76,9 millió Ft
1,45 millió Ft/m²
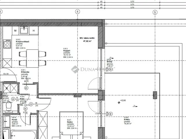
53 m²
2 szoba
4. emelet
Eladó lakás, Budapest 19. ker.
Budapest 19. kerületében, a KÖKI Terminál szomszédságában új építésű társasházi lakások hőszivattyús fűtéssel, magas műszaki tartalommal, kivételes lokációval!Befektetésnek is kitűnő lehetőség!!Műszaki adatok:- főfal: 30-as főfalak- válaszfal: Porotherm 10 N+F válaszfallap- energiatakarékos hőszivattyús rendszer padlófűtéssel (lakáson belül helyiségenként egyedi mérővel)- a melegvizet hőszivattyú állítja elő a tárolásról pedig HMV gondoskodik- 20 cm Rockwool kőzetgyapot homlokzati szigetelés- hűtés magas oldalfali fan-coilokkal (hőszivattyú) felár ellenében- 3 üvegrétegű, 6 kamrás hőszigetelt, műanyag nyílászárók- szaniterek, meleg- és hidegburkolatok, valamint beltéri ajtók még választhatók- gépkocsibeálló igény szerint vásárolható - 4 M Ft / db- Lift (13 személyes, 1000 kg teherbírású személyfelvonó)Már 10%- al foglalható, építési ütemnek megfelelő fizetési ütemezéssel!Az építtető cég, így minden állami támogatás igénybe vehető!Várható átadás: 2026. IV. negyedévTeljes műszaki leírás, dokumentáció megtekinthető irodánkban!
76900000 Ft
Érd:Szőke Zoltán +36-30-507-3286
Referencia szám: PR021988/LK/27295-ZE
Tulajdonságok
Téglalakás
Új építésű
Házközponti fűtés egyedi méréssel
2026
A+
Vedd fel a kapcsolatot a hirdetővel

+36 1 690 02
Hitelkalkulátor
Második évtől
330 943 Ft A 13. hónaptól
7,99% 8,49%
Végig fix Futamidő: 20 év Banki visszahívás
Az OTP Bank munkatársai a neked megfelelő napszakban veszik fel veled a kapcsolatot.Hitelfelvétel esetén akár egy héttel rövidebb lehet az ügyintézés.
Ez az ingatlan a nálunk meglévő adatok alapján azonnali értékbecslésre alkalmas lehet.
A becslés a hirdető által megadott adatokon alapul. A jelen tájékoztatás nem minősül ajánlattételnek és nem teljes körű, az egyes feltételek a hitelbírálat eredményétől függően változhatnak. Kérjük, a részletekről tájékozódj az OTP Bank fiókjaiban vagy az OTP Bank honlapján közzétett vonatkozó Üzletszabályzatokból és Hirdetményekből.
Vedd fel a kapcsolatot a hirdetővel

+36 1 690 02
Vedd fel a kapcsolatot a hirdetővel

+36 1 690 02
UI_KIT.CHARACTER_COUNTER__COMPONENT.ACTUAL_CHARACTER__SR_ONLY UI_KIT.CHARACTER_COUNTER__COMPONENT.MAXIMUM_CHARACTER__SR_ONLY
Hasonló eladó ingatlanok Kispest városrészben
Frissítve: 24 napja
14
73,4 millió Ft 1,38 millió Ft/m²
Eladó lakás, Budapest XIX. kerület, Kispest

Frissítve: ma
14
73,4 millió Ft 1,38 millió Ft/m²
Eladó lakás, Budapest XIX. kerület, Kispest

Frissítve: 3 napja
10
74,9 millió Ft 823,1 ezer Ft/m²
Eladó lakás, Budapest XIX. kerület, Kispest


Fedezd fel a
hasonló lakásokat!Még további lakások Budapest XIX. kerület, Kispest városrészben 76,9 M Ft körüli értékben
Tovább a hirdetésekhez Frissítve: 24 napja
14
73,4 millió Ft 1,38 millió Ft/m²
Eladó lakás, Budapest XIX. kerület, Kispest

Frissítve: 21 napja
13
73,4 millió Ft 1,38 millió Ft/m²
Eladó lakás, Budapest XIX. kerület, Kispest

Frissítve: 24 napja
14
73,4 millió Ft 1,38 millió Ft/m²
Eladó lakás, Budapest XIX. kerület, Kispest

