+4 fotó
Zenga
Premier
Hirdetéskód: 8798141
Referenciaszám: U0049007
Feltöltve: ma
Budapest XV. kerület eladó téglalakás 4 szobás: 135,2 millió Ft
135,2 millió Ft
1 300 000 Ft/m²
104 m²
4 szoba
földszint

Friss hirdetések, amiket nem találsz meg más ingatlankereső portálon.
Fedezd fel elsőként a Zenga Premier címkés eladó ingatlanokat! További részletek A Duna House, OTP Ingatlanpont, Otthon Centrum és további hálózatok új, kizárólagos hirdetéseinek nagy részét a zenga.hu és koltozzbe.hu ingatlankeresőn láthatod legelőször, és a feltöltéstől két hétig nem érhetők el más ingatlankeresőn!
Fedezze fel új otthonát Pestújhely szívében – tágas, modern 4 szobás lakás várja!
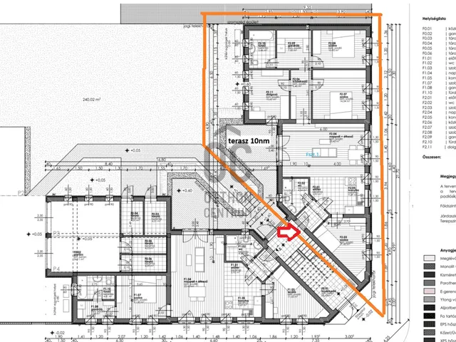
104 m²-es Prémium Kertkapcsolatos Lakás Pestújhelyen – Modern Gépészet + Extra Csend + Terasz
A modern életstílus kedvelőinek tökéletes választás ez a 104,27 m²-es, új építésű, prémium kivitelezésű lakás Budapest 15. kerületének egyik legértékesebb részén, Pestújhely csendes, kertvárosias utcájában.
Az ingatlan kiváló választás középkorú családok számára, akik egy tágas, világos, kényelmes és magas műszaki tartalommal rendelkező otthont keresnek.
Prémium műszaki tartalom – kompromisszummentes kényelem
Modern gépészet – egész éves komfort
Hőszivattyús padló- és mennyezetfűtés
Mennyezethűtés + fan-coil rendszer
Ariston okos melegvíz-rendszer
AA–B energetikai besorolás → alacsony rezsi, környezettudatos működés
Magas minőségű építőanyagok
3 rétegű VEKA nyílászárók – kiváló hő- és hangszigetelés
12 cm Dryvit homlokzati szigetelés + 25 cm tetőtéri szigetelés
Silka hanggátló falak → páratlan csend és nyugalom
Elegáns, modern burkolatok és beltéri ajtók
Letisztult, modern építészeti megjelenés
A lakás kiváló alaprajzzal rendelkezik:
Tágas, világos nappali
Amerikai konyhás étkező – a családi élet központja
4 teljes értékű szoba – gyerekeknek, dolgozónak vagy vendégszobának
10 m²-es privát terasz , amely kiváló helyszín egy reggeli kávéhoz, pihenéshez vagy akár baráti grillpartihoz.
Közvetlen kertkapcsolat – nyugalom, természet, friss levegő
Akadálymentes kialakítás
A lakás Budapest egyik legjobb kertvárosi részén található :
Kiváló környék – kertvárosi nyugalom a város közelségében
Éttermek, boltok, szolgáltatások pár perc sétára
Kiváló tömegközlekedés → gyors belvárosi elérés
Biztonságos, csendes, rendezett utca
A lakáshoz tartozik egy garázs vagy felszíni autóbeálló (8 M Ft / 4 M Ft)
és egy 4 m²-es, 2,5 M Ft-os külön tároló, melyek a vásárlás kötelező elemei.
Az ingatlan hitellel is megvásárolható, rugalmas fizetési ütemezéssel.
Az átadás várható időpontja: 2026 utolsó negyedéve.
Zugló közelsége tovább növeli a lokáció értékét
Tehermentes, értékálló ingatlan – stabil befektetés
Pestújhely folyamatosan fejlődő környék, a prémium műszaki tartalom pedig hosszú távon is értéket ad.
Ez a lakás nemcsak ideális otthon, hanem biztos befektetés is.
Ha szeretnéd személyesen is megnézni, vagy kérdésed van a lakásról, finanszírozásról vagy vásárlási folyamatról, örömmel segítek.
A folyamat lehet izgalmas és egyszerű — gondoskodom róla, hogy minden információt megkapj a legjobb döntéshez.
Tulajdonságok
Téglalakás
Új építésű
Hőszivattyú
2026
10 m²
Nem adta meg a hirdető
Vedd fel a kapcsolatot a hirdetővel
+36 70 465 6
Hitelkalkulátor
Második évtől
581 839 Ft A 13. hónaptól
7,99% 8,49%
Végig fix Futamidő: 20 év Banki visszahívás
Az OTP Bank munkatársai a neked megfelelő napszakban veszik fel veled a kapcsolatot.Hitelfelvétel esetén akár egy héttel rövidebb lehet az ügyintézés.
Ez az ingatlan a nálunk meglévő adatok alapján azonnali értékbecslésre alkalmas lehet.
A becslés a hirdető által megadott adatokon alapul. A jelen tájékoztatás nem minősül ajánlattételnek és nem teljes körű, az egyes feltételek a hitelbírálat eredményétől függően változhatnak. Kérjük, a részletekről tájékozódj az OTP Bank fiókjaiban vagy az OTP Bank honlapján közzétett vonatkozó Üzletszabályzatokból és Hirdetményekből.
Vedd fel a kapcsolatot a hirdetővel
+36 70 465 6
Vedd fel a kapcsolatot a hirdetővel
+36 70 465 6
UI_KIT.CHARACTER_COUNTER__COMPONENT.REMAINING_SPACE__SR_ONLYUI_KIT.CHARACTER_COUNTER__COMPONENT.MAXIMUM_CHARACTER__SR_ONLY
Hasonló eladó ingatlanok Pestújhely városrészben
Frissítve: 23 napja
8
129,81 M Ft 1 410 924 Ft/m²
Eladó lakás, Budapest XV. kerület

Frissítve: 23 napja
8
131,52 M Ft 1 777 258 Ft/m²
Eladó lakás, Budapest XV. kerület

Frissítve: 23 napja
8
129,73 M Ft 1 410 147 Ft/m²
Eladó lakás, Budapest XV. kerület


Fedezd fel a
hasonló lakásokat!Még további lakások Budapesten 135,2 M Ft körüli értékben
Tovább a hirdetésekhez Frissítve: 18 napja
20
145 M Ft 1 450 000 Ft/m²
Eladó lakás, Budapest XV. kerület

Frissítve: 11 napja
20
145 M Ft 1 450 000 Ft/m²
Eladó lakás, Budapest XV. kerület

Frissítve: 26 napja
20
130 M Ft 1 238 095 Ft/m²
Eladó lakás, Budapest XV. kerület

Töltsd fel hirdetésed ingyenesen!
Egyszerű
