

+2 fotó
Hirdetéskód: 8730189
Referenciaszám: 360051015-906
Feltöltve: 4 napja
Budapest XVII. kerület eladó téglalakás 4 szobás: 79,9 millió Ft
79,9 millió Ft
940 000 Ft/m²
85 m²
4 szoba
1. emelet
ELADÓ LAKÁS 17.KERÜLET 4 SZOBA 85 NM
ELADÓ LAKÁS, kertkapcsolat, Budapest XVII, fedett beálló, NAPELEM
KIZÁRÓLAG KÉSZPÉNZES VEVŐKNEK– Eladó Újépítésű 1. emeleti kertkapcsolatos napelemes Lakás Budapest XVII.ker, csendes, családi házas részén RENGETEG extrával – kizárólag a CSALÁDI INGATLAN KÍNÁLATÁBAN.
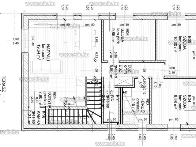
Újépítésű kulcsrakész 1. emeleti LAKÁS eladó Budapest XVII.ker kertvárosias részén 75 m2 lakóterülettel és 130 m2 kizárólagos használatú kert területtel, Nappali-Konyha-Étkezővel, + 3 hálószobával, fürdőszobával,nagy terasszal és fedett autóbeállóval. A kiépített napelemrendszernek köszönhetően nagyon alacsony energiafelhasználást lehet elérni. A kertkapcsolatos 1. emeleti lakás nagyon jó közlekedés mellett, családi házas övezetben található! A belső burkolatokat, szanitereket, belső ajtókat még Ön választhatja ki! Az építkezés elkezdődött, a földszinti lakás már értékesítésre került!
Az eladó újépítésű 1. emeleti kertkapcsolatos lakás Bp XVII.ker. főbb jellemzői:
• nappali-konyha-étkező + 3 hálószoba; fürdőszoba és előszoba, külön WC + 22 m2 es burkolt terasz
• 30 cm -es téglafalazat + 15 cm külső hőszigetelés
• 5 kWp napelemrendszer kiépítése
• padlófűtés, aljzatbetonba integrált BVF elektromos fűtéssel
• intelligens EVO ECO 100-as Ariston energiatakarékos bojler a használati melegvízhez
• a nappaliban 3,5 kW-os hűtő- fűtő klímaberendezés, a többi szobában 2,5 kW-os hűtő- fűtő klímaberendezés,
• új villany, IT és gépészeti csőrendszer
• 7 kamrás 3 rétegű hang és hőszigetelő műanyag nyílászárók
• redőny előkészítés
• nagyon alacsony rezsi
• önálló sajáthasználatú elkerített kert rész
• fedett kocsibeálló
• riasztó előkészítés
• választható burkolatok és szaniterek és belső ajtók
A Bp. XVII. ker. 1. emeleti eladó lakás magas műszaki tartalommal épül, az ár kulcsrakész ár, tartalmazza a választható burkolatokat és szanitereket, a konyhabútor nem része az árnak. A kivitelező számos referenciával rendelkezik a kerületben is.
Ajánlom ezt az ingatlant azoknak, akik csendes, kellemes környezetben szeretnének, új energia takarékos kényelmes otthonban élni. Közlekedése autóval és gyalogosan is kiváló, M0, busz és vonatmegálló is a közelben. Átadás: 2026 május
Tulajdonságok
Téglalakás
Új építésű
Fan coil
Nem adta meg a hirdető
Vedd fel a kapcsolatot a hirdetővel
+36 20 272 9
Hitelkalkulátor
Második évtől
343 853 Ft A 13. hónaptól
7,99% 8,49%
Végig fix Futamidő: 20 év Banki visszahívás
Az OTP Bank munkatársai a neked megfelelő napszakban veszik fel veled a kapcsolatot.Hitelfelvétel esetén akár egy héttel rövidebb lehet az ügyintézés.
Ez az ingatlan a nálunk meglévő adatok alapján azonnali értékbecslésre alkalmas lehet.
A becslés a hirdető által megadott adatokon alapul. A jelen tájékoztatás nem minősül ajánlattételnek és nem teljes körű, az egyes feltételek a hitelbírálat eredményétől függően változhatnak. Kérjük, a részletekről tájékozódj az OTP Bank fiókjaiban vagy az OTP Bank honlapján közzétett vonatkozó Üzletszabályzatokból és Hirdetményekből.
Vedd fel a kapcsolatot a hirdetővel
+36 20 272 9
Vedd fel a kapcsolatot a hirdetővel
+36 20 272 9
UI_KIT.CHARACTER_COUNTER__COMPONENT.REMAINING_SPACE__SR_ONLYUI_KIT.CHARACTER_COUNTER__COMPONENT.MAXIMUM_CHARACTER__SR_ONLY
Hasonló eladó ingatlanok Rákoscsaba-Újtelep városrészben
Feltöltve: 1 napja

15
84,9 M Ft 1 117 105 Ft/m²
Eladó lakás, Budapest XVII. kerület

Frissítve: 1 napja

14
80 M Ft 747 664 Ft/m²
Eladó lakás, Budapest XVII. kerület

Feltöltve: 13 napja

14
80 M Ft 747 664 Ft/m²
Eladó lakás, Budapest XVII. kerület

Fedezd fel a
hasonló lakásokat!Még további lakások Budapest XVII. kerületben 79,9 M Ft körüli értékben
Tovább a hirdetésekhez Frissítve: ma

15
84,9 M Ft 1 117 105 Ft/m²
Eladó lakás, Budapest XVII. kerület

Feltöltve: 1 napja

15
84,9 M Ft 1 117 105 Ft/m²
Eladó lakás, Budapest XVII. kerület

Frissítve: ma

14
80 M Ft 747 664 Ft/m²
Eladó lakás, Budapest XVII. kerület


Töltsd fel hirdetésed ingyenesen!
Egyszerű