+14 fotó
Hirdetéskód: 8983043
Referenciaszám: M326350
Feltöltve: 3 napja
Budapest XVIII. kerület eladó téglalakás 2+2 fél szobás: 99,8 millió Ft
99,8 millió Ft
1,1 millió Ft/m² *
* A m² árat a hirdető adta meg.
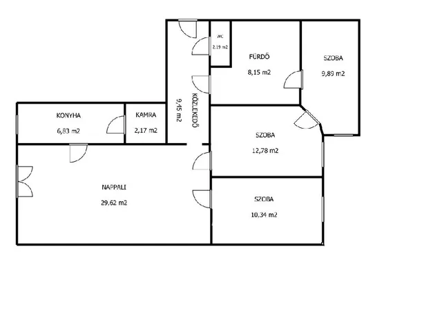
91 m²
2+2 fél szoba
2. emelet
Leírás
ELADÓ TELJESKÖRŰEN FELÚJÍTOTT, 4 SZOBÁS LAKÁS PESTSZENTIMRÉN ? ALACSKA LAKÓTELEP
?? Az ingatlan 3%-os Otthon Start Hitelprogramra alkalmas!
Megvételre kínálunk Pestszentimre közkedvelt részén, az Alacska lakótelepen, a Halmi-erdő közvetlen közelében egy 91 m?-es, teljeskörűen felújított, 2. emeleti lakást, amely ideális választás családok, fiatal párok, valamint befektetők számára is.
Az ingatlan kiváló elosztásának köszönhetően (külön nyíló szobák) kifejezetten alkalmas bérbeadásra, így hosszú távon is stabil hozamot biztosíthat.
Főbb jellemzők:
-91 m? alapterület
-Nappali + 3 külön nyíló hálószoba
-Teljeskörűen felújított, azonnal költözhető
-Modern, beépített konyhabútor
-Fürdőszoba + külön WC
-Világos, jól szellőztethető lakás
-Riasztó és klíma előkészítés
-Kedvező rezsiköltség
Épület és környezet:
- Kíváló állapotú, jól karbantartott társasház
- Ingyenes parkolás közvetlenül a ház előtt
- Csendes, biztonságos, családbarát környék
- Közvetlen közelben a Halmi-erdő, ideális kikapcsolódásra, futásra és hatalmas sétákra a családdal,kiskedvenccel
Elhelyezkedés:
Iskolák, óvodák, bevásárlási lehetőség, orvosi ellátás pár percen belül
Kiváló tömegközlekedés:
Több buszjárat 166, 182, 254E, 255E, 266 és 282E illetve 950-es éjszakai buszok 1 perc séta távolságra
Egyéb információk:
Per- és tehermentes
Otthonteremtési támogatás és hitel igényelhető
Befektetésnek is kiváló választás (könnyen kiadható)
Ez az ingatlan ritka lehetőség a környéken: felújított állapot, ideális elosztás és zöld, nyugodt környezet egyben.
?? További információért vagy megtekintésért keressen bizalommal!
Hivatkozás: M326350
Tulajdonságok
Téglalakás
Újszerű
Házközponti fűtés egyedi méréssel
1994
Nem adta meg a hirdető
Vedd fel a kapcsolatot a hirdetővel

Réti Mónika
Budapest III. kerület Lajos utca 74-76 - OTP Ingatlanpont Iroda
Az iroda összes hirdetése +36 20 317 5
Hitelkalkulátor
Második évtől
429 494 Ft A 13. hónaptól
7,99%
Végig fix Futamidő: 20 év Banki visszahívás
Az OTP Bank munkatársai a neked megfelelő napszakban veszik fel veled a kapcsolatot.Hitelfelvétel esetén akár egy héttel rövidebb lehet az ügyintézés.
Ez az ingatlan a nálunk meglévő adatok alapján azonnali értékbecslésre alkalmas lehet.
A becslés a hirdető által megadott adatokon alapul. A jelen tájékoztatás nem minősül ajánlattételnek és nem teljes körű, az egyes feltételek a hitelbírálat eredményétől függően változhatnak. Kérjük, a részletekről tájékozódj az OTP Bank fiókjaiban vagy az OTP Bank honlapján közzétett vonatkozó Üzletszabályzatokból és Hirdetményekből.
Vedd fel a kapcsolatot a hirdetővel

Réti Mónika
Budapest III. kerület Lajos utca 74-76 - OTP Ingatlanpont Iroda
Az iroda összes hirdetése +36 20 317 5
Vedd fel a kapcsolatot a hirdetővel

Réti Mónika
Budapest III. kerület Lajos utca 74-76 - OTP Ingatlanpont Iroda
Az iroda összes hirdetése +36 20 317 5
UI_KIT.CHARACTER_COUNTER__COMPONENT.ACTUAL_CHARACTER__SR_ONLY UI_KIT.CHARACTER_COUNTER__COMPONENT.MAXIMUM_CHARACTER__SR_ONLY
Hasonló eladó ingatlanok Budapest XVIII. kerületben
Frissítve: 19 napja
16
98 millió Ft 1,36 millió Ft/m²
Eladó lakás, Budapest XVIII. kerület

Frissítve: 19 napja
16
98 millió Ft 1,36 millió Ft/m²
Eladó lakás, Budapest XVIII. kerület

Frissítve: 7 napja
16
98 millió Ft 1,36 millió Ft/m²
Eladó lakás, Budapest XVIII. kerület, Darányi Ignác utca


Fedezd fel a
hasonló lakásokat!Még további lakások Budapest XVIII. kerületben 99,8 M Ft körüli értékben
Tovább a hirdetésekhez Frissítve: 19 napja
16
98 millió Ft 1,36 millió Ft/m²
Eladó lakás, Budapest XVIII. kerület

Frissítve: 19 napja
16
98 millió Ft 1,36 millió Ft/m²
Eladó lakás, Budapest XVIII. kerület

Frissítve: 19 napja
16
98 millió Ft 1,36 millió Ft/m²
Eladó lakás, Budapest XVIII. kerület

