+9 fotó
Hirdetéskód: 8797004
Referenciaszám: 389934
Feltöltve: ma
Budapest XXI. kerület eladó téglalakás 1 szobás: 39 millió Ft
39 millió Ft
975 000 Ft/m²
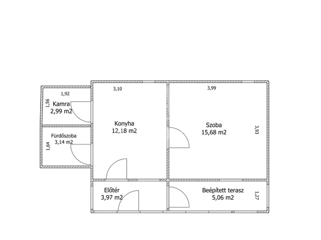
40 m²
1 szoba
földszint
Eladó téglalakás Budapest, XXI. kerület, 40nm, 39.000.000Ft - Ív utca
Csepel kertvárosában, a kedvelt Szabótelepen kínálunk megvételre egy udvarról nyíló, felújításra váró lakást – kifejezetten azoknak, akik értik a lehetőséget a romos falak mögött.
A 4 lakásos ház nyugodt, barátságos környezetet ad, mégis pár perc sétára van minden, ami számít: gyors közlekedés, bevásárlás, szolgáltatások. A lokáció már most erős – a lakás pedig csak arra vár, hogy valaki üzleti szemmel új életet adjon neki.
Amit kínál:
Udvarról közvetlenül nyíló, jól alakítható alaprajz
Erősen felújítandó állapot – pont az a terep, ahol a kreatív beruházók megtalálják a nyereséget
Saját kerti tároló, ami műhelynek, raktárnak, szerszámozónak is ideális
Csendes, kertvárosi miliő, mégis minden a közelben
Kinek ideális?
Felújítással foglalkozó vállalkozóknak
Befektetőknek, akik alacsony bekerüléssel emelnék a piaci értéket
Olyanoknak, akik egy kis munka árán kiváló lokációban teremtenének eladható vagy kiadható ingatlant
Ha meglátod a lehetőséget ott, ahol más csak a felújítást látja, akkor ez a lakás pont neked való projekt. ...TOVÁBBI, TÖBBEZRES INGATLAN KÍNÁLAT: www.gdn-ingatlan.hu - GDN azonosító: 389934
Tulajdonságok
Téglalakás
Felújítandó
Gáz (konvektor)
1960
Nem adta meg a hirdető
Vedd fel a kapcsolatot a hirdetővel
+36 20 525 4
Hitelkalkulátor
Második évtől
167 838 Ft A 13. hónaptól
7,99%
Végig fix Futamidő: 20 év Banki visszahívás
Az OTP Bank munkatársai a neked megfelelő napszakban veszik fel veled a kapcsolatot.Hitelfelvétel esetén akár egy héttel rövidebb lehet az ügyintézés.
Ez az ingatlan a nálunk meglévő adatok alapján azonnali értékbecslésre alkalmas lehet.
A becslés a hirdető által megadott adatokon alapul. A jelen tájékoztatás nem minősül ajánlattételnek és nem teljes körű, az egyes feltételek a hitelbírálat eredményétől függően változhatnak. Kérjük, a részletekről tájékozódj az OTP Bank fiókjaiban vagy az OTP Bank honlapján közzétett vonatkozó Üzletszabályzatokból és Hirdetményekből.
Vedd fel a kapcsolatot a hirdetővel
+36 20 525 4
Vedd fel a kapcsolatot a hirdetővel
+36 20 525 4
UI_KIT.CHARACTER_COUNTER__COMPONENT.REMAINING_SPACE__SR_ONLYUI_KIT.CHARACTER_COUNTER__COMPONENT.MAXIMUM_CHARACTER__SR_ONLY
Hasonló eladó ingatlanok Szabótelep városrészben
Feltöltve: 1 éve
0
36 M Ft 734 694 Ft/m²
Eladó lakás, Budapest XXI. kerület
Frissítve: 1 éve
1
35,9 M Ft 897 500 Ft/m²
Eladó lakás, Budapest XXI. kerület, Csillagtelep
Frissítve: 28 napja
11
41 M Ft 953 488 Ft/m²
Eladó lakás, Budapest XXI. kerület


Fedezd fel a
hasonló lakásokat!Még további lakások Budapest XXI. kerületben 39 M Ft körüli értékben
Tovább a hirdetésekhez Frissítve: 19 napja
10
41 M Ft 953 488 Ft/m²
Eladó lakás, Budapest XXI. kerület

Frissítve: ma
11
41 M Ft 953 488 Ft/m²
Eladó lakás, Budapest XXI. kerület

Frissítve: 18 napja
11
41 M Ft 953 488 Ft/m²
Eladó lakás, Budapest XXI. kerület


Töltsd fel hirdetésed ingyenesen!
Egyszerű
