+15 fotó
Hirdetéskód: 8846281
Referenciaszám: M316610-5120981
Frissítve: 11 napja
Budapest XXI. kerület eladó téglalakás 2 szobás: 67,99 millió Ft
67,99 millió Ft
1 387 551 Ft/m²
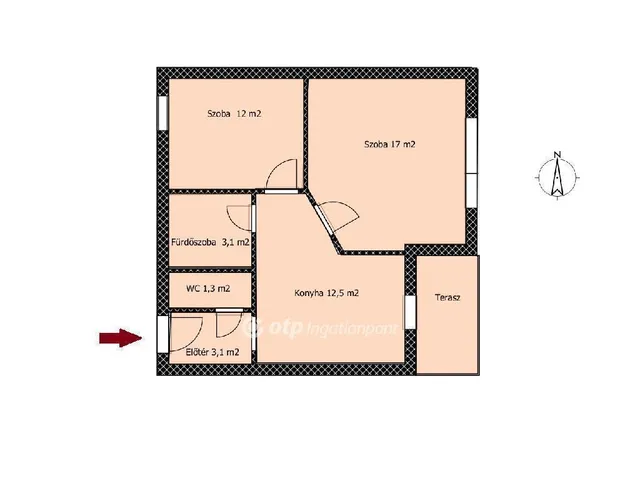
49 m²
2 szoba
földszint
Eladó Lakás, Budapest 21. ker.
Kertkapcsolatos, újszerű, 2 szobás lakás eladó Csepel belvárosában.
Eladó egy 49 m2-es, földszinti, kertkapcsolatos lakás egy 2004-ben épült, rendezett és biztonságos társasházban, Csepel szívében.
A lakás elosztása praktikus és otthonos: nappali + hálószoba, tágas étkezős konyha, külön fürdőszoba és WC. Egy hangulatos kis terasz, amely a zöld kertből közelíthető meg, ideális hely egy kávéra vagy pihenésre a nap végén.
A lakás alkalmas az Otthon Start Program nyújtotta Fix 3%-os lakáshitelre.
Műszaki jellemzők:
Építés éve: 2004. Állapot: újszerű, gondozott lakás. Fűtés: kondenzációs gázkazán. Nyílászárók: 2 rétegű műanyag ablakok alumínium redőnnyel, légkondicionálóval felszerelt. Biztonsági záras bejárati ajtó és kaputelefon.
Az épületről:
A társasház jó műszaki állapotú, rendezett és pénzügyileg stabil, megtakarítással rendelkezik.
A közösségi terek kamerával megfigyeltek és mozgásérzékelős világítással ellátottak.
A lakáshoz garázshely nem tartozik, de az épületben vásárolható vagy bérelhető parkolóhely.
A környéken a parkolás díjmentes.
A környékről:
A lakás Csepel belvárosában található, kényelmes, mindenhez közeli elhelyezkedéssel.
Mindössze 5 perc sétával elérhető:
Buszvégállomás, Csepeli Piac, orvosi rendelő, bevásárlási lehetőségek, éttermek, kávézók, gyógyszertár.
A környék biztonságos, rendezett és folyamatosan fejlődő, kiváló infrastruktúrával és közlekedéssel.
Ideális választás fiatal pároknak, idősebbeknek vagy befektetőknek egyaránt.
Miért érdemes megnézni?
Ritka kertkapcsolatos lakás Csepel központjában. Korszerű fűtés, klíma miatt garantáltan alacsony a lakás rezsiköltsége. Biztonságos és karbantartott társasház, megtakarítással. Minden elérhető pár perc sétán belül.
Válasszon kínálatunkból, és számíthat az OTP Ingatlanpont szakmai támogatására a teljes vételi folyamat során az adásvételi szerződéstől a hitelügyintézésen keresztül egészen a birtokbaadásig.
Hívjon a részletekért akár hétvégén is!
Tulajdonságok
Téglalakás
Felújított
Gázkazán
2004
Nem adta meg a hirdető
Vedd fel a kapcsolatot a hirdetővel
Hackenberger Rita OTPip - Szigetszentmiklós Tököli út 19.B - OTP Ingatlanpont Iroda Az iroda összes hirdetése
+36 70 423 8
Hitelkalkulátor
Második évtől
292 598 Ft A 13. hónaptól
7,99%
Végig fix Futamidő: 20 év Banki visszahívás
Az OTP Bank munkatársai a neked megfelelő napszakban veszik fel veled a kapcsolatot.Hitelfelvétel esetén akár egy héttel rövidebb lehet az ügyintézés.
Ez az ingatlan a nálunk meglévő adatok alapján azonnali értékbecslésre alkalmas lehet.
A becslés a hirdető által megadott adatokon alapul. A jelen tájékoztatás nem minősül ajánlattételnek és nem teljes körű, az egyes feltételek a hitelbírálat eredményétől függően változhatnak. Kérjük, a részletekről tájékozódj az OTP Bank fiókjaiban vagy az OTP Bank honlapján közzétett vonatkozó Üzletszabályzatokból és Hirdetményekből.
Vedd fel a kapcsolatot a hirdetővel
Hackenberger Rita OTPip - Szigetszentmiklós Tököli út 19.B - OTP Ingatlanpont Iroda Az iroda összes hirdetése
+36 70 423 8
Vedd fel a kapcsolatot a hirdetővel
Hackenberger Rita OTPip - Szigetszentmiklós Tököli út 19.B - OTP Ingatlanpont Iroda Az iroda összes hirdetése
+36 70 423 8
UI_KIT.CHARACTER_COUNTER__COMPONENT.ACTUAL_CHARACTER__SR_ONLY UI_KIT.CHARACTER_COUNTER__COMPONENT.MAXIMUM_CHARACTER__SR_ONLY
Hasonló eladó ingatlanok Budapest XXI. kerületben
Frissítve: 13 napja
18
63 M Ft 1 086 190 Ft/m²
Eladó lakás, Budapest XXI. kerület

Frissítve: 13 napja
18
63 M Ft 1 086 190 Ft/m²
Eladó lakás, Budapest XXI. kerület

Frissítve: 11 napja
15
63 M Ft 1 086 190 Ft/m²
Eladó lakás, Budapest XXI. kerület


Fedezd fel a
hasonló lakásokat!Még további lakások Budapest XXI. kerületben 67,99 M Ft körüli értékben
Tovább a hirdetésekhez Frissítve: 11 napja
18
63 M Ft 1 086 190 Ft/m²
Eladó lakás, Budapest XXI. kerület

Frissítve: 5 napja
18
63 M Ft 1 086 190 Ft/m²
Eladó lakás, Budapest XXI. kerület

Frissítve: 11 napja
18
63 M Ft 1 086 190 Ft/m²
Eladó lakás, Budapest XXI. kerület

