+13 fotó
Hirdetéskód: 8986079
Referenciaszám: M321373-5211281
Feltöltve: 3 napja
Budapest XXI. kerület eladó téglalakás 2 szobás: 54,8 millió Ft
54,8 millió Ft
1,05 millió Ft/m²
52 m²
2 szoba
földszint
Eladó Lakás, Budapest 21. ker.
Csepel–Erdősoron földszinti lakás eladó – kiváló elosztással!
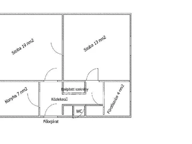
Budapest XXI. kerületében, Csepel–Erdősor városrészben eladó egy 52 m2-es, praktikus elrendezésű, földszinti lakás.
Az ingatlan két tágas szobával, külön konyhával, fürdőszobával, külön WC-vel, közlekedővel és loggiával rendelkezik – jól élhető, átgondolt kialakítással.
A nyílászárók cseréje 2019-ben megtörtént, így a lakás jó hő- és hangszigeteléssel bír.
Elhelyezkedés és közlekedés:
A lakás mindössze kb. 15 percre található a Szent Imre tértől, a belváros pedig körülbelül 40 perc alatt elérhető, így ideális választás azoknak, akik nyugodtabb környezetben élnének, de fontos számukra a jó kapcsolat a várossal.
Társasház és költségek:
A rendezett, karbantartott lépcsőház és a panelprogram keretében történt felújítás hozzájárul az alacsony fenntartási költségekhez.
Környezet:
A közelben minden megtalálható: orvosi rendelő, óvoda, iskola, üzletek. A Wittner Mária Park kellemes zöld környezetet biztosít a kikapcsolódáshoz.
Kinek ajánljuk?
Ideális első lakásnak, fiatal pároknak, kisebb családoknak, de idősebbek számára is kényelmes, jól megközelíthető otthon.
Az Otthon Start Hitel csak akkor vehető igénybe, ha a vásárló minimum 50% önrésszel rendelkezik.
Amennyiben felkeltettem érdeklődését, hívjon bizalommal a hét bármely napján!
Az OTP Bankcsoport teljeskörű ügyintézéssel áll az eladók és a vevők rendelkezésére! A kínálatunkból választott ingatlan finanszírozásához kedvezményes hitelkonstrukciókat kínálunk. Az adásvételi szerződés megkötéséhez igény szerint megbízható ügyvédi közreműködést biztosítunk és segítséget nyújtunk az adásvételhez kapcsolódó ügyek intézéséhez.
Referenciaszám: M321373
Tulajdonságok
Téglalakás
Átlagos
Gáz (konvektor)
1980
Nem adta meg a hirdető
Vedd fel a kapcsolatot a hirdetővel

Major Katalin Tünde
OTPip - Szigetszentmiklós Tököli út 19.B - OTP Ingatlanpont Iroda
Az iroda összes hirdetése +36 30 324 8
Hitelkalkulátor
Második évtől
235 834 Ft A 13. hónaptól
7,99%
Végig fix Futamidő: 20 év Banki visszahívás
Az OTP Bank munkatársai a neked megfelelő napszakban veszik fel veled a kapcsolatot.Hitelfelvétel esetén akár egy héttel rövidebb lehet az ügyintézés.
Ez az ingatlan a nálunk meglévő adatok alapján azonnali értékbecslésre alkalmas lehet.
A becslés a hirdető által megadott adatokon alapul. A jelen tájékoztatás nem minősül ajánlattételnek és nem teljes körű, az egyes feltételek a hitelbírálat eredményétől függően változhatnak. Kérjük, a részletekről tájékozódj az OTP Bank fiókjaiban vagy az OTP Bank honlapján közzétett vonatkozó Üzletszabályzatokból és Hirdetményekből.
Vedd fel a kapcsolatot a hirdetővel

Major Katalin Tünde
OTPip - Szigetszentmiklós Tököli út 19.B - OTP Ingatlanpont Iroda
Az iroda összes hirdetése +36 30 324 8
Vedd fel a kapcsolatot a hirdetővel

Major Katalin Tünde
OTPip - Szigetszentmiklós Tököli út 19.B - OTP Ingatlanpont Iroda
Az iroda összes hirdetése +36 30 324 8
UI_KIT.CHARACTER_COUNTER__COMPONENT.ACTUAL_CHARACTER__SR_ONLY UI_KIT.CHARACTER_COUNTER__COMPONENT.MAXIMUM_CHARACTER__SR_ONLY
Hasonló eladó ingatlanok Budapest XXI. kerületben
Frissítve: 8 napja
15
49,9 millió Ft 1,39 millió Ft/m²
Eladó lakás, Budapest XXI. kerület

Frissítve: 22 napja
15
49,9 millió Ft 1,39 millió Ft/m²
Eladó lakás, Budapest XXI. kerület

Frissítve: 5 napja
11
49,9 millió Ft 767,7 ezer Ft/m²
Eladó lakás, Budapest XXI. kerület


Fedezd fel a
hasonló lakásokat!Még további lakások Budapest XXI. kerületben 54,8 M Ft körüli értékben
Tovább a hirdetésekhez Frissítve: ma
15
49,9 millió Ft 1,39 millió Ft/m²
Eladó lakás, Budapest XXI. kerület

Feltöltve: 1 éve
1
59,9 millió Ft 1,09 millió Ft/m²
Eladó lakás, Budapest XXI. kerület
Feltöltve: 11 hónapja
1
57 millió Ft 1,08 millió Ft/m²
Eladó lakás, Budapest XXI. kerület, Szabadság u 57
