+5 fotó
Hirdetéskód: 8851952
Referenciaszám: 5087
Feltöltve: ma
Budapest XXII. kerület eladó téglalakás 4 szobás: 119 millió Ft
119 millió Ft
1 383 721 Ft/m²
86 m²
4 szoba
földszint
Kód: 5087TSZ Új építésű fszt-i lakás, N+3 szoba, 2 fürdő, terasz, gk. beálló
Hivatkozzon erre, kód: 5087TSZ
- ÚJ ÉPÍTÉSŰ LAKÁSOK
- KÖLTSÉGHATÉKONY, ÉRTÉKÁLLÓ BEFEKTETÉS
- NAPPALI + 2-3 SZOBA, FELSZÍNI PARKOLÓ
- IGÉNY SZERINTI BEFEJEZÉS, MAGAS MŰSZAKI TARTALOM
Budafok csendes, zöldövezeti részén új építésű 5 lakásos társasházban költséghatékony, kényelmes terekkel rendelkező nappali + 2-3 szobás lakások leköthetők gk. beállóval, igény szerinti befejezéssel.
Várható átadás: 2026. december.
A kivitelező több éves tapasztalattal, számos referencia ingatlannal rendelkezik.
JELEN HIRDETÉSBEN SZEREPLŐ LAKÁS:
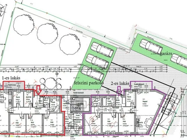
Földszint 2-es lakás – 119.000.000,- Ft (86.38m2 + fedett terasz 6m2): előtér (3.06m2), konyha (9.86m2) – étkező – nappali (19.94m2), szoba (10.62m2), szoba (10.62m2), szoba (11.25m2), közlekedő (8.85m2), tároló (5.04m2), fürdőszoba (4.08m2), fürdő (3.06m2), fedett terasz (6m2). /Kód: 5087/
AZ ÉPÜLETBEN TALÁLHATÓ TOVÁBBI LAKÁS KÍNÁLATOK:
FÖLDSZINT:
1-es lakás – 129.000.000,- Ft (88.16m2 + fedett terasz 6m2): előtér (3.42m2), közlekedő (8.16m2), wc (1.98m2), fürdőszoba (5.22m2), szoba (13.44m2), szoba (10.03m2), szoba (10.03m2), gardrób (4.64m2), tároló (5.51m2), konyha (8.03m2) – étkező – nappali (17.70m2), fedett terasz (6m2). /Kód: 5086/
EMELET:
3-as lakás: ELADVA!
4-es lakás – 79.900.000,- Ft (55.27m2): előtér (4.59m2), dolgozó – kis szoba (5.22m2), tároló (2.02m2), fürdőszoba (4.50m2), szoba (12.16m2), konyha (8.28m2) – étkező – nappali (18.50m2). /kód: 5089/
5-ös lakás – 99.900.000,- Ft (65.13m2 + erkély 6m2): előtér (3.06m2), közlekedő (5.50m2), tároló (5.04m2), wc (1.09m2), fürdőszoba (3.98m2), szoba (10.62m2), szoba (10.62m2), konyha (7.21m2) – étkező – nappali (18.01m2), erkély (6m2). /Kód: 5090/
Szerkezeti leírás: Az épület beton alapra épül. 30-as tégla főfalak + 15cm grafitos dryvit szigetelés. 10-es vakolt tégla válaszfalak. Kívül barnára színterezett 3 rétegű bukó – nyíló, műanyag szerkezetű nyílászárók – redőnytokokkal ellátva. A közbenső födém betongerendás, míg a zárófödém fa szerkezetű + 20cm kőzetgyapot szigetelés. Cserép fedésű tető, alatta fóliaréteg.
Az igény szerinti befejezésnek köszönhetően a beltéri ajtók 70.000,- Ft / db áron, a meleg burkolatok 5.000,- Ft / m2, a hideg burkolatok 7.000,- Ft / m2 árig választhatóak. Lehetpség van az igény szerinti szaniterek kiválasztására is.
Riasztó előkészítést és viacolorozott autóbeállót tartalmaz a vételár.
Fűtés, meleg víz ellátás: A lakások fűtése és meleg víz ellátása energiatakarékos 10Kw-os Fischer típusú hőszivattyúról biztosított. A fűtést minden helyiségben padlófűtés szolgáltatja.
Parkolás: zárt udvaron belül lakásonként 1 gépkocsinak fedetlen-felszíni beálló áll rendlekezésre.
Megközleíthetőség és infrastruktúra kiváló! Buszmegálló, villamosmegálló pár perc sétatávolságra található. Közintézmények, bevásárlási lehetőségek szintén a közelben.
További hasonló ingatlanok találhatók még a kínálatunkban!
Szüksége van hitelre? SEGÍTÜNK!
Bankfüggetlen hitel tanácsadónk díjmentesen áll az Ön rendelkezésére! Keressen bizalommal!
A hirdetésben szereplő adatok, információk, képek, alaprajzok stb... tájékoztató jellegűek! Irodánk az esetleges elírásokért felelősséget nem tud vállalni!
Tájékoztatjuk a Tisztelt Érdeklődőket, hogy az ingatlan hirdetésében szereplő telefonszám felhívásával Önök hozzájárulnak személyes adataik (név, telefonszám), a hirdetést feladó -Otthonplusz.hu Kft. - által a bizalmas kezeléshez és nyilvántartáshoz.
Tulajdonságok
Téglalakás
2
Új építésű
Hőszivattyú
2026
6 m²
Nem adta meg a hirdető
Vedd fel a kapcsolatot a hirdetővel
+36 70 432 5
Hitelkalkulátor
Második évtől
512 122 Ft A 13. hónaptól
7,99% 8,49%
Végig fix Futamidő: 20 év Banki visszahívás
Az OTP Bank munkatársai a neked megfelelő napszakban veszik fel veled a kapcsolatot.Hitelfelvétel esetén akár egy héttel rövidebb lehet az ügyintézés.
Ez az ingatlan a nálunk meglévő adatok alapján azonnali értékbecslésre alkalmas lehet.
A becslés a hirdető által megadott adatokon alapul. A jelen tájékoztatás nem minősül ajánlattételnek és nem teljes körű, az egyes feltételek a hitelbírálat eredményétől függően változhatnak. Kérjük, a részletekről tájékozódj az OTP Bank fiókjaiban vagy az OTP Bank honlapján közzétett vonatkozó Üzletszabályzatokból és Hirdetményekből.
Vedd fel a kapcsolatot a hirdetővel
+36 70 432 5
Vedd fel a kapcsolatot a hirdetővel
+36 70 432 5
UI_KIT.CHARACTER_COUNTER__COMPONENT.REMAINING_SPACE__SR_ONLYUI_KIT.CHARACTER_COUNTER__COMPONENT.MAXIMUM_CHARACTER__SR_ONLY
Hasonló eladó ingatlanok Budafok-Rózsavölgy városrészben
Feltöltve: ma
8
129 M Ft 1 465 909 Ft/m²
Eladó lakás, Budapest XXII. kerület, Budafok-Rózsavölgy
Frissítve: 19 napja
18
129,9 M Ft 639 901 Ft/m²
Eladó lakás, Budapest XXII. kerület

Feltöltve: 3 hónapja
1
129,5 M Ft 1 798 611 Ft/m²
Eladó lakás, Budapest XXII. kerület, Budatétény, Terv utca

Fedezd fel a
hasonló lakásokat!Még további lakások Budapesten 119 M Ft körüli értékben
Tovább a hirdetésekhez Frissítve: ma
20
129,9 M Ft 877 703 Ft/m²
Eladó lakás, Budapest XXII. kerület, Péter Pál utca közeli

Frissítve: 1 napja
11
118 M Ft 1 685 714 Ft/m²
Eladó lakás, Budapest XXII. kerület

Frissítve: 9 napja
20
119 M Ft 1 307 692 Ft/m²
Eladó lakás, Budapest XXII. kerület
