

 +18 fotó 
Hirdetéskód: 8768356
Referenciaszám: 389105
 Frissítve: ma 
Budapest XXII. kerület eladó téglalakás 2+1 fél szobás: 114,99 millió Ft
 114,99 millió Ft 
 1 691 029 Ft/m² 
 68 m²  
 2+1 fél szoba 
 tetőtér  
Eladó téglalakás Budapest, XXII. kerület, 68nm, 114.990.000Ft - Saskő tér
 Panorámás nyugalom Budafokon – ahová jó hazatérni!
Szeretnél egy csendes, zöldövezeti helyen élni, ahol minden reggel a Duna panorámája köszönt?
Most itt a lehetőséged!
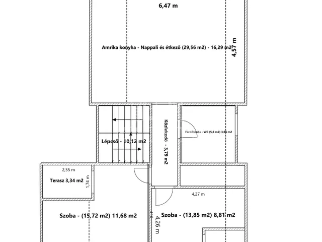
Eladó Budafok egyik legkedveltebb részén, a Tóth József utca szomszédságában egy 8 éve épült, 68 m²-es, amerikai konyhás nappalis, 1 + 1 fél szobás lakás, három  terasszal és varázslatos kilátással!
A lakást átgondoltan, minden négyzetmétert kihasználva tervezték meg.
A geotermikus hőszivattyús fűtés és a H-tarifás (vezérelt) áram rendkívül költséghatékonnyá teszi a fenntartását.
A bejáratnál egy hangulatos előkert és kis terasz fogad, az emeleten pedig mindkét szobához külön terasz, a nappalihoz pedig egy 10 m²-es panorámás erkély tartozik – tökéletes helyszín egy reggeli kávézáshoz vagy egy nyári grillestéhez.
A szobákban is és a fürdőben és WC-ben is minőségi burkolatok várnak.
Miért érdemes megnézned?
 Csendes, nyugodt környék
 Panoráma a Dunára
 Modern, energiatakarékos fűtés
 Befektetésnek is kiváló választás
Ne csak a képeken nézegesd – nézd meg élőben!
Hívj bizalommal, és egyeztessünk időpontot a megtekintésre!
Több mint 15 éves szakmai tapasztalattal segítek az adásvétel teljes folyamatában – a megtekintéstől a birtokbaadásig.
Nincs meg a teljes vételár? Nem gond!
Független  Hitelcentrumunk segít megtalálni számodra a legkedvezőbb banki megoldást.
Kérj időpontot most a megtekintésre! ...TOVÁBBI, TÖBBEZRES INGATLAN KÍNÁLAT: www.gdn-ingatlan.hu - GDN azonosító: 389105 
Tulajdonságok
Téglalakás
Jó állapotú
Hőszivattyú
2017
11 m²
8 m²
A
Vedd fel a kapcsolatot a hirdetővel
 +36 20 263 9 
Hitelkalkulátor
 Második évtől 
 494 865 Ft  A 13. hónaptól 
 7,99% 
 Végig fix  Futamidő: 20 év Banki visszahívás
Az OTP Bank munkatársai a neked megfelelő napszakban veszik fel veled a kapcsolatot.Hitelfelvétel esetén akár egy héttel rövidebb lehet az ügyintézés.
Ez az ingatlan a nálunk meglévő adatok alapján azonnali értékbecslésre alkalmas lehet.
 A becslés a hirdető által megadott adatokon alapul. A jelen tájékoztatás nem minősül ajánlattételnek és nem teljes körű, az egyes feltételek a hitelbírálat eredményétől függően változhatnak. Kérjük, a részletekről tájékozódj az OTP Bank fiókjaiban vagy az OTP Bank honlapján közzétett vonatkozó Üzletszabályzatokból és Hirdetményekből. 
Vedd fel a kapcsolatot a hirdetővel
 +36 20 263 9 
Vedd fel a kapcsolatot a hirdetővel
 +36 20 263 9 
UI_KIT.CHARACTER_COUNTER__COMPONENT.REMAINING_SPACE__SR_ONLYUI_KIT.CHARACTER_COUNTER__COMPONENT.MAXIMUM_CHARACTER__SR_ONLY
Hasonló eladó ingatlanok Budafok városrészben
 Frissítve: 1 napja 

 15 
 316 000 Euro 
 123,56 M Ft  726 800 Ft/m² 
 Eladó lakás, Budapest VII. kerület, Ligetváros 

 Frissítve: 8 napja 

 11 
 119,6 M Ft  1 150 000 Ft/m² 
 Eladó lakás, Budapest XIV. kerület, Hungária körút 

 Frissítve: 8 napja 

 11 
 Modern, minőségi ÚJ OTTHONOK, a IX.kerületi Kerekerdő park szomszédságában 
 120 M Ft  1 398 927 Ft/m² 
 Eladó lakás, Budapest IX. kerület 


Fedezd fel a 
hasonló lakásokat!Még további lakások Budapesten 114,99 M Ft körüli értékben
 Tovább a hirdetésekhez  Feltöltve: 2 éve 

 13 
 114,9 M Ft  1 104 808 Ft/m² 
 Eladó lakás, Budapest V. kerület, Belváros, Október 6 utca 5. 

 Feltöltve: 2 éve 

 20 
 124,8 M Ft  1 600 000 Ft/m² 
 Eladó lakás, Budapest VII. kerület, Ligetváros, Bethlen Gábor 
 Frissítve: 7 napja 

 11 
 108,05 M Ft  1 500 681 Ft/m² 
 Eladó lakás, Budapest XI. kerület 


Töltsd fel hirdetésed ingyenesen!
Egyszerű 

