+5 fotó
Hirdetéskód: 8855883
Referenciaszám: 5089
Feltöltve: 2 napja
Budapest XXII. kerület eladó téglalakás 2 szobás: 79,9 millió Ft
79,9 millió Ft
1 452 727 Ft/m²
55 m²
2 szoba
1. emelet
Kód: 5089TSZ Új építésű emeleti nappali + 1 szobás lakás, gk. beállóval leköthető
Hivatkozzon erre, kód: 5089TSZ
- ÚJ ÉPÍTÉSŰ LAKÁSOK
- KÖLTSÉGHATÉKONY, ÉRTÉKÁLLÓ BEFEKTETÉS
- NAPPALI + 2-3 SZOBA, FELSZÍNI PARKOLÓ
- IGÉNY SZERINTI BEFEJEZÉS, MAGAS MŰSZAKI TARTALOM
Budafok csendes, zöldövezeti részén új építésű 5 lakásos társasházban költséghatékony, kényelmes terekkel rendelkező nappali + 2-3 szobás lakások leköthetők gk. beállóval, igény szerinti befejezéssel.
Várható átadás: 2026. december.
A kivitelező több éves tapasztalattal, számos referencia ingatlannal rendelkezik.
JELEN HIRDETÉSBEN SZEREPLŐ LAKÁS:
Emelet 4-es lakás – 79.900.000,- Ft (55.27m2): előtér (4.59m2), dolgozó – kis szoba (5.22m2), tároló (2.02m2), fürdőszoba (4.50m2), szoba (12.16m2), konyha (8.28m2) – étkező – nappali (18.50m2). /kód: 5089/
AZ ÉPÜLETBEN TALÁLHATÓ TOVÁBBI LAKÁS KÍNÁLATOK:
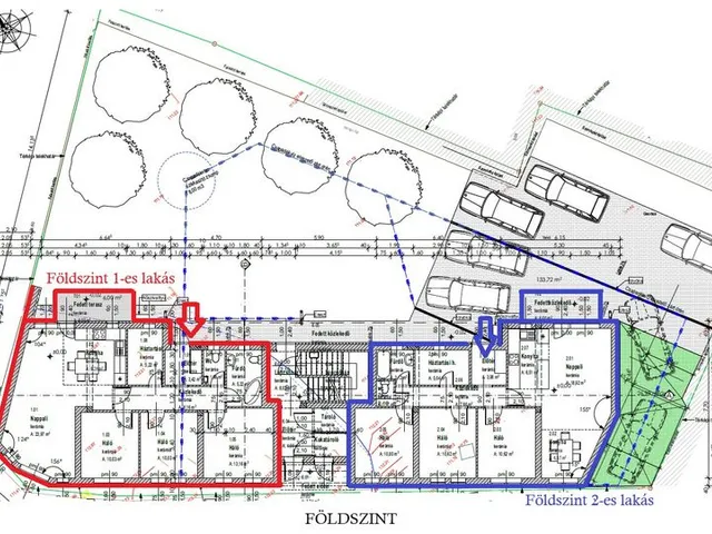
FÖLDSZINT:
1-es lakás – 129.000.000,- Ft (88.16m2 + fedett terasz 6m2): előtér (3.42m2), közlekedő (8.16m2), wc (1.98m2), fürdőszoba (5.22m2), szoba (13.44m2), szoba (10.03m2), szoba (10.03m2), gardrób (4.64m2), tároló (5.51m2), konyha (8.03m2) – étkező – nappali (17.70m2), fedett terasz (6m2). /Kód: 5086/
2-es lakás – 119.000.000,- Ft (84.29m2 + fedett terasz 6m2): előtér (3.06m2), konyha (6.51m2) – étkező (6.57m2) – nappali (18.92m2), szoba (10.62m2), szoba (10.62m2), szoba (10.8m2), közlekedő (7.86m2), fürdőszoba (3.12m2), háztartási helyiség (5.04m2), wc (1.17m2), fedett terasz (6m2). /Kód: 5087/
EMELET:
3-as lakás: ELADVA!
5-ös lakás – 99.900.000,- Ft (65.13m2 + erkély 6m2): előtér (3.06m2), közlekedő (5.50m2), tároló (5.04m2), wc (1.09m2), fürdőszoba (3.98m2), szoba (10.62m2), szoba (10.62m2), konyha (7.21m2) – étkező – nappali (18.01m2), erkély (6m2). /Kód: 5090/
Szerkezeti leírás: Az épület beton alapra épül. 30-as tégla főfalak + 15cm grafitos dryvit szigetelés. 10-es vakolt tégla válaszfalak. Kívül barnára színterezett 3 rétegű bukó – nyíló, műanyag szerkezetű nyílászárók – redőnytokokkal ellátva. A közbenső födém betongerendás, míg a zárófödém fa szerkezetű + 20cm kőzetgyapot szigetelés. Cserép fedésű tető, alatta fóliaréteg.
Az igény szerinti befejezésnek köszönhetően a beltéri ajtók 70.000,- Ft / db áron, a meleg burkolatok 5.000,- Ft / m2, a hideg burkolatok 7.000,- Ft / m2 árig választhatóak. Lehetpség van az igény szerinti szaniterek kiválasztására is.
Riasztó előkészítést és viacolorozott autóbeállót tartalmaz a vételár.
Fűtés, meleg víz ellátás: A lakások fűtése és meleg víz ellátása energiatakarékos 10Kw-os Fischer típusú hőszivattyúról biztosított. A fűtést minden helyiségben padlófűtés szolgáltatja.
Parkolás: zárt udvaron belül lakásonként 1 gépkocsinak fedetlen-felszíni beálló áll rendlekezésre.
Megközleíthetőség és infrastruktúra kiváló! Buszmegálló, villamosmegálló pár perc sétatávolságra található. Közintézmények, bevásárlási lehetőségek szintén a közelben.
További hasonló ingatlanok találhatók még a kínálatunkban!
Szüksége van hitelre? SEGÍTÜNK!
Bankfüggetlen hitel tanácsadónk díjmentesen áll az Ön rendelkezésére! Keressen bizalommal!
A hirdetésben szereplő adatok, információk, képek, alaprajzok stb... tájékoztató jellegűek! Irodánk az esetleges elírásokért felelősséget nem tud vállalni!
Tájékoztatjuk a Tisztelt Érdeklődőket, hogy az ingatlan hirdetésében szereplő telefonszám felhívásával Önök hozzájárulnak személyes adataik (név, telefonszám), a hirdetést feladó -Otthonplusz.hu Kft. - által a bizalmas kezeléshez és nyilvántartáshoz.
Tulajdonságok
Téglalakás
2
Új építésű
Hőszivattyú
2026
Nem adta meg a hirdető
Vedd fel a kapcsolatot a hirdetővel
+36 70 432 5
Hitelkalkulátor
Második évtől
343 853 Ft A 13. hónaptól
7,99% 8,49%
Végig fix Futamidő: 20 év Banki visszahívás
Az OTP Bank munkatársai a neked megfelelő napszakban veszik fel veled a kapcsolatot.Hitelfelvétel esetén akár egy héttel rövidebb lehet az ügyintézés.
Ez az ingatlan a nálunk meglévő adatok alapján azonnali értékbecslésre alkalmas lehet.
A becslés a hirdető által megadott adatokon alapul. A jelen tájékoztatás nem minősül ajánlattételnek és nem teljes körű, az egyes feltételek a hitelbírálat eredményétől függően változhatnak. Kérjük, a részletekről tájékozódj az OTP Bank fiókjaiban vagy az OTP Bank honlapján közzétett vonatkozó Üzletszabályzatokból és Hirdetményekből.
Vedd fel a kapcsolatot a hirdetővel
+36 70 432 5
Vedd fel a kapcsolatot a hirdetővel
+36 70 432 5
UI_KIT.CHARACTER_COUNTER__COMPONENT.REMAINING_SPACE__SR_ONLYUI_KIT.CHARACTER_COUNTER__COMPONENT.MAXIMUM_CHARACTER__SR_ONLY
Hasonló eladó ingatlanok Budafok városrészben
Frissítve: 13 napja
18
75,99 M Ft 1 407 222 Ft/m²
Eladó lakás, Budapest XXII. kerület, Budafok

Feltöltve: 4 hónapja
1
87 M Ft 1 500 000 Ft/m²
Eladó lakás, Budapest XXII. kerület, Budafok
Frissítve: 28 napja
20
78 M Ft 1 147 059 Ft/m²
Eladó lakás, Budapest XXII. kerület, Budafok


Fedezd fel a
hasonló lakásokat!Még további lakások Budapest XXII. kerületben 79,9 M Ft körüli értékben
Tovább a hirdetésekhez Frissítve: 3 napja
1
78 M Ft 1 068 493 Ft/m²
Eladó lakás, Budapest XXII. kerület, Budafok, Leányka utca
Frissítve: 3 napja
16
72,9 M Ft 1 375 472 Ft/m²
Eladó lakás, Budapest XXII. kerület, Budafok
Feltöltve: 15 napja
1
80 M Ft 952 381 Ft/m²
Eladó lakás, Budapest XXII. kerület, Budafok
