+4 fotó
Hirdetéskód: 8936741
Referenciaszám: M324848-5178855
Frissítve: 4 napja
Budapest XXII. kerület eladó téglalakás 2 szobás: 63,2 millió Ft
63,2 millió Ft
1,66 millió Ft/m²
38 m²
2 szoba
földszint
Eladó Lakás, Budapest 22. ker.
FELÚJÍTOTT VILLALAKÁS BUDAFOKON SAJÁT KERTTEL, PARKOLÓVAL.
Eladásra kínálok egy teljeskörűen felújított, egyedi atmoszférájú lakást egy századfordulós villában, csendes, zöld környezetben.
A ház egykor egy jelentős, nagy múltú család birtoka volt, és a mai napig őrzi a korszak eleganciáját: hatalmas, ősfás kert, karakteres építészeti részletek, és egy különleges hangulat, amit ritkán találni.
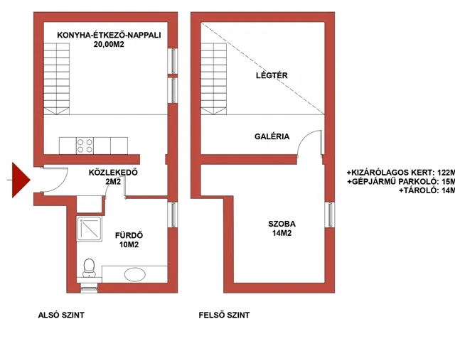
A lakás a villa magasföldszintjén helyezkedik el. A 4,2 méteres belmagasság lehetővé tette egy praktikus, intim galéria kialakítását, így a 30 nm-es alapterület 50 nm hasznos térként funkcionál.
A nappali-konyha tágas, napfényes, nagy ablakai a kertre néznek, a galérián pedig kényelmes hálórész kapott helyet. A lakáshoz 122 nm saját kertrész, saját parkoló, valamint 14 nm-es tároló tartozik. A kertbe autóval is kényelmesen be lehet állni.
Az ingatlan tehermentes, azonnal költözhető, de nem hitelezhető. Ideális választás mindazoknak, akik értékelik a történelmi környezetet, a különleges atmoszférát és a modern, igényes kialakítást.
Energetikai tanúsítvány nem áll rendelkezésre.
Referenciaszám: M324848
Az energetikai tanúsítvány készítése folyamatban van, amint rendelkezésre áll, úgy azzal a hirdetés frissítésre kerül.
Referencia szám: M324848
Tulajdonságok
Téglalakás
Felújított
Gázkazán
1900
Nem adta meg a hirdető
Vedd fel a kapcsolatot a hirdetővel

Zatykó Krisztina
OTPip - Budapest XI. kerület Bartók Béla út 62 - OTP Ingatlanpont Iroda
Az iroda összes hirdetése +36 70 237 2
Hitelkalkulátor
Második évtől
271 984 Ft A 13. hónaptól
7,99%
Végig fix Futamidő: 20 év Banki visszahívás
Az OTP Bank munkatársai a neked megfelelő napszakban veszik fel veled a kapcsolatot.Hitelfelvétel esetén akár egy héttel rövidebb lehet az ügyintézés.
Ez az ingatlan a nálunk meglévő adatok alapján azonnali értékbecslésre alkalmas lehet.
A becslés a hirdető által megadott adatokon alapul. A jelen tájékoztatás nem minősül ajánlattételnek és nem teljes körű, az egyes feltételek a hitelbírálat eredményétől függően változhatnak. Kérjük, a részletekről tájékozódj az OTP Bank fiókjaiban vagy az OTP Bank honlapján közzétett vonatkozó Üzletszabályzatokból és Hirdetményekből.
Vedd fel a kapcsolatot a hirdetővel

Zatykó Krisztina
OTPip - Budapest XI. kerület Bartók Béla út 62 - OTP Ingatlanpont Iroda
Az iroda összes hirdetése +36 70 237 2
Vedd fel a kapcsolatot a hirdetővel

Zatykó Krisztina
OTPip - Budapest XI. kerület Bartók Béla út 62 - OTP Ingatlanpont Iroda
Az iroda összes hirdetése +36 70 237 2
UI_KIT.CHARACTER_COUNTER__COMPONENT.ACTUAL_CHARACTER__SR_ONLY UI_KIT.CHARACTER_COUNTER__COMPONENT.MAXIMUM_CHARACTER__SR_ONLY
Hasonló eladó ingatlanok Budafok városrészben
Feltöltve: 1 éve
0
62,5 millió Ft 919,1 ezer Ft/m²
Eladó lakás, Budapest XXII. kerület, Budafok, Leányka u 11.
Feltöltve: 7 hónapja
20
58 millió Ft 1,32 millió Ft/m²
Eladó lakás, Budapest XXII. kerület, Budafok, Tenkes

Frissítve: 8 napja
10
64,9 millió Ft 1,3 millió Ft/m²
Eladó lakás, Budapest XXII. kerület, Budafok

Fedezd fel a
hasonló lakásokat!Még további lakások Budapest XXII. kerületben 63,2 M Ft körüli értékben
Tovább a hirdetésekhez Frissítve: 19 napja
2
66,5 millió Ft 1,23 millió Ft/m²
Eladó lakás, Budapest XXII. kerület, Budafok
Frissítve: 4 napja
20
63,2 millió Ft 1,26 millió Ft/m²
Eladó lakás, Budapest XXII. kerület, Budafok

Frissítve: 4 napja
6
65 millió Ft 1,08 millió Ft/m²
Eladó lakás, Budapest XXII. kerület, Budafok

