+1 fotó
Hirdetéskód: 8928988
Referenciaszám: PR010566/LK/29017-5174405
Feltöltve: ma
Debrecen eladó téglalakás 2 szobás: 85,92 millió Ft
85,92 millió Ft
1 562 118 Ft/m²
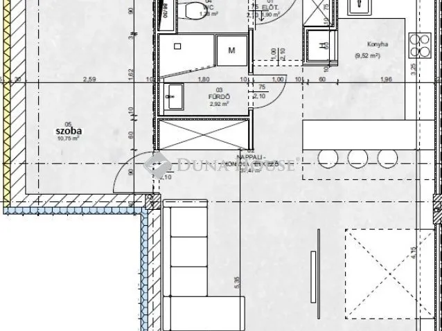
55 m²
2 szoba
2. emelet
Eladó lakás, Debrecen
Debrecen belvárosában egy 16 lakásos újépítésű projekt építése vette kezdetét.
Különösen jó lokációval, remek elosztású lakások kerülnek megépítésre.
Pinceszinten terempakolók, földszinten irodák, üzletek, míg az első és második emeleten 7-7 lakás, addig a 2.-ik emeleten kettő penthouse kerül kialakításra.
Műszaki tartalom:
- 30-as téglafalazat
- 15 cm hőszigetelés
- 3 rétegű nyílászárók
- elektromos redőnnyel
- Hűtés: fain-cool
- választható burkolatok...stb.
Teremgarázs vásárolható 10 Mft-ért
További kérdéseivel kapcsolatban várom hívását, érdeklődését....
Tulajdonságok
Téglalakás
Új építésű
Hőszivattyú
2027
Nem adta meg a hirdető
Vedd fel a kapcsolatot a hirdetővel
+36 52 234 0
Hitelkalkulátor
Második évtől
369 745 Ft A 13. hónaptól
7,99% 8,49%
Végig fix Futamidő: 20 év Banki visszahívás
Az OTP Bank munkatársai a neked megfelelő napszakban veszik fel veled a kapcsolatot.Hitelfelvétel esetén akár egy héttel rövidebb lehet az ügyintézés.
Ez az ingatlan a nálunk meglévő adatok alapján azonnali értékbecslésre alkalmas lehet.
A becslés a hirdető által megadott adatokon alapul. A jelen tájékoztatás nem minősül ajánlattételnek és nem teljes körű, az egyes feltételek a hitelbírálat eredményétől függően változhatnak. Kérjük, a részletekről tájékozódj az OTP Bank fiókjaiban vagy az OTP Bank honlapján közzétett vonatkozó Üzletszabályzatokból és Hirdetményekből.
Vedd fel a kapcsolatot a hirdetővel
+36 52 234 0
Vedd fel a kapcsolatot a hirdetővel
+36 52 234 0
UI_KIT.CHARACTER_COUNTER__COMPONENT.ACTUAL_CHARACTER__SR_ONLY UI_KIT.CHARACTER_COUNTER__COMPONENT.MAXIMUM_CHARACTER__SR_ONLY
Hasonló eladó ingatlanok Belváros városrészben
Frissítve: 1 napja
7
78 M Ft 1 054 054 Ft/m²
Eladó lakás, Debrecen, Belváros

Feltöltve: 22 napja
13
79,9 M Ft 1 175 000 Ft/m²
Eladó lakás, Debrecen, Belváros
Frissítve: 24 napja
16
78 M Ft 1 054 055 Ft/m²
Eladó lakás, Debrecen, Belváros


Fedezd fel a
hasonló lakásokat!Még további lakások Debrecen, Belváros városrészben 85,92 M Ft körüli értékben
Tovább a hirdetésekhez Feltöltve: 4 hónapja
14
79,9 M Ft 1 175 000 Ft/m²
Eladó lakás, Debrecen, Belváros

Frissítve: 1 éve
1
80 M Ft 1 081 081 Ft/m²
Eladó lakás, Debrecen, Belváros, Piac utca 68
Frissítve: 24 napja
9
80,69 M Ft 1 494 225 Ft/m²
Eladó lakás, Debrecen, Belváros

