+4 fotó
Hirdetéskód: 8841069
Referenciaszám: LK044257-5117046
Feltöltve: 1 napja
Debrecen eladó téglalakás 2 szobás: 75 millió Ft
75 millió Ft
1 071 429 Ft/m²
70 m²
2 szoba
földszint
Eladó lakás, Debrecen
Debrecen belvárosában Új építésű Exkluzív Napfényes Tégla Építésű Lakás Eladó !
Összességében, ha egy olyan otthont keres, amely modern technológiai megoldásokat, fenntarthatóságot és stílust ötvöz, akkor ez az ingatlan tökéletes választás lehet Ön számára. Forduljon hozzám bizalommal további információk és megtekintésért. Fedezze fel, hogy mit jelent ma egy valóban korszerű otthonban élni!
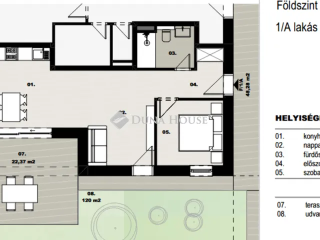
A lakás 48,28 nm , melyet nappali + 1 szobás vagy nappali + 2 szobás lakásként lehet használni. A lakáshoz tartozik még részben fedett terasz , alapterülete 22,57 nm. Lakáshoz tartozik még 120 nm kert helyiség.
Fontos megemlíteni, hogy az ingatlant egy 12 férőhelyes mélygarázsból való parkolóhely megvásárlása egészíti ki, melynek ára 12 millió Ft. Ez egy hihetetlenül praktikus választás azok számára, akik a belváros közelségét értékelik, de nem szeretnének parkolási gondokkal foglalkozni.
A társasház igen praktikus személylifttel is rendelkezik, mely hozzáad az ingatlan kényelméhez. A napfényes lakások nagy figyelmet fordítanak a világosságra és a tágas tér érzetére, ahol a harmadik rétegű Kömmerling műanyag nyílászárók pedig gondoskodnak a kiváló szigetelésről.
Az épület tégla szerkezetű, a falak Porotherm 30N+F falazattal készültek, Austrotherm 15 cm-es EPS homlokzati szigeteléssel szigetelt, így garantálva a hőhatékonyságot és az energetikai hatékonyságot, amit az AA+ energetikai besorolás is igazol. A fenntarthatóság és a hatékonyság jegyében a fűtést és a hűtést egyaránt a levegő-víz hőszivattyús rendszer biztosítja, padlófűtéssel, valamint lakásonkénti vezérlésű fan-coil hűtéssel, nyújtva ezzel az otthoni komfortérzés új szintjét.
Engedje meg, hogy bemutassam ezt a különleges lehetőséget, egy 2025-ben épülő, napfényes lakást, mely egy modern és fenntartható megoldásokkal felszerelt társasházban helyezkedik el. Az ingatlan kínálata mindazok számára ideális, akik értékelik a kényelmet, a modern technológiát és a környezettudatosságot.
www-dh.hu
Tulajdonságok
Téglalakás
Új építésű
Hőszivattyú
2025
Nem adta meg a hirdető
Vedd fel a kapcsolatot a hirdetővel
+36 52 234 1
Hitelkalkulátor
Második évtől
322 766 Ft A 13. hónaptól
7,99% 8,49%
Végig fix Futamidő: 20 év Banki visszahívás
Az OTP Bank munkatársai a neked megfelelő napszakban veszik fel veled a kapcsolatot.Hitelfelvétel esetén akár egy héttel rövidebb lehet az ügyintézés.
Ez az ingatlan a nálunk meglévő adatok alapján azonnali értékbecslésre alkalmas lehet.
A becslés a hirdető által megadott adatokon alapul. A jelen tájékoztatás nem minősül ajánlattételnek és nem teljes körű, az egyes feltételek a hitelbírálat eredményétől függően változhatnak. Kérjük, a részletekről tájékozódj az OTP Bank fiókjaiban vagy az OTP Bank honlapján közzétett vonatkozó Üzletszabályzatokból és Hirdetményekből.
Vedd fel a kapcsolatot a hirdetővel
+36 52 234 1
Vedd fel a kapcsolatot a hirdetővel
+36 52 234 1
UI_KIT.CHARACTER_COUNTER__COMPONENT.REMAINING_SPACE__SR_ONLYUI_KIT.CHARACTER_COUNTER__COMPONENT.MAXIMUM_CHARACTER__SR_ONLY
Hasonló eladó ingatlanok Mesterfalva városrészben
Feltöltve: 11 hónapja
1
194 878 Euro
75,03 M Ft 1 056 733 Ft/m²
Eladó lakás, Debrecen, Mesterfalva
Frissítve: 2 napja
6
75 M Ft 1 071 429 Ft/m²
Eladó lakás, Debrecen, Mesterfalva

Frissítve: 15 napja
10
78,5 M Ft 1 154 412 Ft/m²
Eladó lakás, Debrecen


Fedezd fel a
hasonló lakásokat!Még további lakások Debrecenben 75 M Ft körüli értékben
Tovább a hirdetésekhez Frissítve: 17 napja
7
Debrecen Belvárosában új társasházi projekt
70,7 M Ft 70 703 325 Ft/m²
Eladó lakás, Debrecen, Hatvan köz

Frissítve: 2 napja
7
70,7 M Ft 1 104 739 Ft/m²
Eladó lakás, Debrecen

Frissítve: 23 napja
20
75 M Ft 1 339 286 Ft/m²
Eladó lakás, Debrecen, Libakert
