Hirdetéskód: 8813917
Referenciaszám: 346105-5099253
Frissítve: 9 napja
Debrecen eladó téglalakás 3 szobás: 101,99 millió Ft
101,99 millió Ft
1 397 123 Ft/m²
73 m²
3 szoba
Eladó lakás Debrecen
A Nagyerdő-Tölgyes és Nyulas határán, 5 lakásos társasház épül innovatív technológiával, A+ eneregetikával, 2026. III. negyedév végi átadással.Zöld, csendes, természetközeli környezet, modern alaprajz, prémium műszaki tartalom, alacsony rezsi, minőségi kivitelezés!
A projekt 3 különálló épülettömbből áll, ahol a lakások önálló egységként, közös fal nélkül lettek kialakítva, áthallás nélküli, csendes otthonok.
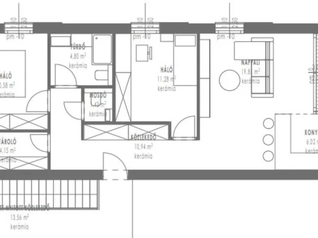
I.emeleti 3. lakás hasznos alapterülete: 69,00nm+ 4,80nm loggia
Helyiségei:
- Nappali 19,80nm
- Konyha 6,02nm
- Szoba 11,28nm
- Szoba 10,58nm
- Közlekedő 10,94nm
- Fürdő 4,80nm
- WC 1,43nm
- Tároló 4,15nm
- Loggia 4,80nm
15,47 nm-es önálló garázs vásárolható hozzá, 14,25MFt áron!
Az ingatlan főbb jellemzői:
- beton sávalap,
- 36 cm Isospan falazati rendszer ( 16cm grafitos szigetelés+vasbeton),
- monolit vasbeton födém,
- külső nyílászárók 3 rtg üvegezés, 6 légkamrás műanyag profilban,
- gázcirkó kazán, padlófűtés hőleadással,
- szobánként klímaberendezés,
- választható szaniter áruk, burkolatok 6eFt/nm áron, beltéri ajtók, készültségi fok függvényében.
További információért keressen bizalommal!
Tulajdonságok
2026
Nem adta meg a hirdető
Vedd fel a kapcsolatot a hirdetővel
+36 30 635 2
Hitelkalkulátor
Második évtől
438 918 Ft A 13. hónaptól
7,99% 8,49%
Végig fix Futamidő: 20 év Banki visszahívás
Az OTP Bank munkatársai a neked megfelelő napszakban veszik fel veled a kapcsolatot.Hitelfelvétel esetén akár egy héttel rövidebb lehet az ügyintézés.
Ez az ingatlan a nálunk meglévő adatok alapján azonnali értékbecslésre alkalmas lehet.
A becslés a hirdető által megadott adatokon alapul. A jelen tájékoztatás nem minősül ajánlattételnek és nem teljes körű, az egyes feltételek a hitelbírálat eredményétől függően változhatnak. Kérjük, a részletekről tájékozódj az OTP Bank fiókjaiban vagy az OTP Bank honlapján közzétett vonatkozó Üzletszabályzatokból és Hirdetményekből.
Vedd fel a kapcsolatot a hirdetővel
+36 30 635 2
Vedd fel a kapcsolatot a hirdetővel
+36 30 635 2
UI_KIT.CHARACTER_COUNTER__COMPONENT.REMAINING_SPACE__SR_ONLYUI_KIT.CHARACTER_COUNTER__COMPONENT.MAXIMUM_CHARACTER__SR_ONLY
Hasonló eladó ingatlanok Nyulas városrészben
Frissítve: 22 napja
7
95,93 M Ft 1 128 571 Ft/m²
Eladó lakás, Debrecen, Belváros

Frissítve: 6 napja
6
99 M Ft 1 523 077 Ft/m²
Eladó lakás, Debrecen, Belváros

Feltöltve: 19 napja
13
95 M Ft 1 637 931 Ft/m²
Eladó lakás, Debrecen, Belváros

Fedezd fel a
hasonló lakásokat!Még további lakások Debrecenben 101,99 M Ft körüli értékben
Tovább a hirdetésekhez Frissítve: 6 napja
9
95 M Ft 1 979 167 Ft/m²
Eladó lakás, Debrecen, Belváros

Frissítve: 22 napja
6
91,85 M Ft 1 350 782 Ft/m²
Eladó lakás, Debrecen, Belváros

Frissítve: 22 napja
18
95 M Ft 1 233 766 Ft/m²
Eladó lakás, Debrecen, Belváros, Piac utca


Töltsd fel hirdetésed ingyenesen!
Egyszerű