+12 fotó
Hirdetéskód: 8921010
Referenciaszám: M324313-5168843
Frissítve: ma
Dunaharaszti eladó téglalakás 2 szobás: 62,5 millió Ft
62,5 millió Ft
1 302 083 Ft/m²
48 m²
2 szoba
Eladó Lakás, Dunaharaszti
NAPFÉNYES***KÉTSZOBÁS***TERASZOS***LAKÁS***DUNAHARASZTIBAN****Hitelezhető!!!
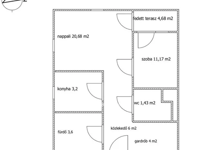
Eladásra kínálok Pest megyében egy 2 szobás, panorámás, 48 m2-es, 3. emeleti, társasházi lakást, LIFTes, modern, parkosított lakóparkban Dunaharaszti szívében.
A piac közelében, jó lokációval, egy zárt lakóparki környezetben találjuk a kívül- belül modern, napfényben úszó kellemes kis otthont. A lépcsőház finom takarított, karbantartott illata fogad minket, két lépcsős biztonsági rendszerrel, egy modern lifttel. Jól hangszigetelt, téglából épült falain át a külső zajok eltűnnek. Az ingatlanba érve átsüt az előszobán a fény, a keleti és déli oldal, a konyha, a nappali és a szoba is több nyílászáróval napfényes teret nyújt. A nappalival és hálószobával, kádas fürdővel, külön geberites wc-vel, nagy pakolható, gardróbbá alakítható előtérrel, beépített konyhabútoros konyhával és fedett terasszal egy kedves otthon tárul elénk. Nem lakott, ezért a bútorzat kevés, picit üresek a terek, de minden úszik a fényben!! Az ingatlan tehermentes, egy tulajdonossal. Azonnal költözhető!!
Gáz cirkó fűtésű, radiátorokkal,néhány bútor esetlegesen megvásárolható. A közös költség 15.000,-Ft, a rezsi 10-15.000,-Ft. A gáz hálózat korszerűsítése, bővítése a közeljövőben várható,de így is tökéletes.
Jöjjön, legyen Dunaharaszti lakos!! Hogy miért?
Óvoda, bölcsöde, iskola a közelben, Dunaharaszti vitathatatlan infrastruktúrája minden igényt kielégít, a szomszédos piacon pedig szerdai és szombati napokon a környék legjobb kézműveseinek és őstermelőinek portékáit kaphatjuk meg termelői áron.
Budapestre az MO és a Soroksári út gyors bejutást biztosít. De van helyi járatú busz, sárgabusz a Népligetbe, HÉV, és vonat, de rengeteg multi, bevásárlóközpont, Tesco,Aldi, Lidl, Spar, Rossman,DM, Fresnaps, Pepco, Jysk,Takko és számos helyi üzlet, pékségek, zöldségesek, hentesek, éttermek, kávézók és Magyarország egyik legjobb cukrászdája, a Karl cukrászda is díjnyertes bejglijeivel, süteményeivel. Számos fittnesz terem, sportpark,a Duna- part természetvédelmi sétányai, billiárd,darts, táncos klubok, és még sorolhatnám mi minden várja az ide költözőt. Itt még léteznek cipészek, varrónők, házi sütemény készítők és itt van Szabi a Pék is!!
Ne habozzon, jöjjön tekintse meg és csapjon le erre a klassz kis otthonra!
Az OTP Bankcsoport háttér szolgáltatásával, hitelügyintézéssel, ügyvédi háttérrel állunk rendelkezésükre. Az ingatlan alkalmas az Otthon Start Program 3%- os hitelre, CSOK-ra is.
A nap bármely szakában hívjon bizalommal!
Referencia szám: M324313
Tulajdonságok
2008
Nem adta meg a hirdető
Vedd fel a kapcsolatot a hirdetővel
Bertalan Barnabásné OTPip - Budapest XI. kerület Bartók Béla út 62 - OTP Ingatlanpont Iroda Az iroda összes hirdetése
+36 70 439 8
Hitelkalkulátor
Második évtől
268 972 Ft A 13. hónaptól
7,99%
Végig fix Futamidő: 20 év Banki visszahívás
Az OTP Bank munkatársai a neked megfelelő napszakban veszik fel veled a kapcsolatot.Hitelfelvétel esetén akár egy héttel rövidebb lehet az ügyintézés.
Ez az ingatlan a nálunk meglévő adatok alapján azonnali értékbecslésre alkalmas lehet.
A becslés a hirdető által megadott adatokon alapul. A jelen tájékoztatás nem minősül ajánlattételnek és nem teljes körű, az egyes feltételek a hitelbírálat eredményétől függően változhatnak. Kérjük, a részletekről tájékozódj az OTP Bank fiókjaiban vagy az OTP Bank honlapján közzétett vonatkozó Üzletszabályzatokból és Hirdetményekből.
Vedd fel a kapcsolatot a hirdetővel
Bertalan Barnabásné OTPip - Budapest XI. kerület Bartók Béla út 62 - OTP Ingatlanpont Iroda Az iroda összes hirdetése
+36 70 439 8
Vedd fel a kapcsolatot a hirdetővel
Bertalan Barnabásné OTPip - Budapest XI. kerület Bartók Béla út 62 - OTP Ingatlanpont Iroda Az iroda összes hirdetése
+36 70 439 8
UI_KIT.CHARACTER_COUNTER__COMPONENT.ACTUAL_CHARACTER__SR_ONLY UI_KIT.CHARACTER_COUNTER__COMPONENT.MAXIMUM_CHARACTER__SR_ONLY
Hasonló eladó ingatlanok Dunaharasztiban
Frissítve: 1 éve
1
66,9 M Ft 1 365 306 Ft/m²
Eladó lakás, Dunaharaszti
Frissítve: 19 napja
18
59 M Ft 1 229 167 Ft/m²
Eladó lakás, Dunaharaszti
Frissítve: 2 napja
15
62,5 M Ft 1 302 084 Ft/m²
Eladó lakás, Dunaharaszti


Fedezd fel a
hasonló lakásokat!Még további lakások Pest megyében 62,5 M Ft körüli értékben
Tovább a hirdetésekhez Frissítve: 9 napja
15
62,5 M Ft 1 302 083 Ft/m²
Eladó lakás, Dunaharaszti

Frissítve: ma
15
62,5 M Ft 1 302 083 Ft/m²
Eladó lakás, Dunaharaszti

Frissítve: 9 napja
15
62,5 M Ft 1 302 083 Ft/m²
Eladó lakás, Dunaharaszti

