+14 fotó
Hirdetéskód: 8840678
Referenciaszám: M319379
Frissítve: 4 napja
Eger eladó téglalakás 2 szobás: 56,5 millió Ft
56,5 millió Ft
1 027 273 Ft/m² *
* A m² árat a hirdető adta meg.
55 m²
2 szoba
1. emelet
Leírás
Kizárólag az OTP kínálatában
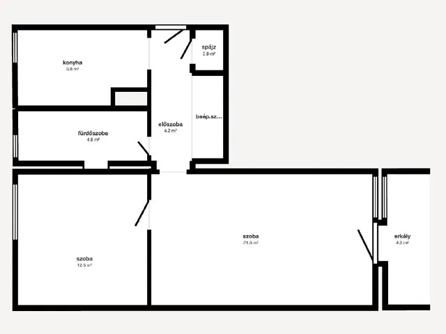
Eladó egy teljeskörűen felújított, 2 szobás, 55 nm-es erkélyes lakás Eger közkedvelt részén, a Mátyás király úton amely egy rendezett társasház 1. emeletén helyezkedik el. Az ingatlan praktikus elrendezésű: 2 szoba, konyha, közlekedő, fürdőszoba, WC, valamint egy kis kamra biztosítja a kényelmes mindennapokat. A hőszigetelt műanyag nyílászárók redőnnyel felszereltek, a hideg-, meleg burkolatok egyaránt jó minőségűek. A társasház anyagi helyzete rendezett, a lépcsőházi nyílászárók cseréje már megtörtént. A közös költség 16300 Ft, mely tartalmaz egy felújítási alapot is. Az ingatlan fűtéséről-, valamint a meleg vízről kazán gondoskodik radiátoros hőleadókon keresztül. Az ingatlan jó elhelyezkedésének, valamint elosztásának köszönhetően befektetőknek, fiatal pároknak, illetve családosoknak egyaránt ideális választás lehet. A lakás előtt található közvetlenül a buszmegálló, az iskola, óvoda, posta, boltok is egy 200 méteren belül elérhetők. Jöjjön és tekintsük meg együtt, ebben az ingatlanban nem fog csalódni. OTP Banki hátterünknek köszönhetően finanszírozási igényekben (pl. Otthon Start Program, Babaváró, Falusi CSOK, CSOK Plusz, Lakáshitel, Személyi kölcsön stb.), illetve biztosítások tekintetében is díjmentesen, soron kívüli ügyintézéssel segítem ügyfeleim! Az adásvételi szerződéshez igény esetén ügyvédet biztosítunk. Referenciaszám: M319379
Tulajdonságok
Téglalakás
Átlagos
Egyéb kazán
1980
Nem adta meg a hirdető
Vedd fel a kapcsolatot a hirdetővel
Spéth Gábor György Miskolc Szemere Bertalan utca 20 - OTP Ingatlanpont Iroda Az iroda összes hirdetése
+36 20 361 5
Hitelkalkulátor
Második évtől
243 150 Ft A 13. hónaptól
7,99%
Végig fix Futamidő: 20 év Banki visszahívás
Az OTP Bank munkatársai a neked megfelelő napszakban veszik fel veled a kapcsolatot.Hitelfelvétel esetén akár egy héttel rövidebb lehet az ügyintézés.
Ez az ingatlan a nálunk meglévő adatok alapján azonnali értékbecslésre alkalmas lehet.
A becslés a hirdető által megadott adatokon alapul. A jelen tájékoztatás nem minősül ajánlattételnek és nem teljes körű, az egyes feltételek a hitelbírálat eredményétől függően változhatnak. Kérjük, a részletekről tájékozódj az OTP Bank fiókjaiban vagy az OTP Bank honlapján közzétett vonatkozó Üzletszabályzatokból és Hirdetményekből.
Vedd fel a kapcsolatot a hirdetővel
Spéth Gábor György Miskolc Szemere Bertalan utca 20 - OTP Ingatlanpont Iroda Az iroda összes hirdetése
+36 20 361 5
Vedd fel a kapcsolatot a hirdetővel
Spéth Gábor György Miskolc Szemere Bertalan utca 20 - OTP Ingatlanpont Iroda Az iroda összes hirdetése
+36 20 361 5
UI_KIT.CHARACTER_COUNTER__COMPONENT.ACTUAL_CHARACTER__SR_ONLY UI_KIT.CHARACTER_COUNTER__COMPONENT.MAXIMUM_CHARACTER__SR_ONLY
Hasonló eladó ingatlanok Lajosváros városrészben
Frissítve: 4 napja
10
55,5 M Ft 781 690 Ft/m²
Eladó lakás, Eger, Lajosváros
Frissítve: 4 napja
9
59,9 M Ft 820 548 Ft/m²
Eladó lakás, Eger, Lajosváros, Faiskola utca
Frissítve: 4 napja
20
53,7 M Ft 839 063 Ft/m²
Eladó lakás, Eger, Lajosváros, Albert Ferenc utca

Fedezd fel a
hasonló lakásokat!Még további lakások Egerben 56,5 M Ft körüli értékben
Tovább a hirdetésekhez Frissítve: 4 napja
20
61,9 M Ft 511 571 Ft/m²
Eladó lakás, Eger, Lajosváros

Frissítve: 7 napja
17
57,8 M Ft 903 125 Ft/m²
Eladó lakás, Eger, Lajosváros
Frissítve: 4 napja
20
56 M Ft 1 056 604 Ft/m²
Eladó lakás, Eger

