+16 fotó
Hirdetéskód: 8758309
Referenciaszám: M315411-5067979
Frissítve: 1 napja
Érd eladó téglalakás 2+1 fél szobás: 79,9 millió Ft
79,9 millió Ft
951 190 Ft/m²
84 m²
2+1 fél szoba
1. emelet
Eladó Lakás, Érd
Kivételes lehetőség Érd Dombosvárosában!
Tágas, panorámás, felújított emeleti lakás eladó, saját kertrésszel!
Érd kedvelt, csendes, családi házas övezetében, Dombosváros városrészben eladó egy kétszintes, 3 lakásos téglaépítésű ház, emeleti lakása.
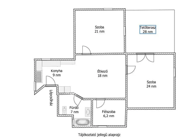
A 194 nm alapterületű épület 2018-ban teljeskörű felújításon esett át, így a kínált 84,5 nm-es tetőtéri lakás modern, gondozott állapotban várja új tulajdonosát.
A lakás világos, jól átgondolt elrendezésű, 2,5 szobás + étkezős kialakítású, melyhez egy 28 nm-es, panorámás tetőterasz is tartozik, tökéletes helyszín reggeli kávézáshoz vagy esti pihenéshez.
A 718 nm-es, rendezett telken az ingatlanhoz 89 nm saját, lekerített kertrész tartozik, valamint térkövezett autóbeálló biztosít kényelmes parkolási lehetőséget két gépkocsi számára.
Műszaki leírása:
-ház tégla építésű
- betoncserépfedésű,
-5 cm dryvit homlokzati szigeteléssel,
- belső szigetelt válaszfalakkal,
- műanyag, redőnyös és szúnyoghálós nyílászárókkal.
- padlás tárolásra is alkalmas
A fűtésről és melegvízről Ariston kondenzációs kombi cirkó gondoskodik, radiátoros hőleadással, a nappaliban pedig hűtő-fűtő klíma növeli a komfortot.
A rezsi rendkívül kedvező: víz, gáz, villany együttesen mindössze kb. 20.000 Ft / hó átalányban!
Az ingatlan osztatlan közös tulajdon, ügyvédi használati megállapodással, tehermentes.
Közös költség nincs.
Ár: 79.900.000 Ft
Az OTP Bankcsoport teljes körű ügyintézéssel áll az eladók és a vevők rendelkezésére! A kínálatunkból választott ingatlan finanszírozásához kedvezményes hitel konstrukciókat kínálunk. Az adásvételi szerződés megkötéséhez igény szerint megbízható ügyvédi közreműködést biztosítunk, és segítséget nyújtunk az adásvételhez kapcsolódó ügyek intézésében. További információért vagy megtekintéssel kapcsolatban hívjon a hét bármely napján.
Referencia szám: M315411
Tulajdonságok
Téglalakás
Jó állapotú
Gázkazán
1986
Nem adta meg a hirdető
Vedd fel a kapcsolatot a hirdetővel
+36 20 461 0
Hitelkalkulátor
Második évtől
343 853 Ft A 13. hónaptól
7,99%
Végig fix Futamidő: 20 év Banki visszahívás
Az OTP Bank munkatársai a neked megfelelő napszakban veszik fel veled a kapcsolatot.Hitelfelvétel esetén akár egy héttel rövidebb lehet az ügyintézés.
Ez az ingatlan a nálunk meglévő adatok alapján azonnali értékbecslésre alkalmas lehet.
A becslés a hirdető által megadott adatokon alapul. A jelen tájékoztatás nem minősül ajánlattételnek és nem teljes körű, az egyes feltételek a hitelbírálat eredményétől függően változhatnak. Kérjük, a részletekről tájékozódj az OTP Bank fiókjaiban vagy az OTP Bank honlapján közzétett vonatkozó Üzletszabályzatokból és Hirdetményekből.
Vedd fel a kapcsolatot a hirdetővel
+36 20 461 0
Vedd fel a kapcsolatot a hirdetővel
+36 20 461 0
UI_KIT.CHARACTER_COUNTER__COMPONENT.REMAINING_SPACE__SR_ONLYUI_KIT.CHARACTER_COUNTER__COMPONENT.MAXIMUM_CHARACTER__SR_ONLY
Hasonló eladó ingatlanok Érden
Frissítve: 1 napja
4
84,5 M Ft 1 300 000 Ft/m²
Eladó lakás, Érd
Frissítve: 26 napja
18
86,9 M Ft 987 500 Ft/m²
Eladó lakás, Érd

Frissítve: ma
19
79 M Ft 1 097 222 Ft/m²
Eladó lakás, Érd


Fedezd fel a
hasonló lakásokat!Még további lakások Érden 79,9 M Ft körüli értékben
Tovább a hirdetésekhez Frissítve: ma
12
81,8 M Ft 1 136 111 Ft/m²
Eladó lakás, Érd

Frissítve: ma
12
85,2 M Ft 1 136 000 Ft/m²
Eladó lakás, Érd

Frissítve: ma
13
85,2 M Ft 1 136 000 Ft/m²
Eladó lakás, Érd


Töltsd fel hirdetésed ingyenesen!
Egyszerű