+11 fotó
Hirdetéskód: 8840106
Referenciaszám: M306639-5116488
Feltöltve: 3 napja
Érd eladó téglalakás 3 szobás: 99,5 millió Ft
99,5 millió Ft
1 156 977 Ft/m²
86 m²
3 szoba
földszint
Eladó Lakás, Érd
Új építésű otthonok Érd központjában kiemelkedő minőség és kényelem!
Fedezzen fel Érd központjához közel egy prémium kategóriás, új építésű társasház lakásait, melyek tágas teraszokkal/erkélyekkel, vagy akár saját kerttel is rendelkeznek!
Kiemelt figyelmet fordítottunk a kiváló infrastruktúrára, a magas minőségű kivitelezésre és a kényelmes, funkcionális élettérre.
E 15 lakásos társasház lakásai már leköthetők, az aktuális szabad listáról telefonon tudom tájékoztatni.
Műszaki tartalom: Korszerű és energiatakarékos megoldások:
A lakások a legmodernebb technológiákkal és minőségi anyagokkal épülnek, biztosítva a hosszú távú értékállóságot és az alacsony rezsiköltségeket.
Szerkezet: Tartós beton alap, Porotherm tégla főfalak 15 cm-es Dryvit szigeteléssel. A belső falak Porotherm hanggátló blokktéglából készülnek.
Födém és tető: Stabil monolit beton födém 25 cm kőzetgyapot szigeteléssel a kiváló hőszigetelésért, cserép fedésű tetővel, padlásszigetelés 30 cm.
Nyílászárók: Prémium minőségű, műanyag szerkezetű külső nyílászárók 3 rétegű, fokozottan hőszigetelt üvegezéssel, kívül antracit, belül fehér színben, rejtett redőnytok beépítéssel és elektromos redőny előkészítéssel (redőnyök és szúnyoghálók külön rendelhetők). A belső ajtók dekorfóliás kivitelűek.
Fűtés és hűtés:
Hőszivattyús rendszer: Minden helyiségben padlófűtés biztosítja az egyenletes meleget, lakásonkénti hőmennyiségmérővel.
Fan-coil rendszer: A nappaliban felszerelt magasfali Fan-coil egység, valamint a szobákban lévő előkészítés lehetővé teszi mind a fűtést, mind a hatékony hűtést.
Fürdőszoba: Kényelmi törölközőszárítós radiátor a fürdőszobákban.
Melegvíz: Hőszivattyús villanybojlerek biztosítják a melegvíz ellátást.
Egyedi befejezés: Lehetőség van a hideg és meleg burkolatok egyéni kiválasztására a műszaki tartalomban rögzített árak szerint.
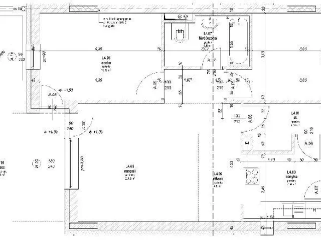
E hirdetésben szereplő lakás:
4-es lakás
Elérhető lakások a társasházban (folyamatosan változik):
Földszint:
1-es lakás: ELADVA!
2-es lakás: ELADVA!
3-as lakás: Nappali + 2 hálószoba (68,18 m2 + 25,38 m2 terasz + 35 m2 saját kert). Ára: 94,5 millió Ft, tartozik hozzá 1db kocsibeálló és 1db tároló!
4-es lakás: Nappali + 2 hálószoba (72,12 m2 + 28,7 m2 terasz + 35 m2 saját kert). Ára: 99,5 millió Ft, tartozik hozzá 1db kocsibeálló és 1db tároló!
5-ös lakás: ELADVA!
6-os lakás: ELADVA!
I. Emelet:
7-es lakás: LEKÖTVE!
8-as lakás: Nappali + 1 hálószoba (59 m2 + 19,97 m2 terasz). Ára: 81,4 millió Ft, tartozik hozzá 1db kocsibeálló és 1db tároló!
9-es lakás: ELADVA!
10-es lakás: Nappali + 2 hálószoba (68.18m2 + erkély 13.13m2) Ára: 87,5 millió Ft, tartozik hozzá 1db kocsibeálló és 1db tároló!
11-es lakás: ELADVA!
12-es lakás: ELADVA!
13-as lakás: LEKÖTVE!
II. Emelet:
14-es lakás: ELADVA!
15-ös lakás: ELADVA!
Várható átadás: 2026. március
A közelben iskola, óvoda, orvosi rendelő, bevásárlási lehetőségek, a buszpályaudvar és vasútállomás pár perc sétával megközelíthető, ahonnan az M4 metro kb. 10-15 perc alatt elérhető. Gépkocsival az M0, M1, M6 és M7 autópálya 5-10 perc.
Az ár a kulcsrakész állapotra vonatkozik, a képek referencia- és látványképeket is tartalmaznak. (Az ár konyhabútort nem tartalmaz)
A hirdetésben szereplő információkat a kivitelezőtől kapott adatok alapján közöltem.
Vevőinknek kedvezményes hitelügyintézést és megbízható ügyvédi közreműködést biztosítunk, teljes körű segítséget nyújtva az adásvételhez kapcsolódó ügyek intézésében.
Hívjon bizalommal!
99500000 Ft
Referencia szám: M306639
Tulajdonságok
Téglalakás
Új építésű
Hőszivattyú
2026
A
Vedd fel a kapcsolatot a hirdetővel
Sasaran-Kereki Katalin OTPip - Budapest VIII. kerület József körút 72 - OTP Ingatlanpont Iroda Az iroda összes hirdetése
+36 30 353 3
Hitelkalkulátor
Második évtől
428 203 Ft A 13. hónaptól
7,99% 8,49%
Végig fix Futamidő: 20 év Banki visszahívás
Az OTP Bank munkatársai a neked megfelelő napszakban veszik fel veled a kapcsolatot.Hitelfelvétel esetén akár egy héttel rövidebb lehet az ügyintézés.
Ez az ingatlan a nálunk meglévő adatok alapján azonnali értékbecslésre alkalmas lehet.
A becslés a hirdető által megadott adatokon alapul. A jelen tájékoztatás nem minősül ajánlattételnek és nem teljes körű, az egyes feltételek a hitelbírálat eredményétől függően változhatnak. Kérjük, a részletekről tájékozódj az OTP Bank fiókjaiban vagy az OTP Bank honlapján közzétett vonatkozó Üzletszabályzatokból és Hirdetményekből.
Vedd fel a kapcsolatot a hirdetővel
Sasaran-Kereki Katalin OTPip - Budapest VIII. kerület József körút 72 - OTP Ingatlanpont Iroda Az iroda összes hirdetése
+36 30 353 3
Vedd fel a kapcsolatot a hirdetővel
Sasaran-Kereki Katalin OTPip - Budapest VIII. kerület József körút 72 - OTP Ingatlanpont Iroda Az iroda összes hirdetése
+36 30 353 3
UI_KIT.CHARACTER_COUNTER__COMPONENT.REMAINING_SPACE__SR_ONLYUI_KIT.CHARACTER_COUNTER__COMPONENT.MAXIMUM_CHARACTER__SR_ONLY
Hasonló eladó ingatlanok Érden
Frissítve: 17 napja
14
99,5 M Ft 1 150 290 Ft/m²
Eladó lakás, Érd

Frissítve: 17 napja
14
94,5 M Ft 1 166 667 Ft/m²
Eladó lakás, Érd

Frissítve: 18 napja
17
94,9 M Ft 1 300 000 Ft/m²
Eladó lakás, Érd, Bakonyi utca


Fedezd fel a
hasonló lakásokat!Még további lakások Érden 99,5 M Ft körüli értékben
Tovább a hirdetésekhez Frissítve: 18 napja
7
99,9 M Ft 832 500 Ft/m²
Eladó lakás, Érd

Frissítve: 18 napja
17
94,9 M Ft 1 300 000 Ft/m²
Eladó lakás, Érd

Frissítve: ma
17
94,9 M Ft 1 300 000 Ft/m²
Eladó lakás, Érd

