+17 fotó
Zenga
Premier
Hirdetéskód: 8893108
Referenciaszám: M322212
Feltöltve: 1 napja
Érd eladó téglalakás 3 szobás: 77,9 millió Ft
77,9 millió Ft
1 217 188 Ft/m² *
* A m² árat a hirdető adta meg.
64 m²
3 szoba
1. emelet

Friss hirdetések, amiket nem találsz meg más ingatlankereső portálon.
Fedezd fel elsőként a Zenga Premier címkés eladó ingatlanokat! További részletek A Duna House, OTP Ingatlanpont, Otthon Centrum és további hálózatok új, kizárólagos hirdetéseinek nagy részét a zenga.hu és koltozzbe.hu ingatlankeresőn láthatod legelőször, és a feltöltéstől két hétig nem érhetők el más ingatlankeresőn!
Leírás
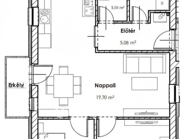
Érd Központjában, vasútállomások közelében, de mégis nyugodt utcában eladó egy 64 m2-es, nappali + 2db hálószobás 1. emeleti társasházi lakás, ami egy 2023-ban elkészült 12 lakásos társasházban található.
Befektetőknek, családoknak egyaránt!
ÚJSZERŰ ÁLLAPOT, KIVÁLÓ INFRASTRUKTÚRA, TÁRSASHÁZ ALAPÍTÓ OKIRAT, ÖNÁLLÓ ALBETÉT.
Helyiségek:
Amerikai konyhás nappali 30,9 m2
Szoba 10,9 m2
Szoba 8,4 m2
Fürdőszoba 5 m2
Előszoba 5 m2
WC 1,9 m2
Kamra 1,8 m2
Erkély 3,2 m2
Az épület szerkezete: 30 cm Porotherm falazóblokkból épültek, amelyet 15 cm hőszigeteléssel (NIKECELL EPS 100) láttak el. Az ablakok 5 légkamrás, 3 rétegű, hang- és hőszigetelt üveggel ellátottak, antracit színű alumínium redőnnyel szereltek.
Minden lakás egyedi mérőórákkal szerelt, fűtése H tarifás levegő-levegő hőszivattyú (+kiegészítő fűtőpanelek a szobákban és törölközőszárító a fürdőszobában), bejegyzett társasházi lakás, 1/1 tulajdon.
Rendkívül alacsony rezsi!!!
Tartozik hozzá egy udvari parkolóhely, ahova távirányítású kapun keresztül lehet behajtani. A képeken látható gépesített konyhabútor a vételár részét képezi, a többi ingóság kedvezményes áron megvásárolható.
A közelben iskola, óvoda, orvosi rendelő, bevásárlási lehetőségek, a buszpályaudvar és vasútállomás pár perc sétával megközelíthető, ahonnan az M4 metro kb. 10-15 perc alatt elérhető. Gépkocsival az M0, M1, M6 és M7 autópálya 5-10 perc.
Vevőinknek szükség esetén kedvezményes hitelt biztosítunk teljes körű ügyintézéssel!
Az adásvételi szerződés megkötéséhez igény szerint megbízható ügyvédi közreműködést biztosítunk, és segítséget nyújtunk az adásvételhez kapcsolódó ügyek intézéséhez.
Hívjon bizalommal!
Tulajdonságok
Téglalakás
Újszerű
2023
3,2 m²
Nem adta meg a hirdető
Vedd fel a kapcsolatot a hirdetővel
+36 70 907 8
Hitelkalkulátor
Második évtől
335 246 Ft A 13. hónaptól
7,99%
Végig fix Futamidő: 20 év Banki visszahívás
Az OTP Bank munkatársai a neked megfelelő napszakban veszik fel veled a kapcsolatot.Hitelfelvétel esetén akár egy héttel rövidebb lehet az ügyintézés.
Ez az ingatlan a nálunk meglévő adatok alapján azonnali értékbecslésre alkalmas lehet.
A becslés a hirdető által megadott adatokon alapul. A jelen tájékoztatás nem minősül ajánlattételnek és nem teljes körű, az egyes feltételek a hitelbírálat eredményétől függően változhatnak. Kérjük, a részletekről tájékozódj az OTP Bank fiókjaiban vagy az OTP Bank honlapján közzétett vonatkozó Üzletszabályzatokból és Hirdetményekből.
Vedd fel a kapcsolatot a hirdetővel
+36 70 907 8
Vedd fel a kapcsolatot a hirdetővel
+36 70 907 8
UI_KIT.CHARACTER_COUNTER__COMPONENT.ACTUAL_CHARACTER__SR_ONLY UI_KIT.CHARACTER_COUNTER__COMPONENT.MAXIMUM_CHARACTER__SR_ONLY
Hasonló eladó ingatlanok Érden
Frissítve: 15 napja
15
85,05 M Ft 1 350 000 Ft/m²
Eladó lakás, Érd
Frissítve: ma
17
80 M Ft 689 655 Ft/m²
Eladó lakás, Gyál

Frissítve: 28 napja
20
77,87 M Ft 1 366 175 Ft/m²
Eladó lakás, Dabas


Fedezd fel a
hasonló lakásokat!Még további lakások Pest megyében 77,9 M Ft körüli értékben
Tovább a hirdetésekhez Frissítve: ma
20
76 M Ft 1 000 000 Ft/m²
Eladó lakás, Kistarcsa

Frissítve: ma
20
76 M Ft 1 000 000 Ft/m²
Eladó lakás, Kistarcsa

Frissítve: ma
17
80 M Ft 689 655 Ft/m²
Eladó lakás, Gyál


