+16 fotó
Hirdetéskód: 8937689
Referenciaszám: 5178
Feltöltve: ma
Érd eladó téglalakás 3 szobás: 87,9 millió Ft
87,9 millió Ft
1 311 940 Ft/m²
67 m²
3 szoba
tetőtér
Kód: 5178 Díjmentes ügyvéd, prémium kategória, önálló hrsz, garázs vagy gk. beálló
Hivatkozzon erre, kód: 5178
- KIVÁLÓ INFRASTRUKTÚRA
- DÍJMENTES ÜGYVÉD
- TÁRSASHÁZ ALAPÍTÓ OKIRAT (önálló albetét)
- ALACSONY REZSI KÖLTSÉG
- FÖLDSZINTI LAKÁSNÁL SAJÁT KERT ÉS TERASZ, TÖBBINÉL ERKÉLY
- HŐSZIVATTYÚ + 1 DB. FAN-COIL
- GARÁZS VAGY FELSZÍNI BEÁLLÓ (kötelezően megvásárolandó- garázs 3mFt / db. vagy felszíni beálló 1.5mFt / db.)
Érd Postástelepen kiváló infrastruktúránál ENERGIATAKARÉKOS új építésű társasházban nappali + 2-3 szobás lakások leköthetők garázzsal vagy felszíni beállóval, igény szerinti befejezéssel.
Megbízható, tőkeerős beruházó, több éves tapasztalat, számos referencia ingatlan! A fotók között már korábban eladott lakások képei is láthatók.
Várható átadás: 2027. nyár.
JELEN HIRDETÉSBEN SZEREPLŐ LAKÁS:
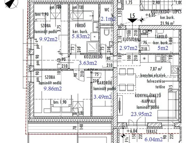
TETŐTÉR 5-ös lakás / nappali + 2 szoba (66.75m2 + erkély), Ára: 87.9mFt + parkoló: előszoba (2.97m2), fürdőszoba (5.83m2), gardrób (3.49m2), nappali - konyha - étkező (23.95m2), közlekedő (3.63m2), 2 szoba (9.86m2, 9.92m2), tároló (5m2), wc (2.1m2), erkély (6.04m2) /Kód: 5178/
AZ ÉPÜLETBEN TALÁLHATÓ TOVÁBBI LAKÁS KÍNÁLATOK:
FÖLDSZINT:
1-es lakás / nappali + 3 szoba (84.54m2 + saját kert kb. 170m2 + teraszok), Ára: 99.9mFt + kert 5mFt + parkoló: előszoba (4.11m2), fürdőszoba (5.74m2), nappali - konyha - étkező (29.14m2), közlekedő (4.51m2), 3 szoba (10.33m2, 10.33m2, 13.12m2), tároló / gardrób (5.61m2), wc (1.65m2), 2 terasz (5.59m2, 6.24m2). /Kód: 5175/
EMELET:
2-es lakás / nappali + 2 szoba (58.42m2 + erkély), Ára: 76.9mFt + parkoló: előszoba (8.1m2), fürdőszoba (5.04m2), nappali - konyha - étkező (25.4m2), szoba (11.48m2), szoba / tároló (8.4m2), erkély (3.75m). /Kód: 5176/
3-as lakás / nappali + 2 szoba (63.82m2 + erkély), Ára: 83.9mFt + parkoló: előszoba (4.77m2), fürdőszoba (5.04m2), nappali - konyha - étkező (25.52m2), 2 szoba (9.96m2, 12.04m2), tároló / gardrób (5.04m2), wcc (1.45m2), erkély (12.09m2). /Kód: 5177/
4-es lakás / nappali + 2 szoba (58.42m2 + erkély), Ára: 75.9mFt + parkoló: előszoba (8.1m2), fürdőszoba (5.04m2), nappali - konyha - étkező (25.4m2), szoba (11.48m2), szoba / tároló (8.4m2), erkély (3.75m2). /Kód: 5176/
TETŐTÉR:
6-os lakás: ELADVA!
Szerkezeti leírás: Beton alap. 30-as tégla főfalak + 15cm dryvit szigetelés. 10-es válaszfallapok. A külső nyílászárók műanyag szerkezetűek, 3 rétegű üvegezéssel, 6 légkamrás, bukó-nyíló, bukó és fix kivitelben, beépített redőnytokkal, elektromos redőny előkészítéssel (redőny és szúnyogháló nincs az árban), kívül szinterezett alu ablakkönyöklők. A belső nyílászárók dekorfóliás ajtók. Szintek között beton födém (betongerenda + monolit, 2x3cm szigeteléssel), a zárófödém fa szerkezetű 30cm szigeteléssel. Cserép fedésű tető.
Az igény szerinti befejezésnek köszönhetően a hideg - meleg burkolatok 7000Ft / m2 árig választhatók.
Közművek: víz, villany, csatorna bekötve, lakásonként önálló mérőórákkal ellátva.
Fűtés: lakásonként 6Kw-os Immergas típusú hőszivattyús rendszer padlófűtésen keresztül minden helyiségben + fürdőben törülközőszárítós radiátor (elektromos fűtőpatronnal), illetve 1 db. magasoldalfali Fan-coil (hőszivattyúhoz csatlakoztatva), amely alkalmas egyaránt fűtésre és hűtésre is.
Parkolás: lakásonként kötelező 1 db. parkoló megvásárlása (garázs 3mFt/ db., felszíni parkoló 1.5mFt / db.).
Megközelíthetőség és infrastruktúra kitűnő! Buszmegálló, bölcsőde, iskola, óvoda, bevásárlási lehetőség, gyógyszertár, orvosi rendelők pár perc sétatávolságra találhatók.
További hasonló ingatlanok találhatók még a kínálatunkban!
Szüksége van hitelre? SEGÍTÜNK!
Bankfüggetlen hitel tanácsadónk díjmentesen áll az Ön rendelkezésére! Keressen bizalommal!
A hirdetésben szereplő adatok, információk, képek, alaprajzok stb... tájékoztató jellegűek! Irodánk az esetleges elírásokért felelősséget nem tud vállalni!
Tájékoztatjuk a Tisztelt Érdeklődőket, hogy az ingatlan hirdetésében szereplő telefonszám felhívásával Önök hozzájárulnak személyes adataik (név, telefonszám), a hirdetést feladó -Otthonplusz.hu Kft. - által a bizalmas kezeléshez és nyilvántartáshoz.
Tulajdonságok
Téglalakás
3
Új építésű
Hőszivattyú
2026
6 m²
Nem adta meg a hirdető
Vedd fel a kapcsolatot a hirdetővel
+36 20 953 1
Hitelkalkulátor
Második évtől
378 282 Ft A 13. hónaptól
7,99% 8,49%
Végig fix Futamidő: 20 év Banki visszahívás
Az OTP Bank munkatársai a neked megfelelő napszakban veszik fel veled a kapcsolatot.Hitelfelvétel esetén akár egy héttel rövidebb lehet az ügyintézés.
Ez az ingatlan a nálunk meglévő adatok alapján azonnali értékbecslésre alkalmas lehet.
A becslés a hirdető által megadott adatokon alapul. A jelen tájékoztatás nem minősül ajánlattételnek és nem teljes körű, az egyes feltételek a hitelbírálat eredményétől függően változhatnak. Kérjük, a részletekről tájékozódj az OTP Bank fiókjaiban vagy az OTP Bank honlapján közzétett vonatkozó Üzletszabályzatokból és Hirdetményekből.
Vedd fel a kapcsolatot a hirdetővel
+36 20 953 1
Vedd fel a kapcsolatot a hirdetővel
+36 20 953 1
UI_KIT.CHARACTER_COUNTER__COMPONENT.ACTUAL_CHARACTER__SR_ONLY UI_KIT.CHARACTER_COUNTER__COMPONENT.MAXIMUM_CHARACTER__SR_ONLY
Hasonló eladó ingatlanok Érden
Frissítve: 22 napja
18
86,9 M Ft 987 500 Ft/m²
Eladó lakás, Érd

Frissítve: 27 napja
4
89 M Ft 1 369 231 Ft/m²
Eladó lakás, Érd
Frissítve: 27 napja
4
89 M Ft 1 369 231 Ft/m²
Eladó lakás, Érd

Fedezd fel a
hasonló lakásokat!Még további lakások Érden 87,9 M Ft körüli értékben
Tovább a hirdetésekhez Frissítve: 30 napja
11
95 M Ft 1 079 545 Ft/m²
Eladó lakás, Érd
Frissítve: 30 napja
15
86,4 M Ft 1 350 000 Ft/m²
Eladó lakás, Érd
Frissítve: 30 napja
15
93,29 M Ft 1 351 957 Ft/m²
Eladó lakás, Érd
