+17 fotó
Hirdetéskód: 8937391
Referenciaszám: 351144
Frissítve: 16 napja
Gyömrő eladó téglalakás 3 szobás: 110 millió Ft
110 millió Ft
1,75 millió Ft/m² *
* A m² árat a hirdető adta meg.
63 m²
3 szoba
földszint
Eladó Lakás, Gyömrő 110.000.000 Ft
Álmai otthona vár Önre a Fodor Ingatlaniroda kínálatában!
Eladó Gyömrő csendes és szép Kastélydomb lakóparkjában egy igazán különleges, 2022-ben épült ingatlan, amely minden várakozást felülmúl!
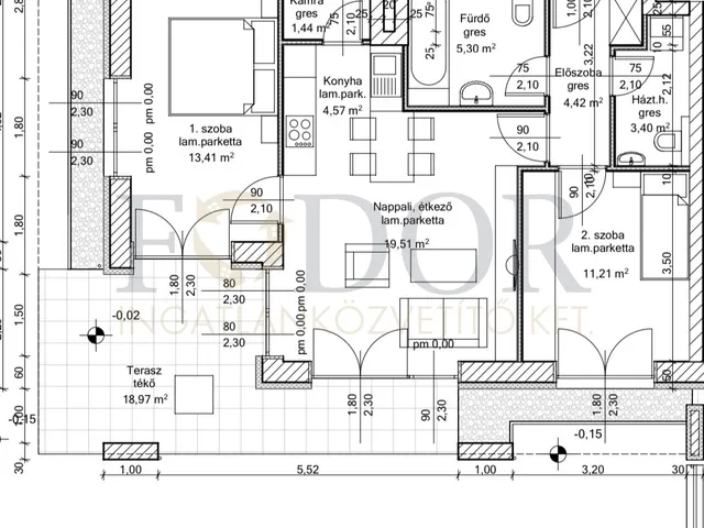
E szemet gyönyörködtető, 63 m²-es földszinti lakás porotherm 38-as téglából készült, és 16 cm-es grafitos szigeteléssel rendelkezik, ami kiváló hőszigetelést biztosít. A lakás kialakítása amerikai konyhás nappali + 2 kényelmes szobával tökéletes lehetőséget kínál a családok számára.
A lakóparkhoz való belépés egy portaszolgálaton keresztül történik, amely kizárólag a lakók számára biztosít biztonságos hozzáférést. Az ingatlanban található Silka hangátló falak garantálják a nyugalmat, hiszen a zajok áthallása kizárt, így Ön igazán otthon érezheti magát!
A tulajdonos gondos válogatással a legmagasabb minőségű anyagokat használta fel, mint a prémium szaniterek, burkolatok és konyhabútorok, amelyek nemcsak esztétikusak, hanem növelik az ingatlan értékét is. A lakás A ++ energia besorolással rendelkezik, 3x25 Amper kapacitással, így itt a fenntartható életmódot is megvalósíthatja!
Fűtése és meleg víz ellátása egy 6 kW-os Sanuier-Duval elektromos kazán révén működik, padlófűtés formájában. Az ingatlanhoz tartozik egy 5 kW-os napelem rendszer, amely 15%-kal bővíthető és a teljes nyári hűtési, téli fűtési igényét fedezi. A nyílászárók fehér alumínium, elektromos redőnyökkel és rolós szúnyoghálóval felszereltek.
A lakás helyiségei a következők:
Előszoba
Fürdőszoba (káddal és WC-vel)
Külön WC
2 szoba
Amerikai konyhás nappali
Terasz
A 251 m²-es saját, leválasztott kertje az egyedi öntözőrendszer és robotfűnyíró segítségével valódi zöld oázis lesz, ahol a természet közelségét élvezheti. A nappaliban található prémium 3.2 kW-os Polar inverteres klíma kényelmet biztosít bármely évszakban.
A lakáshoz 2 autó számára kényelmes, fedett parkoló és egy tároló is tartozik, amelyek az árban benne vannak. A vételár a gyerekszobában lévő bútorokon kívül tartalmazza a teljes berendezést, beleértve az igényes, minőségi konyhabútort, a beépített sütőt, főzőlapot, mosogatógépet és az előszobabútort.
Önnek csak költöznie kell!
Az 50 m²-es terasz ideális helyszínt biztosít a közös családi ebédekhez, baráti beszélgetésekhez és aktív pihenéshez, ahol élvezheti a napsütést és a természetet.
Rövid időn belül költözhető ingatlanra találhat rá, amely tökéletes választás családok számára, akik kényelmet, meghitt otthont, barátságos szomszédokat és családias, kertvárosi környezetet keresnek!
Az infrastruktúra kiváló, minden szükséges szolgáltatás, így iskola, óvoda, bölcsőde, orvosi ellátás és boltok is a közelben találhatóak.
Ne habozzon, lépjen velünk kapcsolatba még ma, és valósítsa meg álmait!
Irodánk ingyenes hitelügyintézéssel, tanácsadással és számos bank ajánlatával várja ügyfeleit, valamint az új CSOK folyósításában is segítünk!
Tulajdonságok
Téglalakás
2
Újszerű
Elektromos
2022
A++
Vedd fel a kapcsolatot a hirdetővel
+36 20 943 0
Hitelkalkulátor
Második évtől
473 390 Ft A 13. hónaptól
7,99%
Végig fix Futamidő: 20 év Banki visszahívás
Az OTP Bank munkatársai a neked megfelelő napszakban veszik fel veled a kapcsolatot.Hitelfelvétel esetén akár egy héttel rövidebb lehet az ügyintézés.
Ez az ingatlan a nálunk meglévő adatok alapján azonnali értékbecslésre alkalmas lehet.
A becslés a hirdető által megadott adatokon alapul. A jelen tájékoztatás nem minősül ajánlattételnek és nem teljes körű, az egyes feltételek a hitelbírálat eredményétől függően változhatnak. Kérjük, a részletekről tájékozódj az OTP Bank fiókjaiban vagy az OTP Bank honlapján közzétett vonatkozó Üzletszabályzatokból és Hirdetményekből.
Vedd fel a kapcsolatot a hirdetővel
+36 20 943 0
Vedd fel a kapcsolatot a hirdetővel
+36 20 943 0
UI_KIT.CHARACTER_COUNTER__COMPONENT.ACTUAL_CHARACTER__SR_ONLY UI_KIT.CHARACTER_COUNTER__COMPONENT.MAXIMUM_CHARACTER__SR_ONLY
Hasonló eladó ingatlanok Gyömrőn
Frissítve: 1 napja
13
104,9 millió Ft 806,9 ezer Ft/m²
Eladó lakás, Gyömrő

Frissítve: 1 napja
15
104,9 millió Ft 806,9 ezer Ft/m²
Eladó lakás, Gyömrő

Frissítve: 1 hónapja
15
104,9 millió Ft 806,9 ezer Ft/m²
Eladó lakás, Gyömrő


Fedezd fel a
hasonló lakásokat!Még további lakások Pest megyében 110 M Ft körüli értékben
Tovább a hirdetésekhez Frissítve: 1 hónapja
15
104,9 millió Ft 806,9 ezer Ft/m²
Eladó lakás, Gyömrő

Frissítve: 1 napja
15
104,9 millió Ft 806,9 ezer Ft/m²
Eladó lakás, Gyömrő

Frissítve: 19 napja
15
104,9 millió Ft 806,9 ezer Ft/m²
Eladó lakás, Gyömrő

