

+17 fotó
Hirdetéskód: 8726416
Referenciaszám: M313669
Frissítve: 4 napja
Győr eladó téglalakás 2 szobás: 97 millió Ft
97 millió Ft
1 168 675 Ft/m² *
* A m² árat a hirdető adta meg.
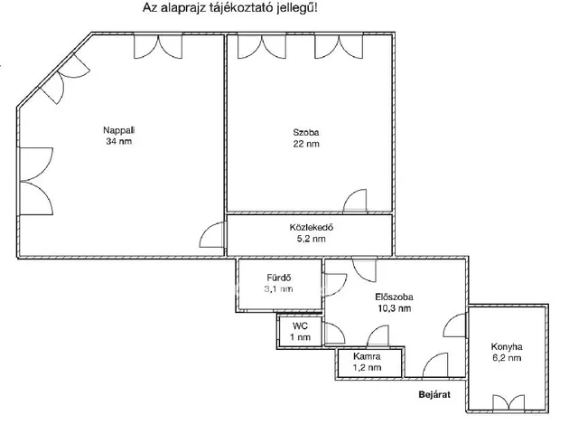
83 m²
2 szoba
2. emelet
Leírás
Eladó nagypolgári lakás Győr belvárosában egy igazi Ritkaság!
Győr szívében, a belváros hangulatos utcái között kínáljuk megvételre ezt a 83 nm-es nagypolgári lakást, amely egyszerre sugároz eleganciát és otthonosságot.
Az ingatlan egy belső gangos házban található, ami már önmagában is különleges atmoszférát kölcsönöz neki. A lakásban 2 tágas szoba várja új tulajdonosát, ahol a nagy belmagasság és a világos, nagy terek igazán tágas és otthonos hangulatot teremtenek. Belépve azonnal szembeötlik a karakteres falburkolat, amely egy nem mindennapi miliőt varázsol.
Különleges előnye, hogy bár központi elhelyezkedésű, a lakás mégis csendes, így a nyüzsgő belváros minden előnye élvezhető anélkül, hogy a zaj zavarná a mindennapokat.
A ár része a lakás stílusához illő bútorzat, amely harmonikusan illeszkedik a belső terek hangulatához, így a költözés után szinte azonnal otthon érezheti magát benne az új tulajdonos.
A belvárosi elhelyezkedésnek köszönhetően minden, amire a mindennapokban szükség lehet: kávézók, éttermek, üzletek, kulturális programok, néhány lépésre elérhető. A győri belváros különleges életérzést kínál, amelyhez ez a lakás tökéletesen passzol.
Ha egy igazán ritka, hangulatos és karakteres otthont keresel, amely egyszerre őrzi a múlt szépségeit és kínál kényelmes életteret a jelenben, akkor ne hagyd ki ezt a lehetőséget!
Referenciaszám: M313669
Tulajdonságok
Téglalakás
Átlagos
Távfűtés
1960
Nem adta meg a hirdető
Vedd fel a kapcsolatot a hirdetővel
+36 30 650 1
Hitelkalkulátor
Második évtől
417 444 Ft A 13. hónaptól
7,99%
Végig fix Futamidő: 20 év Banki visszahívás
Az OTP Bank munkatársai a neked megfelelő napszakban veszik fel veled a kapcsolatot.Hitelfelvétel esetén akár egy héttel rövidebb lehet az ügyintézés.
Ez az ingatlan a nálunk meglévő adatok alapján azonnali értékbecslésre alkalmas lehet.
A becslés a hirdető által megadott adatokon alapul. A jelen tájékoztatás nem minősül ajánlattételnek és nem teljes körű, az egyes feltételek a hitelbírálat eredményétől függően változhatnak. Kérjük, a részletekről tájékozódj az OTP Bank fiókjaiban vagy az OTP Bank honlapján közzétett vonatkozó Üzletszabályzatokból és Hirdetményekből.
Vedd fel a kapcsolatot a hirdetővel
+36 30 650 1
Vedd fel a kapcsolatot a hirdetővel
+36 30 650 1
UI_KIT.CHARACTER_COUNTER__COMPONENT.REMAINING_SPACE__SR_ONLYUI_KIT.CHARACTER_COUNTER__COMPONENT.MAXIMUM_CHARACTER__SR_ONLY
Hasonló eladó ingatlanok Belváros városrészben
Frissítve: 11 napja

13
98,5 M Ft 1 026 042 Ft/m²
Eladó lakás, Győr, Belváros
Frissítve: 16 napja

16
105 M Ft 477 273 Ft/m²
Eladó lakás, Győr, Belváros
Frissítve: 11 napja

16
98,5 M Ft 1 026 042 Ft/m²
Eladó lakás, Győr, Belváros

Fedezd fel a
hasonló lakásokat!Még további lakások Győrben 97 M Ft körüli értékben
Tovább a hirdetésekhez Frissítve: 8 napja

15
98,5 M Ft 1 026 041 Ft/m²
Eladó lakás, Győr, Belváros

Feltöltve: 1 hónapja

13
97 M Ft 1 168 675 Ft/m²
Eladó lakás, Győr, Belváros, baross
Feltöltve: 1 hónapja

14
98 M Ft 1 053 763 Ft/m²
Eladó lakás, Győr, Belváros

Töltsd fel hirdetésed ingyenesen!
Egyszerű