+16 fotó
Hirdetéskód: 8982434
Referenciaszám: M326746-5201047
Feltöltve: ma
Győr eladó téglalakás 2+1 fél szobás: 62,9 millió Ft
62,9 millió Ft
786,3 ezer Ft/m²
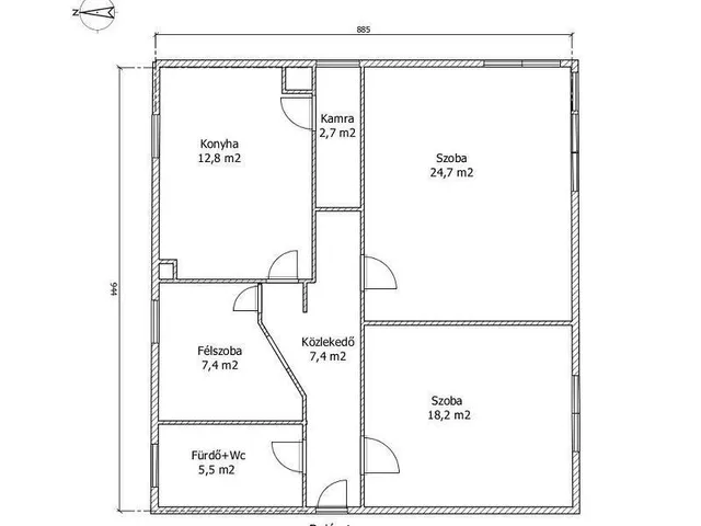
80 m²
2+1 fél szoba
földszint
Eladó Lakás, Győr
Eladásra kínálok Győr Gyárváros központi, mégis csendes részén, az Ipar utcában egy négylakásos társasházban található, 80 m2-es, 2 + 1 félszobás földszinti lakást. Az ingatlan zárt udvaros, kóddal nyitható lakóparki környezetben helyezkedik el, világos, tágas terekkel és praktikus elrendezéssel, így családoknak, időseknek és befektetőknek is ideális választás. A lakáshoz tartozik egy zárható közös garázs, valamint egy 40 m2-es, kizárólagos használatú tárolóhelyiség.
A rendezett, karbantartott társasház kulturált lakóközösséggel rendelkezik, az udvar parkosított és teljesen körbekerített. Elhelyezkedése kiváló: az ETO Park bevásárlóközpont pár perc sétára található, a közelben minden fontos intézmény és szolgáltatás elérhető.
Az ingatlan tehermentes, hitelképes, igény esetén akár azonnal költözhető.
Ne hagyja ki ezt a ritka lehetőséget Győr egyik legélhetőbb részén!
Az ingatlan megfelel az Otthon Start Hitelprogram feltételeinek.
Keressen bizalommal további információért vagy megtekintés egyeztetéséhez!
Referenciaszám: M326746
Tulajdonságok
Téglalakás
Átlagos
Egyéb kazán
1960
Nem adta meg a hirdető
Vedd fel a kapcsolatot a hirdetővel

+36 30 650 1
Hitelkalkulátor
Második évtől
270 693 Ft A 13. hónaptól
7,99%
Végig fix Futamidő: 20 év Banki visszahívás
Az OTP Bank munkatársai a neked megfelelő napszakban veszik fel veled a kapcsolatot.Hitelfelvétel esetén akár egy héttel rövidebb lehet az ügyintézés.
Ez az ingatlan a nálunk meglévő adatok alapján azonnali értékbecslésre alkalmas lehet.
A becslés a hirdető által megadott adatokon alapul. A jelen tájékoztatás nem minősül ajánlattételnek és nem teljes körű, az egyes feltételek a hitelbírálat eredményétől függően változhatnak. Kérjük, a részletekről tájékozódj az OTP Bank fiókjaiban vagy az OTP Bank honlapján közzétett vonatkozó Üzletszabályzatokból és Hirdetményekből.
Vedd fel a kapcsolatot a hirdetővel

+36 30 650 1
Vedd fel a kapcsolatot a hirdetővel

+36 30 650 1
UI_KIT.CHARACTER_COUNTER__COMPONENT.ACTUAL_CHARACTER__SR_ONLY UI_KIT.CHARACTER_COUNTER__COMPONENT.MAXIMUM_CHARACTER__SR_ONLY
Hasonló eladó ingatlanok Gyárváros városrészben
Frissítve: 16 napja
6
59 millió Ft 951,6 ezer Ft/m²
Eladó lakás, Győr, Gyárváros
Frissítve: 16 napja
7
59 millió Ft 951,6 ezer Ft/m²
Eladó lakás, Győr, Gyárváros
Frissítve: ma
2
59 millió Ft 907,7 ezer Ft/m²
Eladó lakás, Győr, Gyárváros


Fedezd fel a
hasonló lakásokat!Még további lakások Győr, Gyárváros városrészben 62,9 M Ft körüli értékben
Tovább a hirdetésekhez Frissítve: 16 napja
6
59 millió Ft 907,7 ezer Ft/m²
Eladó lakás, Győr, Gyárváros

Frissítve: 5 napja
19
64,9 millió Ft 811,3 ezer Ft/m²
Eladó lakás, Győr, Gyárváros
Frissítve: 16 napja
2
59 millió Ft 907,7 ezer Ft/m²
Eladó lakás, Győr, Gyárváros

