+13 fotó
Hirdetéskód: 8972234
Referenciaszám: 210600662
Feltöltve: 1 napja
Győr eladó téglalakás 1 szobás: 51,7 millió Ft
51,7 millió Ft
1 397 351 Ft/m²
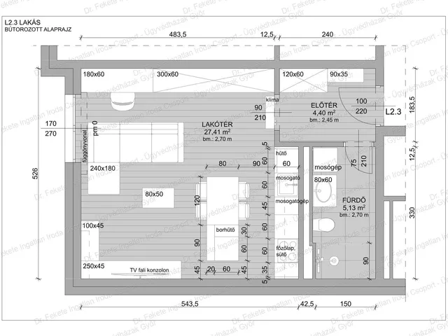
37 m²
1 szoba
3. emelet
IDEÁLIS ELSŐ OTTHON VAGY BIZTOS BEFEKTETÉS!
Győr egyik legkeresettebb városrészében, Nádorváros dinamikusan fejlődő környezetében kínálunk megvételre egy új építésű, 15 lakásos társasház egyik kiváló adottságú lakását, a 2. vagy 3. emeleten.
A lakások 30 %-a már elkelt. NE MARADJ LE! Fűtéskész értékesítés.
A 3. emeleten elhelyezkedő, DK-i tájolású, franciaerkélyes, 36,93 nm-es garzonlakás tökéletes választás:
– első lakásnak,
– kiadásra (albérlet / rövid táv),
– vagy értékálló befektetésként.
Világos, élhető tér – alacsony rezsivel
A DK-i fekvésnek köszönhetően a lakás egész nap világos, míg az A / A+ energetikai besorolás garantálja az alacsony fenntartási költségeket – ami ma már nem extra, hanem elvárás.
Műszaki tartalom – ami hosszú távon számít
3 rétegű hőszigetelt műanyag nyílászárók
Redőny előkészítés
20–30 cm vasbeton teherhordó szerkezet
20 cm kőzetgyapot homlokzati hőszigetelés
Intenzív zöldtető rendszer
Közösségi tetőterasz
Többrétegű talajnedvesség elleni szigetelés
Gépészet:
Központi gázkazán (2 db)
Padlófűtés – modern komfort
Elektromos törölközőszárító - kiállás
Klíma előkészítés - opcionális, külön fizetendő
Extra lehetőségek (limitált darabszám!)
– Mélygarázs beálló: 8,5 M Ft / db (16 db)
– Tároló (2–2,59 nm): 1,75 M Ft / db (6 db)
Átadás: Fűtéskész állapotban, tervezetten 2027-ben
Miért most érdemes lépned?
– Új építés → nincs felújítási kockázat
– Nádorváros → stabil, könnyen kiadható lokáció
– Kis méret → magas hozam, gyors bérbeadás
– Korai foglalás → jobb ár és választék
Ne csak gondolkodj rajta – foglald le most, és biztosítsd a helyed Győr egyik legígéretesebb projektjében!
A képek és látványtervek az értékesítést szolgálják, illusztrációk.
Tulajdonságok
Téglalakás
5
Új építésű
Gázkazán
2026
A+
Vedd fel a kapcsolatot a hirdetővel
Hartmann-né Ildikó Viki Dr. Fekete Ingatlan Iroda Csoport - Ügyvédházak Győr Az iroda összes hirdetése
+36 20 481 3
Hitelkalkulátor
Második évtől
222 502 Ft A 13. hónaptól
7,99% 8,49%
Végig fix Futamidő: 20 év Banki visszahívás
Az OTP Bank munkatársai a neked megfelelő napszakban veszik fel veled a kapcsolatot.Hitelfelvétel esetén akár egy héttel rövidebb lehet az ügyintézés.
Ez az ingatlan a nálunk meglévő adatok alapján azonnali értékbecslésre alkalmas lehet.
A becslés a hirdető által megadott adatokon alapul. A jelen tájékoztatás nem minősül ajánlattételnek és nem teljes körű, az egyes feltételek a hitelbírálat eredményétől függően változhatnak. Kérjük, a részletekről tájékozódj az OTP Bank fiókjaiban vagy az OTP Bank honlapján közzétett vonatkozó Üzletszabályzatokból és Hirdetményekből.
Vedd fel a kapcsolatot a hirdetővel
Hartmann-né Ildikó Viki Dr. Fekete Ingatlan Iroda Csoport - Ügyvédházak Győr Az iroda összes hirdetése
+36 20 481 3
Vedd fel a kapcsolatot a hirdetővel
Hartmann-né Ildikó Viki Dr. Fekete Ingatlan Iroda Csoport - Ügyvédházak Győr Az iroda összes hirdetése
+36 20 481 3
UI_KIT.CHARACTER_COUNTER__COMPONENT.ACTUAL_CHARACTER__SR_ONLY UI_KIT.CHARACTER_COUNTER__COMPONENT.MAXIMUM_CHARACTER__SR_ONLY
Hasonló eladó ingatlanok Nádorváros városrészben
Frissítve: 10 napja
11
55 M Ft 948 276 Ft/m²
Eladó lakás, Győr, Nádorváros
Feltöltve: 10 hónapja
1
47,5 M Ft 805 085 Ft/m²
Eladó lakás, Győr, Nádorváros
Frissítve: 10 napja
15
53,5 M Ft 922 413 Ft/m²
Eladó lakás, Győr, Nádorváros


Fedezd fel a
hasonló lakásokat!Még további lakások Győr, Nádorváros városrészben 51,7 M Ft körüli értékben
Tovább a hirdetésekhez Frissítve: 4 napja
10
53,5 M Ft 922 414 Ft/m²
Eladó lakás, Győr, Nádorváros

Frissítve: 10 napja
20
49,9 M Ft 941 509 Ft/m²
Eladó lakás, Győr, Nádorváros
Frissítve: 10 napja
7
53,5 M Ft 922 414 Ft/m²
Eladó lakás, Győr, Nádorváros, Tihanyi Árpád utca
