

+2 fotó
Hirdetéskód: 8748552
Referenciaszám: 165902475
Feltöltve: 3 napja
Győr eladó téglalakás 2 szobás: 61,79 millió Ft
61,79 millió Ft
1 103 393 Ft/m²
56 m²
2 szoba
1. emelet
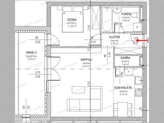
Győr-Szitásdomb II. eladó egy amerikai konyhás nappali + hálószobás + nagy erkélyes ÚJ ÉPÍTÉSŰ lakás.
Vámosszabadi-Szitásdomb II. Modern-fiatalos környezetben - szép épületek között épül fel ez az impozáns 35 lakásos társasház. Az épület kialakítása a kortárs építészet szellemében egyszerű, letisztult formavilágú.
Egyedi megjelenés - modern dizájn - energiatakarékos fenntartás.
Várható átadás: 2026. III. negyedéve. A kivitelezés megkezdődött.
A szóban forgó ingatlan az 1. emeleten lévő 6. számú lakás.
Nettó 55,59 nm + 12,4 nm-es erkély.
Amerikai konyhás nappali + 1 hálószoba + erkély.
Korlátozott számban az adott emeleten lévő tárolót /1,58nm-2,45nm = 1,58MFt - 2,45MFt/ és az
udvaron belüli kocsibeállót lehet vásárolni.
Az U alakú épületben 3 szinten lettek a lakások elhelyezve.
A külső- és teherhordó falszerkezetek: POROTHERM 30 N+F falazóelemből,
a lakáselválasztó falazat: LEIEERTHERM 25/30 AKU hanggátló téglából,
a válaszfalak: POROTHERM 10 N+F falazóelemből, 10 cm vastagságban készülnek.
A homlokzati hőszigetelés : 15 cm AUSTROTHERM AT-H80 lesz.
A homlokzati nyílászárók: VEKA 76AD kívül-belül fehér szerkezetek, toktoldókkal, melyek hőszigeteltek. /5légkamrás-3rétegű üvegezéssel/
A hőenergia előállítása központilag, levegő-víz hőszivattyú teleppel lesz megoldva, melyek nyáron hűtést is biztosítanak.
A hőleadás padló- és mennyezetfűtéssel, lakások egyedi hőmennyiségmérővel, szobatermosztáttal, fürdőszobában csővázas radiátorral.
Az árak emeletszintű fűtéskész árat jelentenek.
Telek adásvételi és Vállalkozói kivitelezési szerződéssel, készültségnek megfelelő fizetéssel lehet szerződni.
Kulcsrakész kivitelezés külön megállapodás alapján lehetséges. Erre a bank külön biztosít összeget.
Most még választhat. Nézzük meg együtt ezt a ragyogó ajánlatot. Hívjon, akár hétvégén is.
Irodánkban bankfüggetlen hiteltanácsadással és ügyintézéssel segítjük álmai megvalósításában.
Energetikai és ügyvédi háttér.
Tulajdonságok
Téglalakás
2
Új építésű
Házközponti fűtés egyedi méréssel
2025
12,4 m²
Nem adta meg a hirdető
Vedd fel a kapcsolatot a hirdetővel
+36 20 334 5
Hitelkalkulátor
Második évtől
265 916 Ft A 13. hónaptól
7,99% 8,49%
Végig fix Futamidő: 20 év Banki visszahívás
Az OTP Bank munkatársai a neked megfelelő napszakban veszik fel veled a kapcsolatot.Hitelfelvétel esetén akár egy héttel rövidebb lehet az ügyintézés.
Ez az ingatlan a nálunk meglévő adatok alapján azonnali értékbecslésre alkalmas lehet.
A becslés a hirdető által megadott adatokon alapul. A jelen tájékoztatás nem minősül ajánlattételnek és nem teljes körű, az egyes feltételek a hitelbírálat eredményétől függően változhatnak. Kérjük, a részletekről tájékozódj az OTP Bank fiókjaiban vagy az OTP Bank honlapján közzétett vonatkozó Üzletszabályzatokból és Hirdetményekből.
Vedd fel a kapcsolatot a hirdetővel
+36 20 334 5
Vedd fel a kapcsolatot a hirdetővel
+36 20 334 5
UI_KIT.CHARACTER_COUNTER__COMPONENT.REMAINING_SPACE__SR_ONLYUI_KIT.CHARACTER_COUNTER__COMPONENT.MAXIMUM_CHARACTER__SR_ONLY
Hasonló eladó ingatlanok Szitásdomb városrészben
Frissítve: 10 hónapja

5
59,1 M Ft 844 286 Ft/m²
Eladó lakás, Győr, Szitásdomb
Frissítve: 25 napja

20
65,9 M Ft 998 485 Ft/m²
Eladó lakás, Győr, Szitásdomb
Frissítve: 4 napja

12
65,9 M Ft 1 046 032 Ft/m²
Eladó lakás, Győr, Szitásdomb


Fedezd fel a
hasonló lakásokat!Még további lakások Győrben 61,79 M Ft körüli értékben
Tovább a hirdetésekhez Frissítve: 20 napja

5
62,52 M Ft 947 284 Ft/m²
Eladó lakás, Győr, Szitásdomb
Frissítve: 20 napja

5
59,01 M Ft 951 706 Ft/m²
Eladó lakás, Győr, Szitásdomb
Frissítve: 4 napja

20
65,9 M Ft 1 046 032 Ft/m²
Eladó lakás, Győr, Szitásdomb


Töltsd fel hirdetésed ingyenesen!
Egyszerű