+2 fotó
Hirdetéskód: 8817482
Referenciaszám: 52700
Frissítve: 11 napja
Győr eladó téglalakás 3 szobás: 81,75 millió Ft
81,75 millió Ft
1 119 794 Ft/m² *
* A m² árat a hirdető adta meg.
73 m²
3 szoba
1. emelet
Leírás
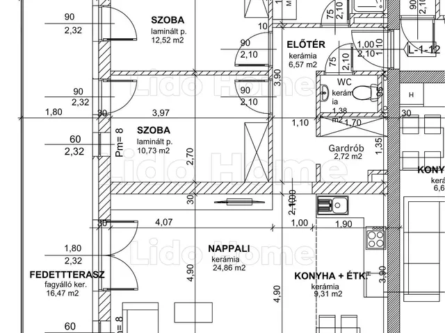
Lido Home győri irodája eladásra kínál egy ÚJ ÉPITÉSŰ lakóparkban ENERGIATAKARÉKOS lakásokat Győr-Szitásdomb lakóparkban! Az ingatlan közigazgatásilag Vámosszabadihoz tartozik, de fizikailag Győrhöz szervesen kapcsolódva helyezkedik el a Szitásdomb lakóparkban. A 35 lakásos, modern épület kivitelezése már zajlik, az átadás 2026 őszre várható! A kínálatban különböző méretű, nappali + 1 hálószobás vagy nappali + 2 hálószobás lakások szerepelnek, amelyek mindegyike tágas erkéllyel és praktikus elosztással rendelkezik. Az otthonok világosak, jól szigeteltek, így alacsony rezsiköltséggel fenntarthatók. Lakásadatok: 1. emelet L12 -Nettó alapterület: 73,51 m² -Erkély: 16,47 m² -Elosztás: amerikai konyhás nappali, 2 hálószoba, fürdőszoba, WC, gardrób, erkély További lehetőségek: -1 db udvari parkolóhely vásárlása kiélező Ára: 1,7M -Zárható tárolók 1,5–2,5 m² méretben, 1,58–2,45 millió Ft között Műszaki tartalom: -Teherhordó szerkezet: 30 cm Porotherm tégla -Hanggátló falazat: Leier hangszigetelt téglák -Homlokzati hőszigetelés: 15 cm vastag Austrotherm grafitos rendszer -Nyílászárók: VEKA háromrétegű, 5 légkamrás ablakok -Fűtés-hűtés: központi levegő-víz hőszivattyú, egyedi hőmennyiségmérő -Padló- és mennyezetfűtés minden lakásban -Fürdő: padlófűtéssel ellátva Az árak emeltszintű fűtéskész állapotra vonatkoznak, de lehetőség van kulcsrakész átadásra is – igény szerint, rövid határidővel. Ez a projekt tökéletes választás mindazoknak, akik minőségi, modern otthont keresnek Győr közelében, csendes, zöld környezetben, de mégis pár percre a városi élettől. Ideális választás saját otthonnak vagy értékálló befektetésnek is! Érdeklődj még ma, és foglald le új otthonod, amíg a legjobb lakások elérhetők! Amennyiben a Lido Home által kínált lakás vagy bármely, a kínálatunkban található ingatlan felkeltette érdeklődését, hívjon a megadott telefonszámon! Vásárolna, de nincs rá keret? Kollégám díjmentes, banksemleges hitelügyintézéssel áll rendelkezésére. Lido Home - Ingatlanok egy életen át!
Tulajdonságok
Téglalakás
3
Új építésű
Hőszivattyú
2025
16 m²
Nem adta meg a hirdető
Vedd fel a kapcsolatot a hirdetővel
+36 70 904 6
Hitelkalkulátor
Második évtől
351 793 Ft A 13. hónaptól
7,99% 8,49%
Végig fix Futamidő: 20 év Banki visszahívás
Az OTP Bank munkatársai a neked megfelelő napszakban veszik fel veled a kapcsolatot.Hitelfelvétel esetén akár egy héttel rövidebb lehet az ügyintézés.
Ez az ingatlan a nálunk meglévő adatok alapján azonnali értékbecslésre alkalmas lehet.
A becslés a hirdető által megadott adatokon alapul. A jelen tájékoztatás nem minősül ajánlattételnek és nem teljes körű, az egyes feltételek a hitelbírálat eredményétől függően változhatnak. Kérjük, a részletekről tájékozódj az OTP Bank fiókjaiban vagy az OTP Bank honlapján közzétett vonatkozó Üzletszabályzatokból és Hirdetményekből.
Vedd fel a kapcsolatot a hirdetővel
+36 70 904 6
Vedd fel a kapcsolatot a hirdetővel
+36 70 904 6
UI_KIT.CHARACTER_COUNTER__COMPONENT.ACTUAL_CHARACTER__SR_ONLY UI_KIT.CHARACTER_COUNTER__COMPONENT.MAXIMUM_CHARACTER__SR_ONLY
Hasonló eladó ingatlanok Szitásdomb városrészben
Frissítve: 3 napja
11
74,85 M Ft 998 000 Ft/m²
Eladó lakás, Győr, Szitásdomb

Frissítve: 11 napja
15
89,9 M Ft 1 498 333 Ft/m²
Eladó lakás, Győr, Szitásdomb

Frissítve: 11 napja
4
81,77 M Ft 1 104 932 Ft/m²
Eladó lakás, Győr, Szitásdomb


Fedezd fel a
hasonló lakásokat!Még további lakások Győrben 81,75 M Ft körüli értékben
Tovább a hirdetésekhez Frissítve: 11 napja
4
74,9 M Ft 1 026 027 Ft/m²
Eladó lakás, Győr, Szitásdomb

Frissítve: 17 napja
4
74,35 M Ft 1 047 177 Ft/m²
Eladó lakás, Győr, Szitásdomb

Frissítve: 17 napja
7
79,9 M Ft 1 157 971 Ft/m²
Eladó lakás, Győr, Szitásdomb

