+7 fotó
Hirdetéskód: 8817486
Referenciaszám: 52942
Frissítve: ma
Győr eladó téglalakás 3 szobás: 70,94 millió Ft
70,94 millió Ft
1,14 millió Ft/m² *
* A m² árat a hirdető adta meg.
62 m²
3 szoba
1. emelet
Leírás
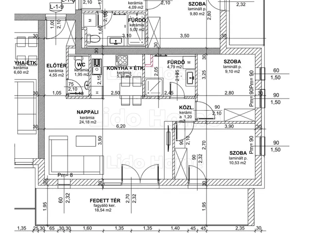
Lido Home győri irodája eladásra kínál Szitásdombon egy dinamikusan fejlődő lakóövezetben új építésű, modern társasházi lakásokat! Közigazgatásilag Vámosszabadi területén épül, Győr határán, ahol a városi élet minden előnye elérhető. Főbb jellemzők és műszaki tartalom: -35 lakásos, 3421 m²-es telken kivitelezés alatt álló társasház -Várható fűtéskész átadás: 2026 ősz -Külön kérésre, saját elképzelés alapján kulcsrakész befejezés kérhető -30 cm N+F tégla, 15 cm hőszigetelés, 3 rétegű, hőszigetelt nyílászárók redőnnyel szerelve -Központi hőszivattyús fűtés-hűtés: hőleadás mennyezetfűtéssel, mely nyáron a klimatizálást is biztosítja, a fürdőszobákban padlófűtés és törölközőszárító radiátorral Lakás adatai: -1. emelet, 61,67 m² + 18,54 m² erkély -Amerikai konyhás nappali + 2 szoba, fürdőszoba és külön WC, praktikus előtérrel További információk: -Udvari parkoló: 1.700.000 Ft/db (egy kötelezően megvásárolandó) -Tárolók: 1.400.000–1.600.000 Ft/db Ideális választás saját otthonnak, vagy befektetésnek is! Amennyiben a Lido Home által kínált győri lakás vagy bármely, a kínálatunkban található ingatlan felkeltette érdeklődését, hívjon a megadott telefonszámon! Vásárolna, de nincs rá keret? Kollégám díjmentes, banksemleges hitelügyintézéssel áll rendelkezésére. Lido Home - Ingatlanok egy életen át!
Tulajdonságok
Téglalakás
3
Új építésű
Hőszivattyú
2025
18 m²
A+
Vedd fel a kapcsolatot a hirdetővel
+36 70 904 6
Hitelkalkulátor
Második évtől
305 293 Ft A 13. hónaptól
7,99% 8,49%
Végig fix Futamidő: 20 év Banki visszahívás
Az OTP Bank munkatársai a neked megfelelő napszakban veszik fel veled a kapcsolatot.Hitelfelvétel esetén akár egy héttel rövidebb lehet az ügyintézés.
Ez az ingatlan a nálunk meglévő adatok alapján azonnali értékbecslésre alkalmas lehet.
A becslés a hirdető által megadott adatokon alapul. A jelen tájékoztatás nem minősül ajánlattételnek és nem teljes körű, az egyes feltételek a hitelbírálat eredményétől függően változhatnak. Kérjük, a részletekről tájékozódj az OTP Bank fiókjaiban vagy az OTP Bank honlapján közzétett vonatkozó Üzletszabályzatokból és Hirdetményekből.
Vedd fel a kapcsolatot a hirdetővel
+36 70 904 6
Vedd fel a kapcsolatot a hirdetővel
+36 70 904 6
UI_KIT.CHARACTER_COUNTER__COMPONENT.ACTUAL_CHARACTER__SR_ONLY UI_KIT.CHARACTER_COUNTER__COMPONENT.MAXIMUM_CHARACTER__SR_ONLY
Hasonló eladó ingatlanok Szitásdomb városrészben
Frissítve: ma
10
70,94 millió Ft 1,14 millió Ft/m²
Eladó lakás, Győr, Szitásdomb

Frissítve: 8 napja
7
64,9 millió Ft 1,18 millió Ft/m²
Eladó lakás, Győr, Szitásdomb

Frissítve: 8 napja
8
69,9 millió Ft 1,09 millió Ft/m²
Eladó lakás, Győr, Szitásdomb


Fedezd fel a
hasonló lakásokat!Még további lakások Győrben 70,94 M Ft körüli értékben
Tovább a hirdetésekhez Frissítve: ma
7
64,9 millió Ft 1,05 millió Ft/m²
Eladó lakás, Győr, Szitásdomb

Frissítve: 14 napja
4
74,9 millió Ft 1,03 millió Ft/m²
Eladó lakás, Győr, Szitásdomb

Frissítve: 8 napja
4
71,05 millió Ft 1,04 millió Ft/m²
Eladó lakás, Győr, Szitásdomb

