+3 fotó
Hirdetéskód: 8851829
Referenciaszám: 196400841
Frissítve: ma
Győr eladó téglalakás 4 szobás: 61,49 millió Ft
61,49 millió Ft
960 763 Ft/m²
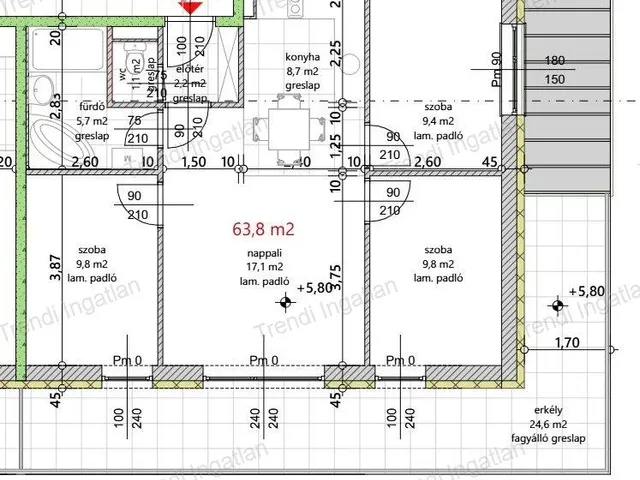
64 m²
4 szoba
2. emelet
Nappali + 3 szobás lakás 24,60 nm-es erkéllyel eladó
Győr-Belvárosától pár perces autóútra, Szitásdomb új kialakítású részén épülő 35 lakásos társasházban különböző alapterületű lakások eladók.
A meghirdetett 2. emeleten található 63,80 nm-es lakásban amerikai konyhás nappali, 3 szoba, fürdőszoba, külön WC, előtér kerül kialakításra. Nappaliból 24,60 nm-es erkély nyílik.
A lakás fűtéskész ára: 61.488.800 Ft. Kulcsrakész befejezés kérhető.
Gépkocsibeállló ára: 1.900.000 Ft
Garázs ára: 12.000.000 Ft-tól
Lehetőség van tároló vásárlására is, ára: 1.508.000 Ft-tól
Várható átadás: 2027 ősz
Magas műszaki tartalommal épülő társasház 30 cm-es falazóelemből, 15 cm-es homlokzati szigeteléssel épül. A nyílászárók 5 légkamrás profilrendszerű, 3 rétegű üvegezéssel rendelkeznek. A rejtett alumínium elektromos redőny előkészítését és a redőny dobok beépítését a vételár tartalmazza. Az épület fűtését és melegvíz-ellátását hőszivattyú és kiegészítő gázkazán biztosítja. Minden lakás 1 db klíma előkészítéssel rendelkezik. Az épület tetőszerkezetén napelemes rendszer kerül kialakításra, ami a társasház működésének költségeit fogja csökkenteni.
Szitásdomb új kialakítású részén épülő társasházban különböző alapterületű lakások kerülnek kialakításra, így minden kedves érdeklődő megtalálhatja álmai otthonát. A földszinti lakások kertkapcsolattal és terasszal, az emeleti lakások erkéllyel rendelkeznek. A társasház zárt udvarán felszíni parkolók kerülnek kialakításra.
Bővebb információkért forduljon hozzám bizalommal.
Hétköznap és hétvégén is várom hívását!
Díjmentes, bankfüggetlen hitelügyintézéssel állunk rendelkezésére.
A hirdetésben feltüntetett képek illusztrációk.
Tulajdonságok
Téglalakás
1
Új építésű
Hőszivattyú
Nem adta meg a hirdető
Van
Vedd fel a kapcsolatot a hirdetővel
+36 70 886 6
Hitelkalkulátor
Második évtől
264 620 Ft A 13. hónaptól
7,99% 8,49%
Végig fix Futamidő: 20 év Banki visszahívás
Az OTP Bank munkatársai a neked megfelelő napszakban veszik fel veled a kapcsolatot.Hitelfelvétel esetén akár egy héttel rövidebb lehet az ügyintézés.
Ez az ingatlan a nálunk meglévő adatok alapján azonnali értékbecslésre alkalmas lehet.
A becslés a hirdető által megadott adatokon alapul. A jelen tájékoztatás nem minősül ajánlattételnek és nem teljes körű, az egyes feltételek a hitelbírálat eredményétől függően változhatnak. Kérjük, a részletekről tájékozódj az OTP Bank fiókjaiban vagy az OTP Bank honlapján közzétett vonatkozó Üzletszabályzatokból és Hirdetményekből.
Vedd fel a kapcsolatot a hirdetővel
+36 70 886 6
Vedd fel a kapcsolatot a hirdetővel
+36 70 886 6
UI_KIT.CHARACTER_COUNTER__COMPONENT.REMAINING_SPACE__SR_ONLYUI_KIT.CHARACTER_COUNTER__COMPONENT.MAXIMUM_CHARACTER__SR_ONLY
Hasonló eladó ingatlanok Szitásdomb városrészben
Frissítve: 4 napja
7
55,44 M Ft 924 000 Ft/m²
Eladó lakás, Győr, Szitásdomb

Frissítve: 26 napja
9
55,44 M Ft 972 632 Ft/m²
Eladó lakás, Győr, Szitásdomb
Frissítve: 21 napja
5
62,52 M Ft 947 284 Ft/m²
Eladó lakás, Győr, Szitásdomb

Fedezd fel a
hasonló lakásokat!Még további lakások Győr, Szitásdomb városrészben 61,49 M Ft körüli értékben
Tovább a hirdetésekhez Frissítve: 21 napja
5
59,01 M Ft 951 706 Ft/m²
Eladó lakás, Győr, Szitásdomb
Frissítve: 2 napja
7
55,44 M Ft 972 631 Ft/m²
Eladó lakás, Győr, Szitásdomb

Frissítve: 2 napja
9
59,65 M Ft 977 890 Ft/m²
Eladó lakás, Győr, Szitásdomb

