+2 fotó
Hirdetéskód: 8862150
Referenciaszám: 196400847
Feltöltve: 2 napja
Győr eladó téglalakás 3 szobás: 62,52 millió Ft
62,52 millió Ft
947 284 Ft/m²
66 m²
3 szoba
1. emelet
Azonnal birtokba vehető nappali + 2 szobás lakás
Azonnal birtokba vehető lakás eladó!
Győr belvárosától 10 perces autóútra, Szitásdomb új építésű részén 25 lakásos társasházban nappali + 2 szobás lakás eladó.
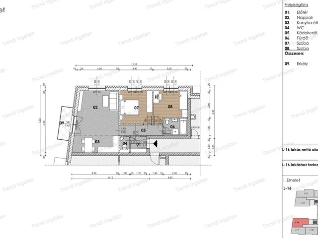
Az 1. emeleten található 65,49 m²-es lakásban amerikai konyhás nappali, 2 szoba, fürdőszoba, külön WC, közlekedő, előtér kerül kialakításra. Nappaliból 4,20 m²-es erkély nyílik.
A lakás fűtéskész ára: 62.520.750 Ft. Kulcsrakész befejezés kérhető.
Gépkocsibeálló ára: 1.000.000 Ft + Áfa/db. A lakáshoz 2 db gépkocsibeállót kell vásárolni.
A tárasház 30 cm-es falazóelemből, 20 cm-es homlokzati szigeteléssel épült. A műanyag, hang-és hőszigetelt, Internorm nyílászárók kívül antracit színűek. Az ár tartalmazza az alumínium elektromos redőny előkészítését és a redőny dobok beépítését. Az ingatlan hűtése/fűtése hőszivattyúval történik, egyedi hőmennyiségmérővel és hőmérséklet szabályozó termosztáttal, így nincs szükség klímára. Melegvíz előállítás is hőszivattyúval megoldott. A társasház udvaran térkövezett gépkocsibeállók kerültek kialakításra.
Tárasház Szitásdomb új kialakítású részén épült. A közelben boltok, pékség, babauszoda, szépségszalon, játszótér található. A környéken új és újszerű családi házak, társasházak épültek/épülnek. Győr-Belvárosa, az Ipari Park, az AUDI, az autópálya elkerülő könnyen elérhető.
Bővebb információkért forduljon hozzám bizalommal.
Hétköznap és hétvégén is várom hívását!
Díjmentes, bankfüggetlen hitelügyintézéssel állunk rendelkezésére.
A hirdetésben feltüntetett képek illusztrációk.
Tulajdonságok
Téglalakás
1
Új építésű
Hőszivattyú
Nem adta meg a hirdető
Vedd fel a kapcsolatot a hirdetővel
+36 70 886 6
Hitelkalkulátor
Második évtől
269 061 Ft A 13. hónaptól
7,99% 8,49%
Végig fix Futamidő: 20 év Banki visszahívás
Az OTP Bank munkatársai a neked megfelelő napszakban veszik fel veled a kapcsolatot.Hitelfelvétel esetén akár egy héttel rövidebb lehet az ügyintézés.
Ez az ingatlan a nálunk meglévő adatok alapján azonnali értékbecslésre alkalmas lehet.
A becslés a hirdető által megadott adatokon alapul. A jelen tájékoztatás nem minősül ajánlattételnek és nem teljes körű, az egyes feltételek a hitelbírálat eredményétől függően változhatnak. Kérjük, a részletekről tájékozódj az OTP Bank fiókjaiban vagy az OTP Bank honlapján közzétett vonatkozó Üzletszabályzatokból és Hirdetményekből.
Vedd fel a kapcsolatot a hirdetővel
+36 70 886 6
Vedd fel a kapcsolatot a hirdetővel
+36 70 886 6
UI_KIT.CHARACTER_COUNTER__COMPONENT.REMAINING_SPACE__SR_ONLYUI_KIT.CHARACTER_COUNTER__COMPONENT.MAXIMUM_CHARACTER__SR_ONLY
Hasonló eladó ingatlanok Szitásdomb városrészben
Frissítve: 11 napja
9
59,65 M Ft 977 890 Ft/m²
Eladó lakás, Győr, Szitásdomb

Feltöltve: 5 hónapja
8
59,01 M Ft 951 706 Ft/m²
Eladó lakás, Győr, Szitásdomb
Feltöltve: 5 hónapja
8
64,2 M Ft 1 035 478 Ft/m²
Eladó lakás, Győr, Szitásdomb

Fedezd fel a
hasonló lakásokat!Még további lakások Győr, Szitásdomb városrészben 62,52 M Ft körüli értékben
Tovább a hirdetésekhez Feltöltve: 5 hónapja
9
62,52 M Ft 961 858 Ft/m²
Eladó lakás, Győr, Szitásdomb
Feltöltve: 5 hónapja
10
64,18 M Ft 1 035 105 Ft/m²
Eladó lakás, Győr, Szitásdomb
Feltöltve: 5 hónapja
8
66,05 M Ft 971 386 Ft/m²
Eladó lakás, Győr, Szitásdomb
