

+8 fotó
Hirdetéskód: 7164818
Referenciaszám: PR087430-LK-11008
Frissítve: 12 napja
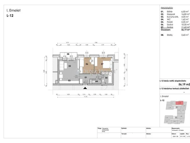
Eladó 3 szobás téglalakás 57,99 millió Ft értékben Győrben - I. ütem lakóparkban
57,99 millió Ft
1 000 000 Ft/m² *
* A m² árat a hirdető adta meg.
57 m²
3 szoba
1. emelet
Leírás
Tulajdonságok
Téglalakás
Új építésű
Mennyezeti hűtés-fűtés
2025
Átadva
3,6 m²
Nem adta meg a hirdető
Vedd fel a kapcsolatot a hirdetővel
+36 96 654 0
Hitelkalkulátor
Második évtől
249 563 Ft A 13. hónaptól
7,99% 8,49%
Végig fix Futamidő: 20 év Banki visszahívás
Az OTP Bank munkatársai a neked megfelelő napszakban veszik fel veled a kapcsolatot.Hitelfelvétel esetén akár egy héttel rövidebb lehet az ügyintézés.
Ez az ingatlan a nálunk meglévő adatok alapján azonnali értékbecslésre alkalmas lehet.
A becslés a hirdető által megadott adatokon alapul. A jelen tájékoztatás nem minősül ajánlattételnek és nem teljes körű, az egyes feltételek a hitelbírálat eredményétől függően változhatnak. Kérjük, a részletekről tájékozódj az OTP Bank fiókjaiban vagy az OTP Bank honlapján közzétett vonatkozó Üzletszabályzatokból és Hirdetményekből.
Vedd fel a kapcsolatot a hirdetővel
+36 96 654 0
Vedd fel a kapcsolatot a hirdetővel
+36 96 654 0
UI_KIT.CHARACTER_COUNTER__COMPONENT.REMAINING_SPACE__SR_ONLYUI_KIT.CHARACTER_COUNTER__COMPONENT.MAXIMUM_CHARACTER__SR_ONLY
Lakóparkhoz kapcsolódó további ingatlanok

Töltsd fel hirdetésed ingyenesen!
Egyszerű