+14 fotó
Hirdetéskód: 8754645
Referenciaszám: M315663
Frissítve: 25 napja
Hajdúszoboszló eladó téglalakás 2 szobás: 73,5 millió Ft
73,5 millió Ft
1 030 856 Ft/m² *
* A m² árat a hirdető adta meg.
71 m²
2 szoba
Leírás
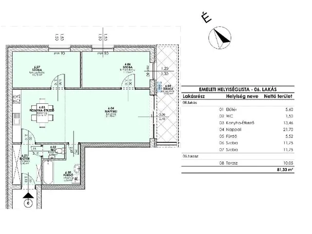
Hajdúszoboszló központjában újépítésű társasházban 1. emeleti 71,3nm-es lakás várja első tulajdonosát!
A társasházban két szinten összesen 11 lakás kerül kivitelezésre.
Az ingatlan 2024 év végén került átadásra.
Főbb paraméterek a következőek:
-Porotherm 30-as tégla falazat 15cm hőszigeteléssel, Porotherm 10-es válaszfalak
-Belső és külső nyílászárók: műanyag tok- és szárnyszerkezetűek, 3 rétegű hőszigetelt üvegezéssel , kívül barna-belül fehér színben, belső egyedi CPL ajtók, tele ajtólapokkal
-Bejárati ajtók: hőszigetelt, fokozott légzárású, öt ponton záródó műanyag ajtó
-Hőszivattyús rendszer (padlófűtés és mennyezeti hűtés-fűtés)
-10nm-es terasz
Helyiségek:
-Előszoba, WC+mosdó, amerikai konyhás nappali, fürdőszoba, 2 hálószoba
Az ingatlan vételára magában foglalja:
-Beépített konyhabútor gépesítve
-Világítástechnikák
A lakás ára tartalmazza az 5% áfát, amely CSOK igénybe vétele esetén visszaigényelhető!
A lakáshoz felszíni gépkocsi beálló tartozik, melynek vételára +2.5mFt.
Az OTP bankcsoport teljes körű ügyintézéssel áll rendelkezésre az eladók és a vevők részére!
Helyszíni bejárás során teljes dokumentációt, műszaki tartalomról szóló leírást biztosítunk a korrekt tájékoztatás érdekében!
További kérdéseivel, megtekintésre való egyeztetés kapcsán keressen bátran a hét bármely napján!
Tulajdonságok
Téglalakás
Új építésű
Egyéb
2024
Nem adta meg a hirdető
Vedd fel a kapcsolatot a hirdetővel
+36 70 595 3
Hitelkalkulátor
Második évtől
316 310 Ft A 13. hónaptól
7,99% 8,49%
Végig fix Futamidő: 20 év Banki visszahívás
Az OTP Bank munkatársai a neked megfelelő napszakban veszik fel veled a kapcsolatot. A becslés a hirdető által megadott adatokon alapul. A jelen tájékoztatás nem minősül ajánlattételnek és nem teljes körű, az egyes feltételek a hitelbírálat eredményétől függően változhatnak. Kérjük, a részletekről tájékozódj az OTP Bank fiókjaiban vagy az OTP Bank honlapján közzétett vonatkozó Üzletszabályzatokból és Hirdetményekből.
Vedd fel a kapcsolatot a hirdetővel
+36 70 595 3
Vedd fel a kapcsolatot a hirdetővel
+36 70 595 3
UI_KIT.CHARACTER_COUNTER__COMPONENT.ACTUAL_CHARACTER__SR_ONLY UI_KIT.CHARACTER_COUNTER__COMPONENT.MAXIMUM_CHARACTER__SR_ONLY
Hasonló eladó ingatlanok Hajdúszoboszlón
Frissítve: 22 napja
20
78 M Ft 1 300 000 Ft/m²
Eladó lakás, Hajdúszoboszló

Frissítve: 28 napja
11
Prémium lakások Hajdúszoboszlón
69 M Ft 1 302 870 Ft/m²
Eladó lakás, Hajdúszoboszló, József Attila utca

Frissítve: 22 napja
20
74,5 M Ft 1 284 483 Ft/m²
Eladó lakás, Hajdúszoboszló


Fedezd fel a
hasonló lakásokat!Még további lakások Hajdúszoboszlón 73,5 M Ft körüli értékben
Tovább a hirdetésekhez Frissítve: 22 napja
20
74,5 M Ft 1 284 483 Ft/m²
Eladó lakás, Hajdúszoboszló

Frissítve: 22 napja
15
79 M Ft 1 362 069 Ft/m²
Eladó lakás, Hajdúszoboszló

Frissítve: ma
4
69 M Ft 1 533 333 Ft/m²
Eladó lakás, Hajdúszoboszló

